金葉ビル
金葉ビルは八重洲ターミナル至近・B1F焼肉屋、クリニック相談可東京駅から徒歩3分の駅近物件です。3駅以上利用できる好立地です。1984年に竣工の耐震オフィスビルです。勿論、24時間利用可能です。機...
- 住所
- 中央区京橋1丁目6-13 地図をみる
- 最寄り駅
- 東京徒歩3分、京橋徒歩3分、宝町徒歩4分
- 竣工
- 1983年07月
- 規模
- 地上9階・地下1階建て
- 種別
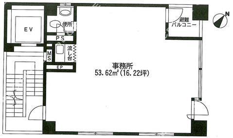
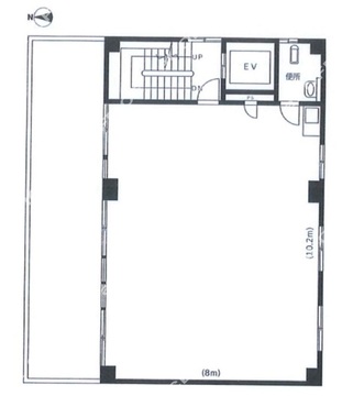
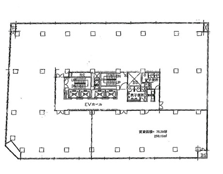
- 事務所
| 階数 | 坪数 | 賃料 + 共益費 |
敷金・保証金 / 礼金 | 入居日 | 検討 | 詳細 | |
|---|---|---|---|---|---|---|---|
| 4階 | 43.25坪 (142.97m²) |
713,625円 (坪 : 13,000円) |
10ヶ月 / 無 | 2019年04月 | 検討する | 詳細 | |
| 8階 | 34.43坪 (113.82m²) |
568,095円 (坪 : 13,000円) |
10ヶ月 / 無 | 相談 | 検討する | 詳細 | |


































































































































