松岡品川埠頭ビル
松岡品川埠頭ビルは。月極駐車場がビル内にあります。
- 住所
- 港区港南5丁目4-38 地図をみる
- 最寄り駅
- 品川徒歩10分
- 竣工
- 1969年11月
- 規模
- 地上2階建て
- 種別
- 事務所/倉庫
| 階数 | 坪数 | 賃料 + 共益費 |
敷金・保証金 / 礼金 | 入居日 | 検討 | 詳細 | |
|---|---|---|---|---|---|---|---|
| 1階 | 100坪 (330.57m²) |
1,100,000円 (坪 : 11,000円) |
10ヶ月 / 無 | 相談 | 検討する | 詳細 | |
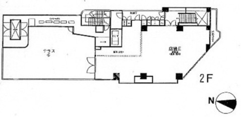
| 2階 | 27.1坪 (89.59m²) |
189,700円 (坪 : 7,000円) |
10ヶ月 / 無 | 相談 | 検討する | 詳細 | |
| 2階 | 20坪 (66.12m²) |
140,000円 (坪 : 6,000円) |
10ヶ月 / 無 | 相談 | 検討する | 詳細 | |
| 2階 | 43坪 (142.14m²) |
301,000円 (坪 : 7,000円) |
10ヶ月 / 無 | 相談 | 検討する | 詳細 | |
























































