※このサイトに記載がある賃貸条件は、敷金・保証金などの預かり金を除き、別途消費税がかかります。
お電話でもお気軽にお問い合わせください
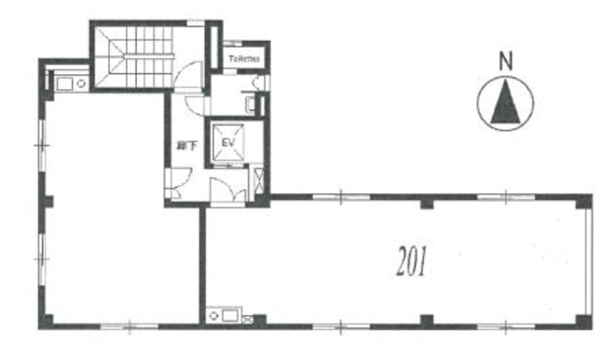
物件情報
設備詳細
| 空調 | - |
|---|---|
| トイレ | - |
| 床仕様 | - |
| エレベータ | 1 基 |
| 駐車場設備 | - |
| その他 | 新耐震基準 |
アクセスマップ
東京の心臓部、上野5丁目に位置する「東栄ビル」は、ビジネスの成功を加速させる理想的なオフィススペースを提供します。1988年に竣工したこのビルは、耐震性に優れた鉄骨造で、安心してビジネスを行うことができる強固な基盤を提供します。末広町駅からわずか徒歩3分、御徒町駅から徒歩4分という抜群のアクセスの良さは、従業員や訪問客にとってのストレスフリーな通勤を約束し、ビジネスの機動性を高めます。 ビル内には、効率的な業務遂行を支える個別空調システムを完備したオフィスがあり、季節を問わず快適な環境が維持されます。また、エレベーターが1基設置されており、スムーズな移動が可能です。男女共用トイレも設けられており、使い勝手の良さを追求しています。 周辺環境もビジネスの成功を後押しします。飲食店や整体院、教室などが近隣にあり、日々の業務に必要なリフレッシュや学びの場が手軽に利用できます。また、オフィスビルやマンションが立ち並ぶこの地域は、ビジネスの中心地としての賑わいを持ちながらも、東栄ビルが位置する裏通りは比較的静かで落ち着いた環境です。大通りにも容易にアクセスでき、ビジネスの機会を広げるための絶好のロケーションと言えるでしょう。 東栄ビルは、フリーレント物件としてのメリットも兼ね備えています。ビジネスをスタートさせる際の初期費用を抑えることができ、資金の有効な活用をサポートします。この点も、新たに事業を展開したい企業や、コストパフォーマンスを重視する企業にとっては大きな魅力となるでしょう。 「東栄ビル」は、優れた立地、強固な構造、快適なオフィス環境、そして周辺の充実した施設という、ビジネスを成功に導くための全てを備えています。あなたのビジネスを次のレベルへと押し上げるための最適な場所、それがここ東栄ビルです。
募集終了のテナント区画
| 階数 | 坪数 | 賃料 + 共益費 | 敷金/礼金敷金 礼金 | 検討 |
|---|---|---|---|---|
| 1階 | 18.45坪 (60.99m²) | 募集終了 | - | - |
| 2階 | 11.43坪 (37.78m²) | 募集終了 | - | - |
| 2階 | 11.43坪 (37.78m²) | 募集終了 | - | - |
| 3階 | 11.42坪 (37.78m²) | 募集終了 | - | - |
| 3階 | 15.4坪 (50.8m²) | 募集終了 | - | - |
| 4階 | 11.9坪 (39.33m²) | 募集終了 | - | - |
WEB非公開物件がございます
オーナー様ご希望によるWEB非公開の物件もございます。先ずは条件などお知らせ頂けましたら、非公開物件含めピッタリのオフィスをご提案させて頂きます。具体的な物件がお決まりでない場合でも問題ございません。無理なお勧めはしておりませんので、お気軽にお問い合わせください。
ご来店も歓迎です
オフィス移転は社内・社外ともに非公開に行われることが殆どです。そのためアットオフィスでは、基本的に訪問によるコンサルティングを行っておりますが、ご来店の相談も歓迎です。
※お一人おひとりに親身にご対応させて頂きたい為、要予約とさせて頂いております。ご来店の際は先ずは上記よりご予約下さい。
読込中...
上野/台東/東上野エリアで東栄ビルに似た条件の物件
読込中...