オー・アイ・芝浦の賃料条件
| 階数 | 坪数 | 賃料 + 共益費 | 敷金/礼金敷金 礼金 | 検討 |
|---|---|---|---|---|
| 5階 | 53.42坪 (176.6m²) | 854,720円 (坪:16,000 円) | 6ヶ月 1ヶ月6ヶ月/1ヶ月 | |
| 6階 | 53.42坪 (176.6m²) | 854,720円 (坪:16,000 円) | 6ヶ月 1ヶ月6ヶ月/1ヶ月 |
※このサイトに記載がある賃貸条件は、敷金・保証金などの預かり金を除き、別途消費税がかかります。
お電話でもお気軽にお問い合わせください
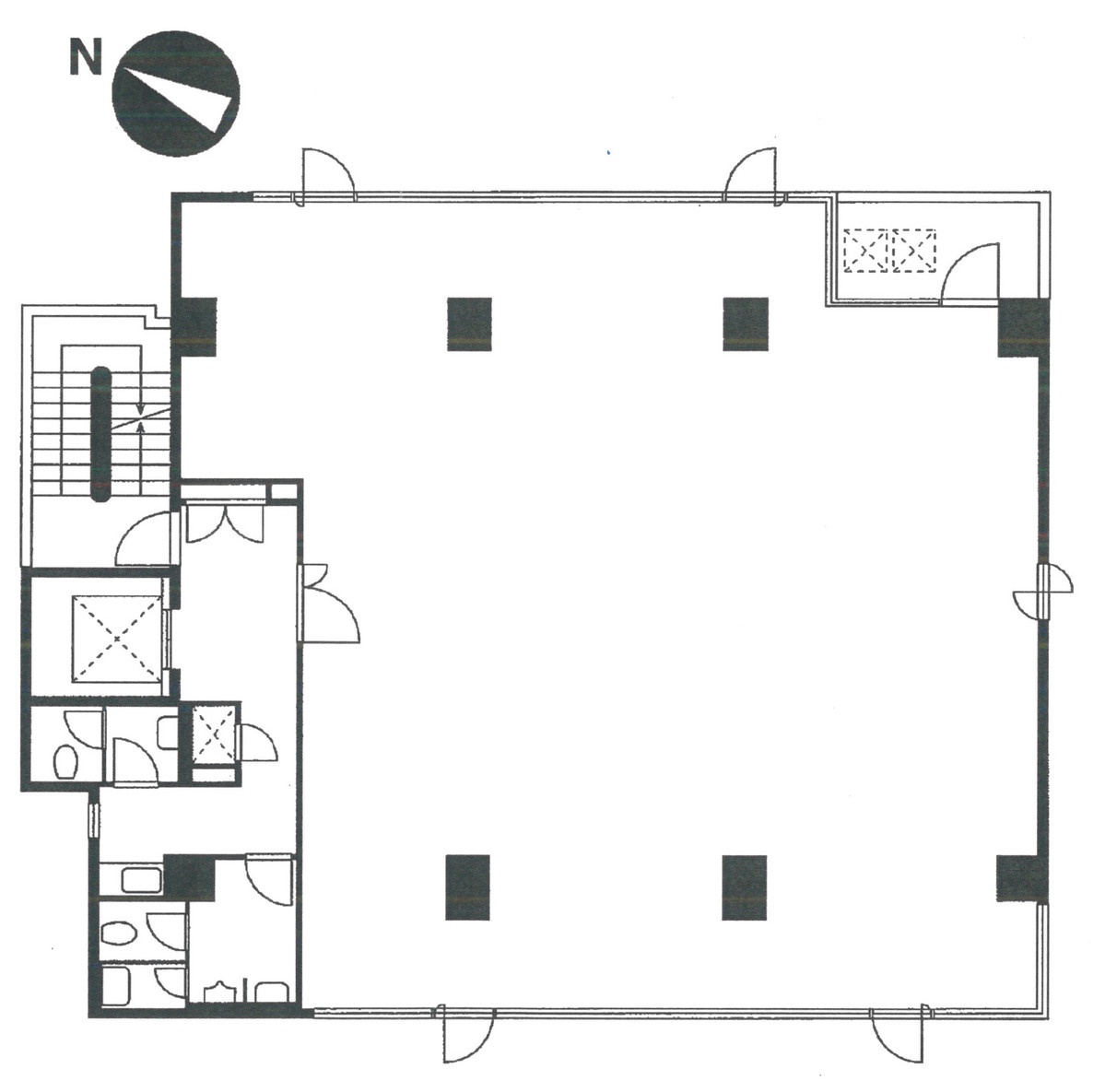
物件情報
設備詳細
| 空調 | 個別空調 |
|---|---|
| トイレ | 男女別トイレ / 男女別トイレ室外 |
| 床仕様 | OA対応床(フリーアクセス) |
| エレベータ | 1 基 / エレベーター有 |
| 駐車場設備 | 空無 / 敷地内駐車場 / 平置き駐車場 |
| その他 | 機械警備 / 光ファイバー / 24時間利用可 / 新耐震基準 |
アクセスマップ
オー・アイ・芝浦は、東京都港区芝浦に位置する賃貸オフィスビルで、1987年に竣工された地上8階建ての建築物です。ビルは、一階に美容院が入居しており、建物内には1基のエレベーターが設置されています。セキュリティ面では、機械警備システムを導入しており、テナントの安全を確保しています。 ビルの立地は、ビジネスに非常に適しています。三田駅および田町駅からアクセス可能で、徒歩圏内にはコンビニや飲食店などが豊富にあり、日常のニーズやビジネスランチにも便利です。さらに、旧海岸通りに近く、大型オフィスビルが立ち並ぶエリアでありながら、比較的静かな環境に位置しています。 オフィスの面積は、1フロア約50坪前後となっており、柱が一部あるものの、シンプルな間取りであり、利用しやすい空間となっています。各階には個別空調が完備されており、トイレと給湯スペースは共用部分に位置しています。ビルの駐車場が併設されている点も、テナントにとって大きなメリットの一つです。 このビルは、新耐震基準に適合しており、築年数を感じさせない管理状態の良さがあります。ビル前の通りや近隣の施設へのアクセスも良好で、肉のハナマサ芝浦店や芝浦海岸通郵便局など、生活に必要な施設が徒歩圏内にあります。 オー・アイ・芝浦は、立地の良さ、利便性の高さ、そして快適なオフィス環境を求めるビジネスのための最適な選択肢です。中小企業からスタートアップ、クリニックなど、様々な業種に適した空間が提供されています。オフィスを探している企業にとって、このビルは、効率的かつ快適なビジネス運営のための絶好の立地を提供します。
WEB非公開物件がございます
オーナー様ご希望によるWEB非公開の物件もございます。先ずは条件などお知らせ頂けましたら、非公開物件含めピッタリのオフィスをご提案させて頂きます。具体的な物件がお決まりでない場合でも問題ございません。無理なお勧めはしておりませんので、お気軽にお問い合わせください。
ご来店も歓迎です
オフィス移転は社内・社外ともに非公開に行われることが殆どです。そのためアットオフィスでは、基本的に訪問によるコンサルティングを行っておりますが、ご来店の相談も歓迎です。
※お一人おひとりに親身にご対応させて頂きたい為、要予約とさせて頂いております。ご来店の際は先ずは上記よりご予約下さい。
読込中...
近くのエリアで探してみる
港南/高輪/白金台/(品川駅)エリアでオー・アイ・芝浦に似た条件の物件
読込中...