八丁堀鈴らん通りビルの賃料条件
| 階数 | 坪数 | 賃料 + 共益費 | 敷金/礼金敷金 礼金 | 検討 |
|---|---|---|---|---|
| 3階 | 32.9坪 (108.76m²) | お問合せ下さい (坪:-) | 12ヶ月 無12ヶ月/無 | |
| 5階 | 32.9坪 (108.76m²) | お問合せ下さい (坪:-) | 12ヶ月 無12ヶ月/無 | |
| 9階 | 19.69坪 (65.09m²) | お問合せ下さい (坪:-) | 12ヶ月 無12ヶ月/無 |
※このサイトに記載がある賃貸条件は、敷金・保証金などの預かり金を除き、別途消費税がかかります。
お電話でもお気軽にお問い合わせください
物件情報
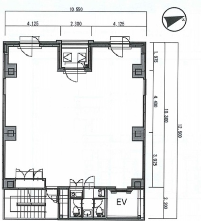
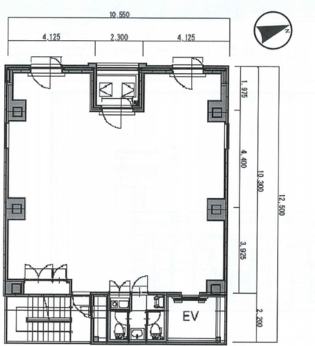
設備詳細
| 空調 | 個別空調 |
|---|---|
| トイレ | 男女別トイレ室内 |
| 床仕様 | OA対応床(2way/3way) |
| エレベータ | 1 基 |
| 駐車場設備 | - |
| その他 | 24時間利用可 / 光ファイバー / 新耐震基準 / 居抜き / オフィス居抜き特集 |
アクセスマップ
東京都中央区八丁堀2-21-11に位置する「八丁堀鈴らん通りビル」は、ビジネスの中心地にあるオフィス賃貸物件として、その立地と設備で多くの企業に注目されています。このビルは、1990年に竣工し、新耐震基準に沿って施工された安全性の高い建物です。ここでは、その特徴や設備、立地について詳細にご紹介します。 まず、外観についてですが、バルコニー付きのオシャレなデザインが特徴的で、レトロかつモダンな雰囲気を兼ね備えています。この外観は、来客時の印象を高めることにも繋がり、ビジネスにおけるブランドイメージの向上にも寄与します。また、エントランスは高級感溢れる造りとなっており、訪れる人々に良い印象を与えます。 ビルの設備に関しては、エレベーターが1機備え付けられており、スムーズな移動をサポートします。また、ビル内に駐車場が設置されているため、車を利用する従業員や来客の利便性が高くなっています。空き状況に関しては、お問い合わせいただくことで、最新の情報を提供させていただきます。 立地に関しては、東京メトロ日比谷線・JR京葉線「八丁堀」駅から徒歩2分という非常にアクセスしやすい位置にあります。また、「東京」駅までも徒歩13分で行ける距離にあるため、東京全域への営業活動や全国への出張が多いビジネスパーソンにとっては、非常に便利な立地条件を備えています。 八丁堀鈴らん通りビルは、安全性と利便性を兼ね備えたビルとして、さまざまなビジネスシーンで活躍する企業に最適な環境を提供します。お洒落な外観と高級感あふれるエントランスは、企業のイメージアップに貢献し、ビルの設備や立地の良さは、従業員の働きやすさやビジネスの効率化をサポートします。こうした特性を踏まえ、八丁堀鈴らん通りビルは、多くの企業にとって魅力的な選択肢となることでしょう。
募集終了のテナント区画
| 階数 | 坪数 | 賃料 + 共益費 | 敷金/礼金敷金 礼金 | 検討 |
|---|---|---|---|---|
| B1階 | 32.4坪 (107.11m²) | 募集終了 | - | - |
| 1階 | 32.9坪 (108.76m²) | 募集終了 | - | - |
| 2階 | 64.03坪 (211.68m²) | 募集終了 | - | - |
| 2階 | 31.13坪 (102.91m²) | 募集終了 | - | - |
| 4階 | 32.9坪 (108.76m²) | 募集終了 | - | - |
| 6階 | 32.9坪 (108.76m²) | 募集終了 | - | - |
| 7階 | 32.9坪 (108.76m²) | 募集終了 | - | - |
| 8階 | 25.8坪 (85.28m²) | 募集終了 | - | - |
WEB非公開物件がございます
オーナー様ご希望によるWEB非公開の物件もございます。先ずは条件などお知らせ頂けましたら、非公開物件含めピッタリのオフィスをご提案させて頂きます。具体的な物件がお決まりでない場合でも問題ございません。無理なお勧めはしておりませんので、お気軽にお問い合わせください。
ご来店も歓迎です
オフィス移転は社内・社外ともに非公開に行われることが殆どです。そのためアットオフィスでは、基本的に訪問によるコンサルティングを行っておりますが、ご来店の相談も歓迎です。
※お一人おひとりに親身にご対応させて頂きたい為、要予約とさせて頂いております。ご来店の際は先ずは上記よりご予約下さい。
読込中...
近くのエリアで探してみる
茅場町/新川/八丁堀エリアで八丁堀鈴らん通りビルに似た条件の物件
読込中...