アークランド四谷ビルの賃料条件
| 階数 | 坪数 | 賃料 + 共益費 | 敷金/礼金敷金 礼金 | 検討 |
|---|---|---|---|---|
| 2階 | 21.84坪 (72.26m²) | 260,000円 (坪:11,904 円) | 5ヶ月 無5ヶ月/無 | |
| 4階 | 22.64坪 (74.84m²) | 260,000円 (坪:11,483 円) | 5ヶ月 無5ヶ月/無 |
※このサイトに記載がある賃貸条件は、敷金・保証金などの預かり金を除き、別途消費税がかかります。
お電話でもお気軽にお問い合わせください
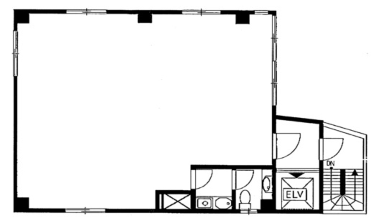
物件情報
設備詳細
| 空調 | 個別空調 |
|---|---|
| トイレ | 男女共用トイレ・室内 |
| 床仕様 | - |
| エレベータ | 1 基 |
| 駐車場設備 | - |
| その他 | 機械警備 / 24時間利用可 / 光ファイバー / 東京賃料が坪11000円以下 |
アクセスマップ
ビルのおすすめポイント アークランド四谷ビルはコンパクトながら重厚感ある造りが安心の建物3駅以上利用できる好立地です。勿論、24時間利用可能です。機械警備完備。
募集終了のテナント区画
| 階数 | 坪数 | 賃料 + 共益費 | 敷金/礼金敷金 礼金 | 検討 |
|---|---|---|---|---|
| 1階 | 61.19坪 (202.32m²) | 募集終了 | - | - |
| 2階 | 38坪 (125.62m²) | 募集終了 | - | - |
| 3階 | 22.64坪 (74.84m²) | 募集終了 | - | - |
| 3階 | 34.7坪 (114.72m²) | 募集終了 | - | - |
| 4階 | 20.08坪 (66.38m²) | 募集終了 | - | - |
| 6階 | 22.64坪 (74.84m²) | 募集終了 | - | - |
| 6階 | 21.42坪 (70.84m²) | 募集終了 | - | - |
WEB非公開物件がございます
オーナー様ご希望によるWEB非公開の物件もございます。先ずは条件などお知らせ頂けましたら、非公開物件含めピッタリのオフィスをご提案させて頂きます。具体的な物件がお決まりでない場合でも問題ございません。無理なお勧めはしておりませんので、お気軽にお問い合わせください。
ご来店も歓迎です
オフィス移転は社内・社外ともに非公開に行われることが殆どです。そのためアットオフィスでは、基本的に訪問によるコンサルティングを行っておりますが、ご来店の相談も歓迎です。
※お一人おひとりに親身にご対応させて頂きたい為、要予約とさせて頂いております。ご来店の際は先ずは上記よりご予約下さい。
読込中...
四ツ谷/信濃町エリアでアークランド四谷ビルに似た条件の物件
読込中...