※このサイトに記載がある賃貸条件は、敷金・保証金などの預かり金を除き、別途消費税がかかります。
物件情報
設備詳細
| 空調 | 個別空調 |
|---|---|
| トイレ | 男女別トイレ室外 |
| 床仕様 | - |
| エレベータ | 1 基 |
| 駐車場設備 | - |
| その他 | 機械警備 / 光ファイバー / オートロック / 新耐震基準 |
新花ビルの賃貸オフィス・事務所に関するお問い合わせ
新花ビルについて
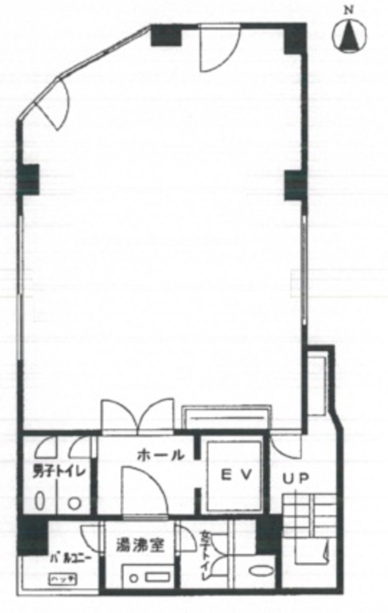
新花ビルは新宿区新宿1丁目、新宿御苑前駅からわずか徒歩2分という抜群の立地に位置する賃貸オフィスビルです。この地域はビジネスと日常が交差する活気あるエリアで、周辺には飲食店、コンビニ、郵便局などが充実しているため、オフィスで働く人々にとって非常に便利です。1989年に竣工したこのオフィスビルは、耐震性に優れ、安全性も保証されています。 新花ビルは、基準階面積が約30坪弱と小規模ながらも、効率的に使えるほぼ長方形の間取りを提供しています。オフィスの設備面では、男女別トイレや給湯設備が室外エレベーターホール脇に設置されており、オフィススペースを最大限に活用することができます。また、機械警備システムが導入されているため、セキュリティ面でも安心してビジネスを行うことが可能です。 特に注目すべきは、その立地の良さ。新宿御苑前駅からの近さはもちろん、地下鉄3路線が使える新宿三丁目駅も徒歩10分圏内にあり、多方面へのアクセスが非常に便利です。さらに、新宿駅からも徒歩15分弱ということで、JR、地下鉄、私鉄各線を利用することができ、ビジネスの拠点として最適な条件を備えています。 ビルの外観は、大きな窓ガラスが特徴的で、明るく開放的な印象を与えます。エレベーターは1基設置されており、スムーズな移動を支援します。1階には便利なすき家新宿御苑前店が入っており、忙しいビジネスパーソンにとっても嬉しいポイントです。 新花ビルの独自の魅力は、その立地の良さ、効率的なオフィススペース、そして充実した周辺環境にあります。ビジネスチャンスを広げ、日々のオフィスライフを豊かにするために、是非一度新花ビルをご検討ください。新宿区でのオフィス探しに最適な選択肢の一つと言えるでしょう。
新花ビルのこだわり
自分で探すより問い合わせる方が早いことがあります
WEB非公開物件があるから
オーナー様のご希望により「WEBでは非公開」にしている物件があります。 それらはWEBでいくら検索しても見つかりません。 先ずは条件などお知らせ頂けましたら非公開物件含め ピッタリのオフィスをご提案させて頂きます。 無理なお勧めはしておりませんので、お気軽にお問い合わせください。
対面でのご相談も受け付けております
ご来店も歓迎です
オフィス移転は社内・社外ともに非公開に行われることが殆どです。そのためアットオフィスでは、基本的に訪問によるコンサルティングを行っておりますが、ご来店の相談も歓迎です。お一人おひとりに親身にご対応させて頂きたい為、要予約とさせて頂いております。ご来店の際は先ずは下記よりご予約下さい。
募集終了のテナント区画
| 階数 | 坪数 | 賃料 + 共益費 | 敷金/礼金敷金 礼金 | 検討 |
|---|---|---|---|---|
| 1階 | 23.14坪 (76.5m²) | 募集終了 | - | - |
| 2階 | 29.86坪 (98.73m²) | 募集終了 | - | - |
| 3階 | 29.86坪 (98.73m²) | 募集終了 | - | - |
| 3階 | 29.86坪 (98.71m²) | 募集終了 | - | - |
| 4階 | 29.86坪 (98.71m²) | 募集終了 | - | - |
| 4階 | 29.86坪 (98.71m²) | 募集終了 | - | - |
| 4階 | 29.86坪 (98.71m²) | 募集終了 | - | - |
| 6階 | 29.86坪 (98.71m²) | 募集終了 | - | - |
読込中...
新宿/西新宿エリアで新花ビルに似た条件の物件
読込中...
| 取扱様態 | 仲介 |
|---|---|
| 取扱会社 | 株式会社 アットオフィス |