※このサイトに記載がある賃貸条件は、敷金・保証金などの預かり金を除き、別途消費税がかかります。
お電話でもお気軽にお問い合わせください
物件情報
設備詳細
| 空調 | - |
|---|---|
| トイレ | - |
| 床仕様 | - |
| エレベータ | 2 基 |
| 駐車場設備 | 空有 / 機械式駐車場 |
| その他 | 大型ビル / 光ファイバー / 新耐震基準 |
蒲田月村は、蒲田5丁目にあるオフィスビルです。蒲田駅から徒歩1分の駅近物件です。京急蒲田駅からは徒歩8分です。1990年に竣工しました。鉄骨鉄筋コンクリート造により耐震性に優れています。床下にケーブルやコンセントを納められるOAフロアです。エレベーターが2基あります。個別空調付きです。光ファイバーに対応しています。男女別トイレがあります。機械式駐車場があります。クリニックとして利用できます。フリーレント物件です。周辺には飲食店や区役所、銀行があります。近隣には店舗ビルやオフィスビルが立ち並んでいます。駅前の交差点に位置するため、移動に便利なエリアです。
募集終了のテナント区画
| 階数 | 坪数 | 賃料 + 共益費 | 敷金/礼金敷金 礼金 | 検討 |
|---|---|---|---|---|
| - | 149.56坪 (494.41m²) | 募集終了 | - | - |
| 3階 | 52.05坪 (172.07m²) | 募集終了 | - | - |
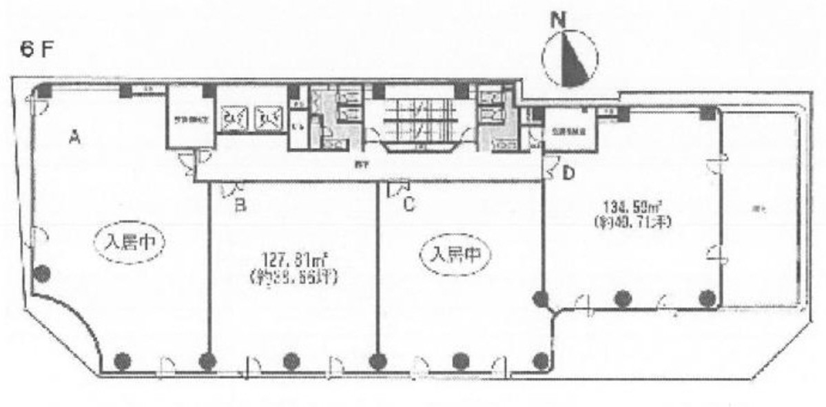
| 6階 | 40.71坪 (134.59m²) | 募集終了 | - | - |
| 8階 | 90.71坪 (299.88m²) | 募集終了 | - | - |
| 8階 | 52.05坪 (172.07m²) | 募集終了 | - | - |
| 8階 | 38.66坪 (127.81m²) | 募集終了 | - | - |
WEB非公開物件がございます
オーナー様ご希望によるWEB非公開の物件もございます。先ずは条件などお知らせ頂けましたら、非公開物件含めピッタリのオフィスをご提案させて頂きます。具体的な物件がお決まりでない場合でも問題ございません。無理なお勧めはしておりませんので、お気軽にお問い合わせください。
ご来店も歓迎です
オフィス移転は社内・社外ともに非公開に行われることが殆どです。そのためアットオフィスでは、基本的に訪問によるコンサルティングを行っておりますが、ご来店の相談も歓迎です。
※お一人おひとりに親身にご対応させて頂きたい為、要予約とさせて頂いております。ご来店の際は先ずは上記よりご予約下さい。
読込中...
大田区エリアで蒲田月村ビルに似た条件の物件
読込中...