※このサイトに記載がある賃貸条件は、敷金・保証金などの預かり金を除き、別途消費税がかかります。
お電話でもお気軽にお問い合わせください
物件情報
設備詳細
| 空調 | - |
|---|---|
| トイレ | - |
| 床仕様 | - |
| エレベータ | 3 基 |
| 駐車場設備 | - |
| その他 | 24時間利用可 / 大型ビル / 新耐震基準 |
郵政福祉琴平ビルは、東京都港区虎ノ門1丁目に位置する、赤茶色のレンガタイルで覆われた外観が特徴的なオフィスビルです。地上8階、地下3階建てのこのビルは、1983年に竣工した鉄骨鉄筋コンクリート造の耐震構造を持ち、オフィスとしての安全性と快適性を兼ね備えています。 ビルのオフィススペースは、最大約350坪の広さを誇り、各フロアごとにサイズが異なることで、さまざまな規模の企業ニーズに応えることが可能です。分割区画が設けられているため、複数のテナントが入居している階もあり、多様なビジネスがこのビルを拠点として活動しています。また、OAフロアを採用しており、床下にケーブルやコンセントを納めることができるため、オフィスレイアウトの自由度が高く、効率的な空間利用を実現できます。 1階にはコンビニエンスストアとキンコーズが入居しており、ビル利用者にとって日常的な利便性が高いことが魅力の一つです。地下には飲食店街があり、ランチタイムには周辺オフィスから多くのビジネスパーソンが訪れます。また、ビル内には駐車場も完備されており、車でのアクセスも容易です。 立地においては、虎ノ門駅から徒歩2分、虎ノ門ヒルズ駅からは徒歩1分という、非常にアクセスの良い場所に位置しています。近隣には桜田通りや外堀通りがあり、虎ノ門郵便局や各メガバンクの支店など、ビジネスに必要な施設が充実しています。また、オフィス街でありながら、多様な飲食店が周辺に豊富にあるため、ビジネスシーンだけでなく食事や憩いの場としても恵まれた環境です。 郵政福祉琴平ビルは、耐震性に優れた構造、多様な企業ニーズに対応可能なオフィススペース、日常の利便性を高めるテナント、そして優れたアクセスと周辺環境を兼ね備えたオフィスビルです。これらの特徴は、ビルを拠点とする企業にとって、ビジネスの効率化と働きやすい環境の実現を約束します。立地から受ける印象・信用度の向上も見込めるため、企業のブランドイメージ向上にも寄与するでしょう。郵政福祉琴平ビルは、ビジネスの成長を支える理想的な拠点です。
募集終了のテナント区画
| 階数 | 坪数 | 賃料 + 共益費 | 敷金/礼金敷金 礼金 | 検討 |
|---|---|---|---|---|
| B1階 | 21.24坪 (70.21m²) | 募集終了 | - | - |
| B1階 | 49.02坪 (162.05m²) | 募集終了 | - | - |
| - | 40.46坪 (133.75m²) | 募集終了 | - | - |
| 1階 | 185.7坪 (614.02m²) | 募集終了 | - | - |
| 1階 | 76.19坪 (251.87m²) | 募集終了 | - | - |
| 1階 | 60坪 (198.3m²) | 募集終了 | - | - |
| 1階 | 110坪 (363.63m²) | 募集終了 | - | - |
| 1階 | 42.49坪 (140.46m²) | 募集終了 | - | - |
| 1階 | 18.57坪 (64.42m²) | 募集終了 | - | - |
| 2階 | 100坪 (330.58m²) | 募集終了 | - | - |
| 3階 | 185.74坪 (614.02m²) | 募集終了 | - | - |
| 3階 | 99.88坪 (330.18m²) | 募集終了 | - | - |
| 3階 | 41.6坪 (137.52m²) | 募集終了 | - | - |
| 3階 | 25坪 (82.64m²) | 募集終了 | - | - |
| 3階 | 22.64坪 (74.85m²) | 募集終了 | - | - |
| 3階 | 44.96坪 (148.63m²) | 募集終了 | - | - |
| 4階 | 70.49坪 (233.02m²) | 募集終了 | - | - |
| 4階 | 100.32坪 (331.64m²) | 募集終了 | - | - |
| 5階 | 76.18坪 (251.84m²) | 募集終了 | - | - |
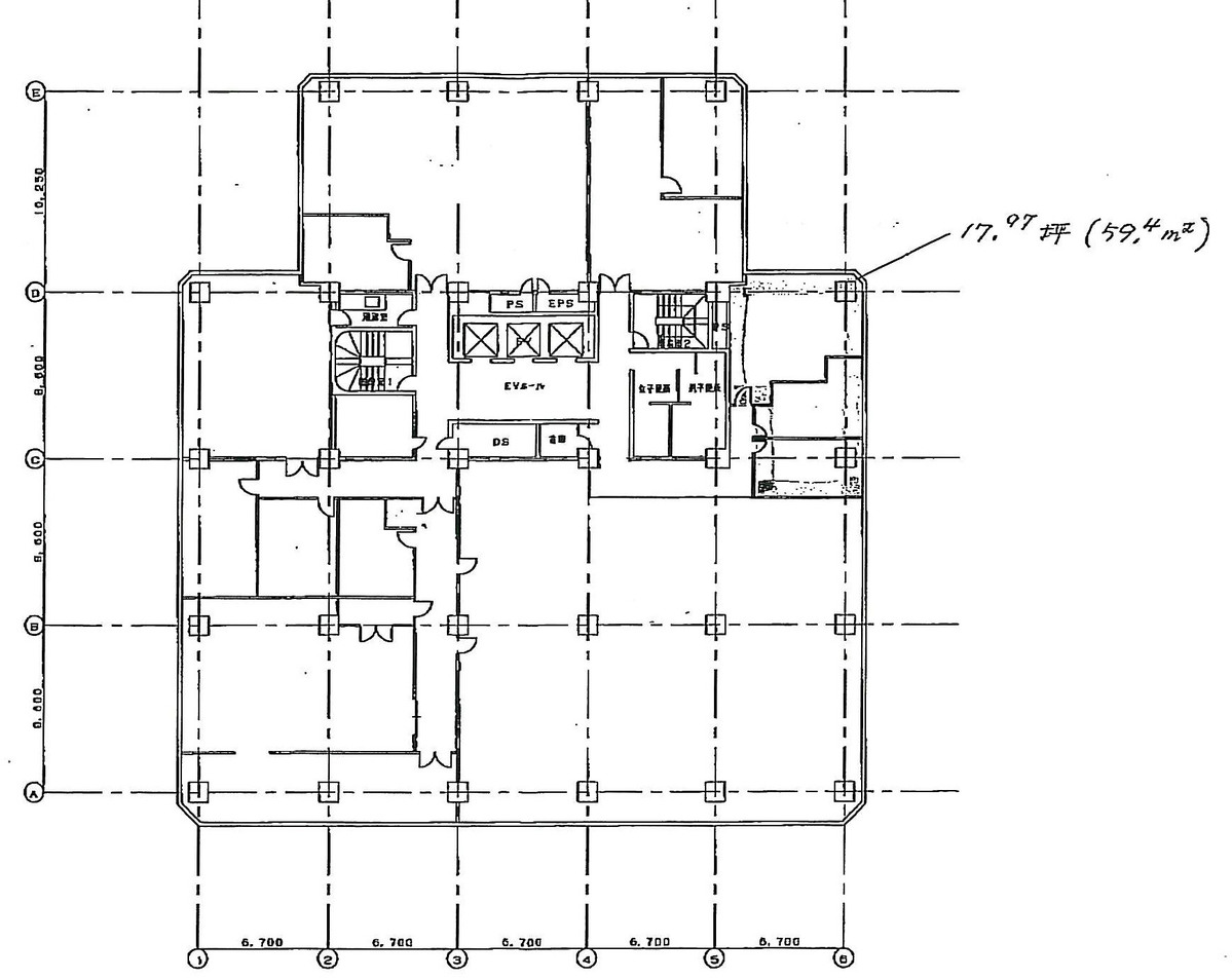
| 6階 | 17.97坪 (59.4m²) | 募集終了 | - | - |
| 6階 | 51.85坪 (171.4m²) | 募集終了 | - | - |
| 6階 | 26.89坪 (88.91m²) | 募集終了 | - | - |
| 7階 | 33.75坪 (111.57m²) | 募集終了 | - | - |
| 8階 | 76.18坪 (251.83m²) | 募集終了 | - | - |
| 8階 | 41.46坪 (137.05m²) | 募集終了 | - | - |
WEB非公開物件がございます
オーナー様ご希望によるWEB非公開の物件もございます。先ずは条件などお知らせ頂けましたら、非公開物件含めピッタリのオフィスをご提案させて頂きます。具体的な物件がお決まりでない場合でも問題ございません。無理なお勧めはしておりませんので、お気軽にお問い合わせください。
ご来店も歓迎です
オフィス移転は社内・社外ともに非公開に行われることが殆どです。そのためアットオフィスでは、基本的に訪問によるコンサルティングを行っておりますが、ご来店の相談も歓迎です。
※お一人おひとりに親身にご対応させて頂きたい為、要予約とさせて頂いております。ご来店の際は先ずは上記よりご予約下さい。
読込中...
近くのエリアで探してみる
新橋/虎ノ門/神谷町エリアで郵政福祉琴平ビルに似た条件の物件
読込中...