※このサイトに記載がある賃貸条件は、敷金・保証金などの預かり金を除き、別途消費税がかかります。
お電話でもお気軽にお問い合わせください
物件情報
設備詳細
| 空調 | - |
|---|---|
| トイレ | - |
| 床仕様 | - |
| エレベータ | 2 基 |
| 駐車場設備 | 機械式駐車場 |
| その他 | 機械警備 / 光ファイバー / 新耐震基準 / 管理人常駐 |
アクセスマップ
タニは、亀戸1丁目にあるオフィスビルです。亀戸駅から徒歩5分の駅近物件です。西大島駅からは徒歩7分です。1988年に竣工しました。鉄骨鉄筋コンクリート造により耐震性に優れています。床下にケーブルやコンセントを納められるOAフロアです。エレベーターが2基あります。個別空調付きです。光ファイバーに対応しています。男女別トイレがあります。セキュリティ設備があります。機械式駐車場があります。周辺には飲食店や専門店、クリニックがあります。近隣にはオフィスビルや店舗ビルが立ち並んでいます。大通りの交差点に位置するため、見通しの良い場所です。専門店やバス停のある駅前通りのため、利便性の良いエリアです。
募集終了のテナント区画
| 階数 | 坪数 | 賃料 + 共益費 | 敷金/礼金敷金 礼金 | 検討 |
|---|---|---|---|---|
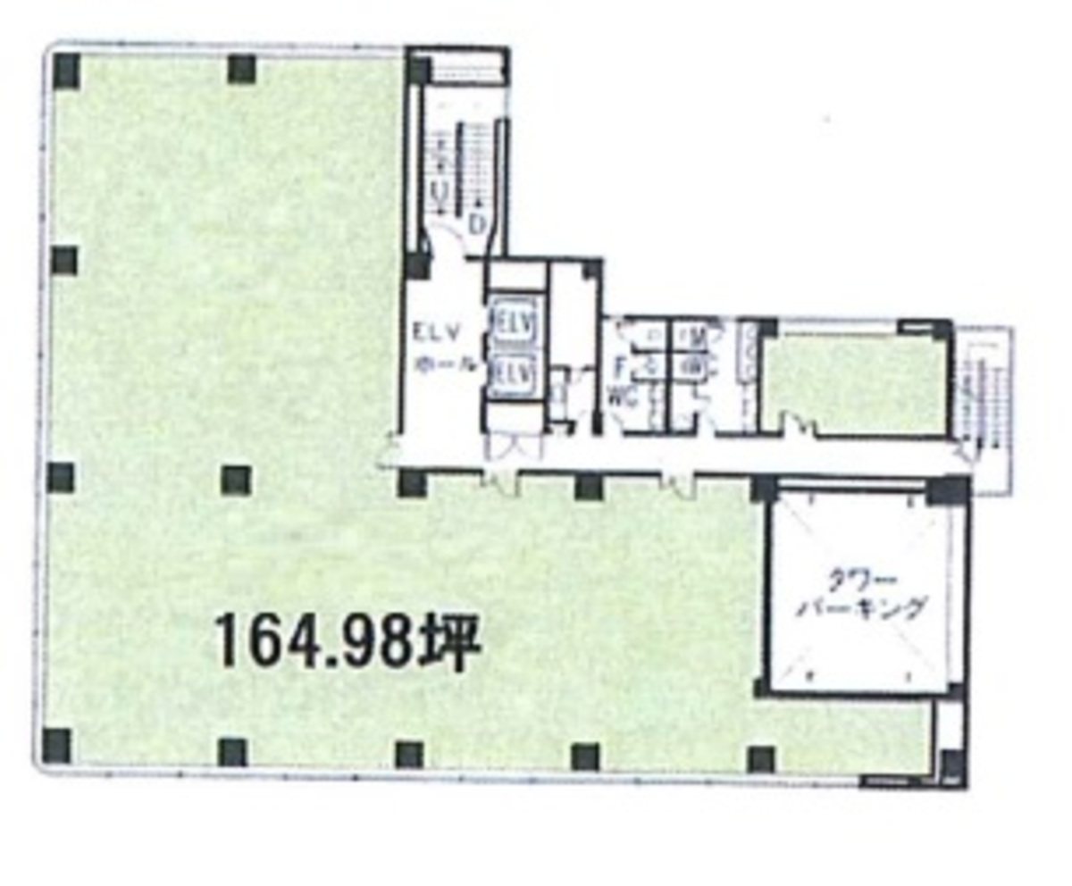
| 1階 | 140.97坪 (466.02m²) | 募集終了 | - | - |
| 2階 | 72.27坪 (424m²) | 募集終了 | - | - |
| 2階 | 119.5坪 (395m²) | 募集終了 | - | - |
| 3階 | 63.5坪 (209.92m²) | 募集終了 | - | - |
| 3階 | 119.5坪 (395.04m²) | 募集終了 | - | - |
| 4階 | 119.5坪 (395.04m²) | 募集終了 | - | - |
| 5階 | 63.5坪 (209.92m²) | 募集終了 | - | - |
| 5階 | 128.3坪 (424m²) | 募集終了 | - | - |
| 6階 | 63.5坪 (209.92m²) | 募集終了 | - | - |
| 6階 | 101.48坪 (335.6m²) | 募集終了 | - | - |
| 7階 | 156.21坪 (516.4m²) | 募集終了 | - | - |
| 7階 | 63.5坪 (209.91m²) | 募集終了 | - | - |
| 7階 | 92.71坪 (306.47m²) | 募集終了 | - | - |
| 7階 | 72.27坪 (238.92m²) | 募集終了 | - | - |
| 8階 | 63.5坪 (209.92m²) | 募集終了 | - | - |
WEB非公開物件がございます
オーナー様ご希望によるWEB非公開の物件もございます。先ずは条件などお知らせ頂けましたら、非公開物件含めピッタリのオフィスをご提案させて頂きます。具体的な物件がお決まりでない場合でも問題ございません。無理なお勧めはしておりませんので、お気軽にお問い合わせください。
ご来店も歓迎です
オフィス移転は社内・社外ともに非公開に行われることが殆どです。そのためアットオフィスでは、基本的に訪問によるコンサルティングを行っておりますが、ご来店の相談も歓迎です。
※お一人おひとりに親身にご対応させて頂きたい為、要予約とさせて頂いております。ご来店の際は先ずは上記よりご予約下さい。
読込中...
江東区エリアでタニビルに似た条件の物件
読込中...