※このサイトに記載がある賃貸条件は、敷金・保証金などの預かり金を除き、別途消費税がかかります。
お電話でもお気軽にお問い合わせください
物件情報
設備詳細
| 空調 | 個別空調 |
|---|---|
| トイレ | 男女別トイレ |
| 床仕様 | - |
| エレベータ | 1 基 / エレベーター有 |
| 駐車場設備 | - |
| その他 | 機械警備 / 光ファイバー / 24時間利用可 / 大通り面する / オートロック / 新耐震基準 |
アクセスマップ
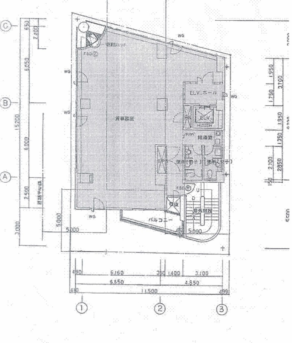
東京都豊島区高田3-18-9に位置する「Mali(マリビル)」をご紹介いたします。このビルは高田馬場駅から徒歩6分という抜群の立地条件を誇り、さらに学習院下駅や目白駅も徒歩7分圏内に位置しています。新目白通り沿いにあるため、視認性が非常に高く、訪問者への案内もスムーズです。 ### 立地の魅力 「Maliビル」は新目白通りに面しており、交通アクセスが非常に便利です。高田馬場駅から徒歩6分、学習院下駅や目白駅も徒歩7分の好立地にあり、ビジネスの拠点として最適です。周辺にはコンビニやスーパーマーケット、飲食店が点在しており、日々の業務に必要なすべてのものが揃っています。ビルの裏手には高田第三公園があり、気分転換やリフレッシュに最適な環境が整っています。 ### 建物の特徴と設備 1992年に竣工したMaliビルは、6階建ての耐震構造を持つオフィスビルです。各フロアは約41坪の広さがあり、ワンフロアワンテナント仕様となっているため、他の入居者に気兼ねすることなく快適にお過ごしいただけます。ガラス面が多く、室内は非常に明るい空間となっており、自然光をたっぷりと取り入れることができます。 トイレは男女別で、各貸室内に設置されているため、プライバシーも確保されています。また、空調は個別空調が採用されており、各テナントごとに快適な温度環境を設定することができます。セキュリティ面でも機械警備システムが完備されており、安全性を重視した設計がなされています。 ### フロアの仕様と利便性 Maliビルの各フロアはシンプルでありながら機能的なデザインが施されており、効率的なレイアウトが可能です。窓面が多いため、自然光がたっぷりと入り、明るく快適なオフィス環境が実現します。空調スイッチや給湯スペース、洗面台などの設備も充実しており、日常業務を円滑に進めるための利便性が高いです。 ### 周辺環境 ビルの周りには、日常生活の利便性を高める施設が揃っています。例えば、徒歩2分の場所には「セブンイレブン豊島高田三丁目店」があり、ちょっとした買い物に便利です。また、「すき家高田馬場駅北店」も徒歩2分の距離にあり、ランチタイムや急な食事の際にも大変重宝します。さらに、隣接する「ワイズマート高田馬場店」では、食料品や日用品が揃い、仕事帰りの買い物にも便利です。 ### 結論 「Maliビル」はその優れた立地条件、明るく快適な室内空間、充実した設備、そして安全性において非常に魅力的なオフィスビルです。ビジネスの拠点として最適な環境が整っており、従業員の働きやすさを最大限に引き出すことができます。ぜひ一度内覧いただき、その魅力を直接ご確認ください。
募集終了のテナント区画
| 階数 | 坪数 | 賃料 + 共益費 | 敷金/礼金敷金 礼金 | 検討 |
|---|---|---|---|---|
| 1階 | 25.16坪 (83.17m²) | 募集終了 | - | - |
| 1階 | 28.96坪 (95.74m²) | 募集終了 | - | - |
| 2階 | 39.78坪 (131.5m²) | 募集終了 | - | - |
| 3階 | 41坪 (135.54m²) | 募集終了 | - | - |
| 4階 | 40.99坪 (135.5m²) | 募集終了 | - | - |
| 5階 | 41坪 (135.54m²) | 募集終了 | - | - |
| 6階 | 29.19坪 (96.5m²) | 募集終了 | - | - |
| 6階 | 32.99坪 (109.09m²) | 募集終了 | - | - |
WEB非公開物件がございます
オーナー様ご希望によるWEB非公開の物件もございます。先ずは条件などお知らせ頂けましたら、非公開物件含めピッタリのオフィスをご提案させて頂きます。具体的な物件がお決まりでない場合でも問題ございません。無理なお勧めはしておりませんので、お気軽にお問い合わせください。
ご来店も歓迎です
オフィス移転は社内・社外ともに非公開に行われることが殆どです。そのためアットオフィスでは、基本的に訪問によるコンサルティングを行っておりますが、ご来店の相談も歓迎です。
※お一人おひとりに親身にご対応させて頂きたい為、要予約とさせて頂いております。ご来店の際は先ずは上記よりご予約下さい。
読込中...
池袋/大塚/目白エリアでMaliビルに似た条件の物件
読込中...