※このサイトに記載がある賃貸条件は、敷金・保証金などの預かり金を除き、別途消費税がかかります。
お電話でもお気軽にお問い合わせください
物件情報
設備詳細
| 空調 | - |
|---|---|
| トイレ | - |
| 床仕様 | - |
| エレベータ | 1 基 |
| 駐車場設備 | - |
| その他 | 新耐震基準 |
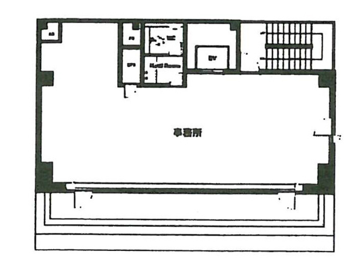
千代田区神田駿河台3丁目に位置する「三五」は、複数の路線に囲まれたエリアに建つ地上5階建ての建物です。千代田線「新御茶ノ水駅」から徒歩2分、都営新宿線「小川町駅」からは徒歩3分、さらに丸ノ内線「淡路町駅」も徒歩5分の範囲にあり、各路線を日常的に利用される企業にとって、移動や拠点間の連携を視野に入れた事業活動が行えます。 建物は、1997年11月に竣工し、新耐震基準に対応しています。ワンフロアごとの構成は、地上5階建てのため、各階ごとに独立した利用やフロアごとのレイアウト変更なども検討しやすい造りです。エレベーターが1基設置されており、ビル内の上下移動が可能です。 周辺はオフィスビルや教育施設が集まる地域であり、都市型の事業活動を想定した拠点整備にも対応できます。多様な業種や事業形態において、都心部での執務や打合せ、拠点運営の場としてご検討いただけます。詳細はお問い合わせください。
募集終了のテナント区画
| 階数 | 坪数 | 賃料 + 共益費 | 敷金/礼金敷金 礼金 | 検討 |
|---|---|---|---|---|
| 1階 | 24.91坪 (82.35m²) | 募集終了 | - | - |
| 2階 | 36.99坪 (122.28m²) | 募集終了 | - | - |
| 3階 | 36.99坪 (122.28m²) | 募集終了 | - | - |
| 4階 | 31.99坪 (105.75m²) | 募集終了 | - | - |
| 5階 | 23.19坪 (76.66m²) | 募集終了 | - | - |
WEB非公開物件がございます
オーナー様ご希望によるWEB非公開の物件もございます。先ずは条件などお知らせ頂けましたら、非公開物件含めピッタリのオフィスをご提案させて頂きます。具体的な物件がお決まりでない場合でも問題ございません。無理なお勧めはしておりませんので、お気軽にお問い合わせください。
ご来店も歓迎です
オフィス移転は社内・社外ともに非公開に行われることが殆どです。そのためアットオフィスでは、基本的に訪問によるコンサルティングを行っておりますが、ご来店の相談も歓迎です。
※お一人おひとりに親身にご対応させて頂きたい為、要予約とさせて頂いております。ご来店の際は先ずは上記よりご予約下さい。
読込中...
神田/秋葉原エリアで三五ビルに似た条件の物件
読込中...