※このサイトに記載がある賃貸条件は、敷金・保証金などの預かり金を除き、別途消費税がかかります。
お電話でもお気軽にお問い合わせください
物件情報
設備詳細
| 空調 | - |
|---|---|
| トイレ | - |
| 床仕様 | - |
| エレベータ | 1 基 |
| 駐車場設備 | - |
| その他 | 24時間利用可 / 光ファイバー / 新耐震基準 / 機械警備 |
本日は、銀座の中心地に位置する「四谷学院ビル」をご紹介いたします。このビルは、ビジネスの拠点として非常に魅力的な物件です。その特性や設備についてわかりやすくお伝えいたしますので、ぜひご一読ください。 ### ビルの基本情報 四谷学院ビルは、1989年に竣工した9階建てのオフィスビルで、新耐震基準を満たしているため、安心して利用いただけます。ビル内には1機のエレベーターが設置されており、快適に移動することができます。また、ビル内には駐車場も完備されていますので、お車でお越しの際には空き状況をお問い合わせください。 ### 立地 四谷学院ビルは、銀座5丁目の晴海通り沿いに位置しており、視認性が高いのが特徴です。最寄り駅は銀座駅で、銀座4丁目の交差点にも非常に近く、アクセスも抜群です。この立地は、ビジネスの中心地である銀座の中でも特に利便性が高いエリアに位置しており、お客様やクライアントとの打ち合わせにも最適です。 ### 建物の外観と内部 外観はガラス張りのスタイリッシュなデザインとなっており、ビジネスシーンにふさわしい高級感を醸し出しています。内部は、1フロアあたり約10坪から20坪のコンパクトな設計となっており、効率的にスペースを利用することができます。各フロアは使い勝手がよく、事務所やサービス店舗など様々な用途でご利用いただけます。 ### 独自の魅力とビジネス面での利点 四谷学院ビルの大きな魅力は、その立地と外観のデザインです。銀座の中心地に位置しながらも、コンパクトで使いやすいスペースを提供しているため、スタートアップ企業や小規模オフィスとしても非常に適しています。さらに、晴海通り沿いという視認性の高い場所にあるため、お客様からのアクセスも非常に良好です。 また、ビル周辺には高級レストランやカフェ、商業施設が立ち並んでおり、ビジネスの合間にリフレッシュする場所としても最適です。銀座というエリアのブランド力も相まって、ビジネスの信用度やステータスが向上すること間違いなしです。 ### 最後に 四谷学院ビルは、ビジネスの中心地である銀座に位置し、利便性と高級感を兼ね備えたオフィスビルです。コンパクトで使いやすいスペース、スタイリッシュな外観、そして充実した周辺環境が揃っており、ビジネスの成功をサポートします。ぜひ一度、現地をご覧いただき、その魅力を実感してください。ご興味がある方は、お気軽にお問い合わせください。
募集終了のテナント区画
| 階数 | 坪数 | 賃料 + 共益費 | 敷金/礼金敷金 礼金 | 検討 |
|---|---|---|---|---|
| B1階 | 12.02坪 (39.73m²) | 募集終了 | - | - |
| 1階 | 8.02坪 (26.51m²) | 募集終了 | - | - |
| 1階 | 8.02坪 (26.51m²) | 募集終了 | - | - |
| 2階 | 18.17坪 (60.06m²) | 募集終了 | - | - |
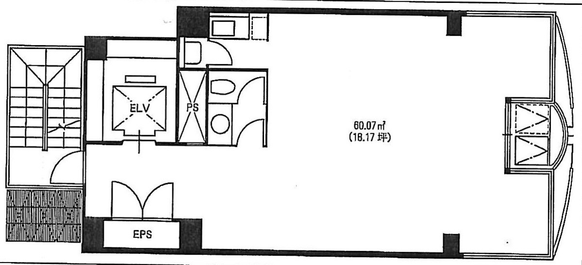
| 3階 | 18.17坪 (60.07m²) | 募集終了 | - | - |
| 4階 | 18.17坪 (60.06m²) | 募集終了 | - | - |
| 5階 | 18.17坪 (60.06m²) | 募集終了 | - | - |
| 6階 | 18.17坪 (60.07m²) | 募集終了 | - | - |
| 7階 | 18.17坪 (60.07m²) | 募集終了 | - | - |
| 8階 | 18.17坪 (60.06m²) | 募集終了 | - | - |
| 9階 | 18.17坪 (60.07m²) | 募集終了 | - | - |
WEB非公開物件がございます
オーナー様ご希望によるWEB非公開の物件もございます。先ずは条件などお知らせ頂けましたら、非公開物件含めピッタリのオフィスをご提案させて頂きます。具体的な物件がお決まりでない場合でも問題ございません。無理なお勧めはしておりませんので、お気軽にお問い合わせください。
ご来店も歓迎です
オフィス移転は社内・社外ともに非公開に行われることが殆どです。そのためアットオフィスでは、基本的に訪問によるコンサルティングを行っておりますが、ご来店の相談も歓迎です。
※お一人おひとりに親身にご対応させて頂きたい為、要予約とさせて頂いております。ご来店の際は先ずは上記よりご予約下さい。
読込中...
銀座エリアで四谷学院ビルに似た条件の物件
読込中...