※このサイトに記載がある賃貸条件は、敷金・保証金などの預かり金を除き、別途消費税がかかります。
お電話でもお気軽にお問い合わせください
物件情報
設備詳細
| 空調 | - |
|---|---|
| トイレ | - |
| 床仕様 | - |
| エレベータ | 1 基 |
| 駐車場設備 | - |
| その他 | 機械警備 / 24時間利用可 / 光ファイバー / 新耐震基準 |
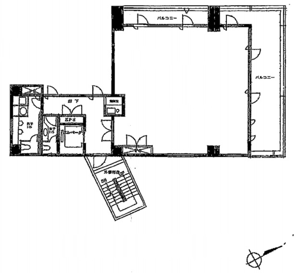
平河町共和ビルは、東京のビジネスの中心地、千代田区平河町に位置する、スタイリッシュで重厚感を持った外観が特徴の賃貸オフィスビルです。1991年に竣工したこの耐震構造のビルは、現代のビジネスニーズに応える設備と機能性を備え、あらゆる企業の要望にマッチするよう設計されました。その立地は半蔵門駅からわずか徒歩3分という駅近でありながら、麹町駅や永田町駅からも容易にアクセス可能な3駅利用可能な絶好のロケーションです。 ビルの特徴として、柱がないためレイアウト自由度が高く、約75坪の基準階面積を持つ貸室内は、創造性を高める自由な空間設計が可能です。また、一機のエレベーター、個別空調システム、室外男女別トイレ、給湯室などの設備を完備しており、快適なオフィス環境を提供します。機械警備システムも導入されており、安全性にも配慮されています。 平河町共和ビルの周辺環境は、オフィスビルやマンションが立ち並ぶビジネスエリアながら、中坂という坂道の途中に位置し、すぐ北側に平河天満宮があることから、落ち着いた雰囲気を持っています。ランチタイムやアフター5の時間を楽しむための飲食店も多く、ビジネスのみならず生活面でも利便性が高いです。 このビルは、その立地、設備、そして雰囲気といった全ての要素が、企業が求める「働きやすさ」と「アクセスの良さ」を兼ね備えています。スタイリッシュでありながらも重厚感のある外観は、ビジネスの顔としての印象も強く、企業イメージを高めることにも貢献します。また、柱がない広々とした空間は、創造的な仕事環境を実現し、社員のモチベーションや生産性の向上にも繋がるでしょう。 平河町共和ビルは、これからも多くの企業の成長を支え、ビジネスシーンをリードする存在となることでしょう。その立地の良さ、快適なオフィス環境、そして周辺環境の充実度は、あなたのビジネスを次のレベルへと押し上げる最適な場所です。
募集終了のテナント区画
| 階数 | 坪数 | 賃料 + 共益費 | 敷金/礼金敷金 礼金 | 検討 |
|---|---|---|---|---|
| B1階 | 70.23坪 (232.16m²) | 募集終了 | - | - |
| 2階 | 75.25坪 (248.76m²) | 募集終了 | - | - |
| 3階 | 69.24坪 (228.89m²) | 募集終了 | - | - |
| 4階 | 56.51坪 (186.8m²) | 募集終了 | - | - |
| 4階 | 53.11坪 (175.57m²) | 募集終了 | - | - |
| 5階 | 35.98坪 (118.94m²) | 募集終了 | - | - |
| 5階 | 53.11坪 (175.57m²) | 募集終了 | - | - |
WEB非公開物件がございます
オーナー様ご希望によるWEB非公開の物件もございます。先ずは条件などお知らせ頂けましたら、非公開物件含めピッタリのオフィスをご提案させて頂きます。具体的な物件がお決まりでない場合でも問題ございません。無理なお勧めはしておりませんので、お気軽にお問い合わせください。
ご来店も歓迎です
オフィス移転は社内・社外ともに非公開に行われることが殆どです。そのためアットオフィスでは、基本的に訪問によるコンサルティングを行っておりますが、ご来店の相談も歓迎です。
※お一人おひとりに親身にご対応させて頂きたい為、要予約とさせて頂いております。ご来店の際は先ずは上記よりご予約下さい。
読込中...
番町/麹町/平河町エリアで平河町共和ビルに似た条件の物件
読込中...