※このサイトに記載がある賃貸条件は、敷金・保証金などの預かり金を除き、別途消費税がかかります。
お電話でもお気軽にお問い合わせください
物件情報
設備詳細
| 空調 | - |
|---|---|
| トイレ | - |
| 床仕様 | - |
| エレベータ | 2 基 |
| 駐車場設備 | 空有 |
| その他 | 機械警備 / 24時間利用可 / 光ファイバー / 新耐震基準 |
アクセスマップ
KDX西新宿ビルは、東京都新宿区西新宿に位置する、1992年に竣工した賃貸オフィスビルです。基準階面積が100坪を超えるこの大型ビルは、耐震性能にも優れており、ビジネスの拠点として最適な環境を提供します。 立地においては、西新宿駅から徒歩4分、新宿西口駅からも利用可能というアクセスの良さが特徴です。さらに、新宿駅からも徒歩圏内という点から、複数の交通網を利用しやすい好立地にあります。周辺には飲食店やコンビニエンスストアが豊富にあり、ビジネスだけでなく、日々の生活にも便利な環境が整っています。 設備面では、24時間利用可能な柔軟なオフィス環境を提供しており、セキュリティ面でも機械警備を完備しています。また、ビル内には月極駐車場があり、自動車を利用される方にも配慮されています。エレベーターは2基設置されており、オフィスの移動もスムーズに行えます。 KDX西新宿ビルの最大の特徴は、中庭があることで良好な採光環境を実現している点です。この中庭を囲むように配置されたオフィスは、自然光が豊富に入るため、明るく開放感のある空間で働くことができます。これは、働く従業員の満足度向上に貢献するだけでなく、クリエイティブなアイデアが生まれやすい環境を提供します。 デザイン性においても、エントランスを入ってすぐに見える中庭と大きな半円型のガラス窓は、ビルの外観に独自の個性をもたらしています。このように、KDX西新宿ビルは機能性とデザイン性を兼ね備えた、ビジネスの場として魅力的なオフィスビルです。 ビジネスの拠点としての利点を総合的に考慮すると、KDX西新宿ビルは、アクセスの良さ、豊富な周辺施設、快適なオフィス環境、そしてセキュリティの充実という四つの柱を基に、あらゆるビジネスニーズに対応できる賃貸オフィスビルと言えるでしょう。企業が新しいビジネスステージを求める際に、KDX西新宿ビルは最適な選択肢の一つとなり得ることでしょう。
募集終了のテナント区画
| 階数 | 坪数 | 賃料 + 共益費 | 敷金/礼金敷金 礼金 | 検討 |
|---|---|---|---|---|
| 1階 | 17.08坪 (56.46m²) | 募集終了 | - | - |
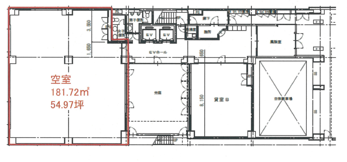
| 1階 | 54.97坪 (181.72m²) | 募集終了 | - | - |
| 2階 | 24.57坪 (81.22m²) | 募集終了 | - | - |
| 2階 | 52.03坪 (172m²) | 募集終了 | - | - |
| 2階 | 24.14坪 (79.8m²) | 募集終了 | - | - |
| 3階 | 52.52坪 (173.62m²) | 募集終了 | - | - |
| 3階 | 59.58坪 (196.96m²) | 募集終了 | - | - |
| 3階 | 59.74坪 (197.49m²) | 募集終了 | - | - |
| 4階 | 52.52坪 (173.62m²) | 募集終了 | - | - |
| 4階 | 59.33坪 (196.13m²) | 募集終了 | - | - |
| 5階 | 58.83坪 (194.48m²) | 募集終了 | - | - |
| 5階 | 52.03坪 (172m²) | 募集終了 | - | - |
| 6階 | 59.2坪 (195.7m²) | 募集終了 | - | - |
| 6階 | 52.52坪 (173.62m²) | 募集終了 | - | - |
WEB非公開物件がございます
オーナー様ご希望によるWEB非公開の物件もございます。先ずは条件などお知らせ頂けましたら、非公開物件含めピッタリのオフィスをご提案させて頂きます。具体的な物件がお決まりでない場合でも問題ございません。無理なお勧めはしておりませんので、お気軽にお問い合わせください。
ご来店も歓迎です
オフィス移転は社内・社外ともに非公開に行われることが殆どです。そのためアットオフィスでは、基本的に訪問によるコンサルティングを行っておりますが、ご来店の相談も歓迎です。
※お一人おひとりに親身にご対応させて頂きたい為、要予約とさせて頂いております。ご来店の際は先ずは上記よりご予約下さい。
読込中...
新宿/西新宿エリアでKDX西新宿ビルに似た条件の物件
読込中...