※このサイトに記載がある賃貸条件は、敷金・保証金などの預かり金を除き、別途消費税がかかります。
お電話でもお気軽にお問い合わせください
物件情報
設備詳細
| 空調 | - |
|---|---|
| トイレ | - |
| 床仕様 | - |
| エレベータ | 3 基 |
| 駐車場設備 | 空無 / 機械式駐車場 |
| その他 | 機械警備 / 24時間利用可 / 大型ビル / 光ファイバー / 新耐震基準 |
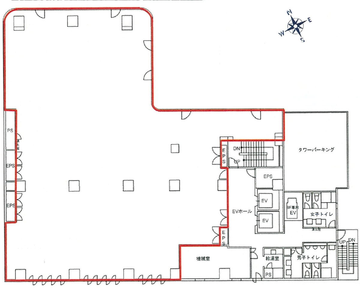
ビルのおすすめポイント 大塚駅から徒歩約7分に立地する地上9階・地下1階建て、竣工1991年の賃貸オフィスビルです。エレベーターは3基設置されています。 基準階貸室面積は約154.42坪、エレベーターホールやお手洗いなどは執務室の外に配置されており、使いやすいオフィス空間となっています。機械警備・個別空調・OAフロア・男女別トイレ等の設備仕様です。2021年12月に共用部リニューアル済みです。
募集終了のテナント区画
| 階数 | 坪数 | 賃料 + 共益費 | 敷金/礼金敷金 礼金 | 検討 |
|---|---|---|---|---|
| 1階 | 115.65坪 (382.31m²) | 募集終了 | - | - |
| 2階 | 154.42坪 (510.47m²) | 募集終了 | - | - |
| 2階 | 154.42坪 (510.48m²) | 募集終了 | - | - |
| 3階 | 152.22坪 (503.21m²) | 募集終了 | - | - |
| 4階 | 152.22坪 (503.2m²) | 募集終了 | - | - |
| 5階 | 154.42坪 (510.47m²) | 募集終了 | - | - |
| 6階 | 154.42坪 (510.5m²) | 募集終了 | - | - |
| 7階 | 154.42坪 (510.47m²) | 募集終了 | - | - |
| 8階 | 154.42坪 (510.47m²) | 募集終了 | - | - |
| 9階 | 80坪 (264.46m²) | 募集終了 | - | - |
WEB非公開物件がございます
オーナー様ご希望によるWEB非公開の物件もございます。先ずは条件などお知らせ頂けましたら、非公開物件含めピッタリのオフィスをご提案させて頂きます。具体的な物件がお決まりでない場合でも問題ございません。無理なお勧めはしておりませんので、お気軽にお問い合わせください。
ご来店も歓迎です
オフィス移転は社内・社外ともに非公開に行われることが殆どです。そのためアットオフィスでは、基本的に訪問によるコンサルティングを行っておりますが、ご来店の相談も歓迎です。
※お一人おひとりに親身にご対応させて頂きたい為、要予約とさせて頂いております。ご来店の際は先ずは上記よりご予約下さい。
読込中...
池袋/大塚/目白エリアで東池袋センタービルに似た条件の物件
読込中...