※このサイトに記載がある賃貸条件は、敷金・保証金などの預かり金を除き、別途消費税がかかります。
お電話でもお気軽にお問い合わせください
物件情報
設備詳細
| 空調 | - |
|---|---|
| トイレ | - |
| 床仕様 | - |
| エレベータ | 5 基 |
| 駐車場設備 | 空無 |
| その他 | 機械警備 / 大型ビル / 管理人常駐 / 光ファイバー |
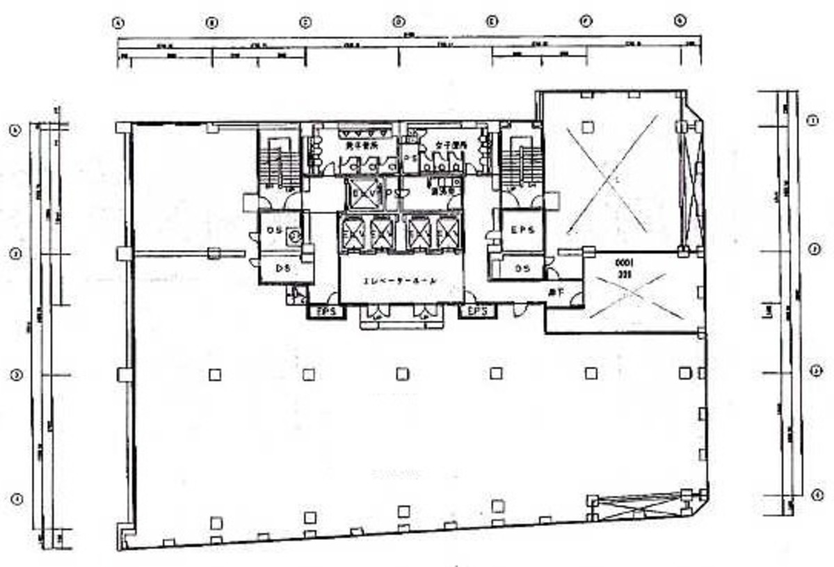
MY新宿第2ビルおよびヨドバシ新宿西口駅前ビルは、それぞれ独自の魅力を持つ賃貸オフィス物件です。以下に、これらのビルの特徴、立地、設備を詳しく紹介し、ビジネスにおける利点を強調いたします。 MY新宿第2ビルは、東京都新宿区西新宿1丁目に位置し、新宿駅に直結しているという絶好の立地条件を備えています。この物件は1971年の新耐震基準施行前に竣工したものの、ハイグレードなオフィス空間を提供しており、窓面が大きく採光に優れています。そのため、明るい室内環境が魅力の一つとなっております。ビル内には駐車場が設置されており、訪問者や従業員の利便性を高めています。また、エレベーターは5機設置されており、ビルの流通性とアクセスの良さを保証しています。 一方、ヨドバシ新宿西口駅前ビルは、新宿区西新宿に立地し、基準階約293坪の賃貸オフィス物件です。1971年に竣工したこの11階建てのビルは、外観がスタイリッシュで、窓面が多いことが特徴です。フロアによって様々な大きさの区画があり、企業のニーズに応じた柔軟なオフィスレイアウトが可能です。個別空調が完備されており、作業環境を快適に保つことができます。共用部には男女別のトイレがあり、エレベーターは4基設置されています。新宿西口のロータリーが一望できる立地であり、日当たりが良好です。 両ビル共に、新宿駅に近いという立地はビジネスにおいて大きな利点となります。新宿駅は東京都内でも主要な交通のハブであり、従業員やビジネスパートナーのアクセスに非常に便利です。また、周辺には大型商業施設、飲食店、銀行などが充実しており、ビジネスのみならず生活の利便性も高い環境です。 MY新宿第2ビルは、そのハイグレードな内装と明るいオフィス環境が、クリエイティブな業務を行う企業に最適です。一方、ヨドバシ新宿西口駅前ビルは、スタイリッシュな外観と柔軟性の高いオフィスレイアウトが、ダイナミックなビジネス展開を目指す企業に適しています。 以上のように、MY新宿第2ビルとヨドバシ新宿西口駅前ビルは、それぞれ異なる特性を持ちながらも、新宿というビジネスの中心地において、各企業のニーズに応える魅力的な賃貸オフィス物件です。
募集終了のテナント区画
| 階数 | 坪数 | 賃料 + 共益費 | 敷金/礼金敷金 礼金 | 検討 |
|---|---|---|---|---|
| 3階 | 25.73坪 (85.05m²) | 募集終了 | - | - |
| 3階 | 60.12坪 (198.74m²) | 募集終了 | - | - |
| 3階 | 37.34坪 (123.43m²) | 募集終了 | - | - |
| 3階 | 108.55坪 (358.84m²) | 募集終了 | - | - |
| 3階 | 16.92坪 (55.93m²) | 募集終了 | - | - |
| 3階 | 35.86坪 (118.54m²) | 募集終了 | - | - |
| 10階 | 35.03坪 (115.8m²) | 募集終了 | - | - |
| 10階 | 51.5坪 (170.24m²) | 募集終了 | - | - |
| 10階 | 82.73坪 (273.48m²) | 募集終了 | - | - |
| 10階 | 51.14坪 (169.05m²) | 募集終了 | - | - |
WEB非公開物件がございます
オーナー様ご希望によるWEB非公開の物件もございます。先ずは条件などお知らせ頂けましたら、非公開物件含めピッタリのオフィスをご提案させて頂きます。具体的な物件がお決まりでない場合でも問題ございません。無理なお勧めはしておりませんので、お気軽にお問い合わせください。
ご来店も歓迎です
オフィス移転は社内・社外ともに非公開に行われることが殆どです。そのためアットオフィスでは、基本的に訪問によるコンサルティングを行っておりますが、ご来店の相談も歓迎です。
※お一人おひとりに親身にご対応させて頂きたい為、要予約とさせて頂いております。ご来店の際は先ずは上記よりご予約下さい。
読込中...
新宿/西新宿エリアでヨドバシ新宿西口前ビルに似た条件の物件
読込中...