※このサイトに記載がある賃貸条件は、敷金・保証金などの預かり金を除き、別途消費税がかかります。
お電話でもお気軽にお問い合わせください
物件情報
設備詳細
| 空調 | - |
|---|---|
| トイレ | - |
| 床仕様 | - |
| エレベータ | 1 基 |
| 駐車場設備 | - |
| その他 | 新耐震基準 / 機械警備 |
アクセスマップ
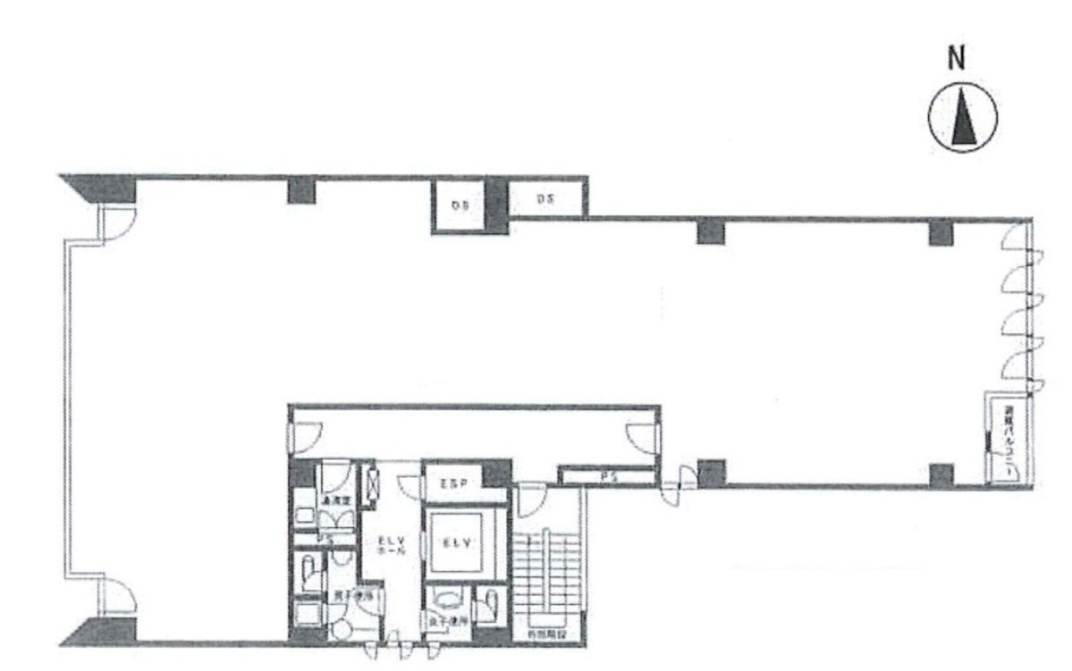
クリハシビルは、新宿区新宿に位置する、商業活動の中心地にふさわしい賃貸オフィスビルです。1989年に竣工されたこの9階建てのビルは、鉄骨鉄筋コンクリート造りで耐震性に優れ、安全性を確保しています。基準階約60坪の広さを誇り、フロアによっては分割区画のオプションがございますので、様々なビジネスサイズに対応可能です。 立地においては、クリハシビルは新宿三丁目駅から徒歩1分という非常に便利な場所にあり、新宿駅・西武新宿駅・新宿御苑前駅も徒歩圏内にあります。この立地は3駅以上のアクセスを可能にし、都心への移動が容易であるため、ビジネスチャンスを最大限に活用することができます。また、周辺には多様な飲食店や商業施設が豊富にあり、ビジネスの日常においても大変便利な環境です。 設備面では、ビルのセキュリティとして機械警備が完備されており、24時間使用が可能なことが大きな特徴です。これにより、時間に縛られることなく柔軟なワークスタイルを実現できます。また、オフィス内は個別空調が完備されており、快適なオフィス環境を保持することができます。トイレは男女別で、清潔感のある管理状態を保つことができます。 建物のデザインにも注目です。クリハシビルは、前面ガラス張りの明るいオフィスで、明治通りに面しているため、良好な視認性と開放感を提供します。内部のデザインも白を基調としたシンプルな装飾が施されており、様々な業種に合わせやすいレイアウトが可能です。また、エレベーターは1基設置されていますが、ビルの規模に適した配慮がなされています。 このように、クリハシビルは立地の良さ、安全性、便利な設備、そして快適なオフィス環境を兼ね備えた、ビジネスに最適な賃貸オフィスビルです。新宿という活動的な地域でビジネスを展開し、成長させたい企業様にとって、クリハシビルは理想的な選択となるでしょう。
募集終了のテナント区画
| 階数 | 坪数 | 賃料 + 共益費 | 敷金/礼金敷金 礼金 | 検討 |
|---|---|---|---|---|
| 7階 | 62.28坪 (205.89m²) | 募集終了 | - | - |
WEB非公開物件がございます
オーナー様ご希望によるWEB非公開の物件もございます。先ずは条件などお知らせ頂けましたら、非公開物件含めピッタリのオフィスをご提案させて頂きます。具体的な物件がお決まりでない場合でも問題ございません。無理なお勧めはしておりませんので、お気軽にお問い合わせください。
ご来店も歓迎です
オフィス移転は社内・社外ともに非公開に行われることが殆どです。そのためアットオフィスでは、基本的に訪問によるコンサルティングを行っておりますが、ご来店の相談も歓迎です。
※お一人おひとりに親身にご対応させて頂きたい為、要予約とさせて頂いております。ご来店の際は先ずは上記よりご予約下さい。
読込中...
新宿/西新宿エリアでクリハシビルに似た条件の物件
読込中...