※このサイトに記載がある賃貸条件は、敷金・保証金などの預かり金を除き、別途消費税がかかります。
お電話でもお気軽にお問い合わせください
物件情報
設備詳細
| 空調 | - |
|---|---|
| トイレ | - |
| 床仕様 | - |
| エレベータ | 1 基 |
| 駐車場設備 | - |
| その他 | 24時間利用可 |
アクセスマップ
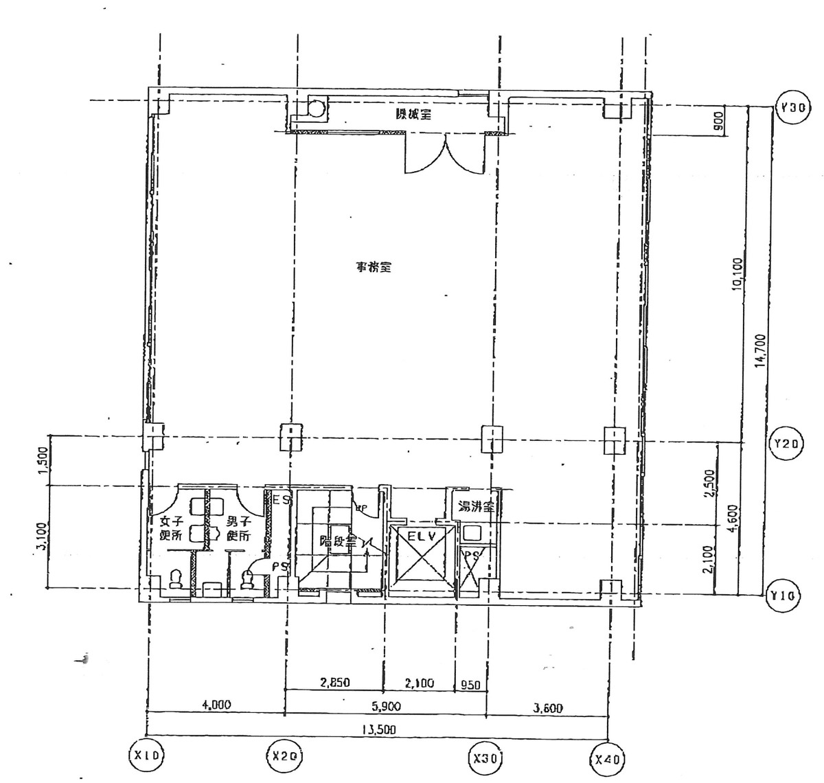
多摩川新宿ビルは、新宿区新宿2丁目に位置する、ビジネスの中心地にふさわしい賃貸オフィスビルです。このビルは1975年に竣工し、9階建ての構造で、基準階約60坪の広々としたオフィススペースを提供しています。その外観は、グレーの落ち着いた色合いで、エントランスやその管理状態の良さが、訪れる人々に重厚感と信頼感を与えます。 このビルの最大の特徴の一つは、その立地にあります。新宿御苑前駅から徒歩3分というアクセスの良さは、ビジネスの機動性を高めるだけでなく、新宿三丁目駅へのアクセスも容易で、新宿区内外への移動が非常に便利です。また、ビルの周辺にはコンビニや郵便局、カフェなどの生活に必要な施設が充実しており、忙しいビジネスパーソンの日常生活をサポートします。 オフィス空間に関しては、開放感あふれるデザインと天井の高さが特徴で、シックな内装が落ち着いた雰囲気を生み出しています。また、個別空調システムを導入しているため、各テナントが快適な室温を自由に調整できることも大きな利点です。貸室内に設置された男女別のトイレ、給湯スペース、そして個室トイレと洗面台も、オフィスでの快適な勤務環境を提供します。 エレベーターは1基設置されていますが、24時間利用可能なオフィスとしては、テナントのニーズにしっかり応える設備といえるでしょう。室内に一部柱がありますが、レイアウトしやすい形状をしており、効率的なオフィス環境を実現できます。 多摩川新宿ビルは、その立地の良さ、施設の充実、そして利用者の快適性を考えた設計で、新宿区におけるビジネスの拠点として、また働きやすい環境として、多くの企業に選ばれています。新宿というビジネスと文化の中心地において、このビルは独自の魅力とビジネスにおける利点を兼ね備えていることでしょう。
募集終了のテナント区画
| 階数 | 坪数 | 賃料 + 共益費 | 敷金/礼金敷金 礼金 | 検討 |
|---|---|---|---|---|
| 2階 | 60.38坪 (199.6m²) | 募集終了 | - | - |
| 4階 | 60.38坪 (199.6m²) | 募集終了 | - | - |
| 5階 | 60.38坪 (199.6m²) | 募集終了 | - | - |
| 8階 | 41.89坪 (138.47m²) | 募集終了 | - | - |
WEB非公開物件がございます
オーナー様ご希望によるWEB非公開の物件もございます。先ずは条件などお知らせ頂けましたら、非公開物件含めピッタリのオフィスをご提案させて頂きます。具体的な物件がお決まりでない場合でも問題ございません。無理なお勧めはしておりませんので、お気軽にお問い合わせください。
ご来店も歓迎です
オフィス移転は社内・社外ともに非公開に行われることが殆どです。そのためアットオフィスでは、基本的に訪問によるコンサルティングを行っておりますが、ご来店の相談も歓迎です。
※お一人おひとりに親身にご対応させて頂きたい為、要予約とさせて頂いております。ご来店の際は先ずは上記よりご予約下さい。
読込中...
新宿/西新宿エリアで多摩川新宿ビルに似た条件の物件
読込中...