※このサイトに記載がある賃貸条件は、敷金・保証金などの預かり金を除き、別途消費税がかかります。
お電話でもお気軽にお問い合わせください
物件情報
設備詳細
| 空調 | - |
|---|---|
| トイレ | - |
| 床仕様 | - |
| エレベータ | 1 基 |
| 駐車場設備 | - |
| その他 | 機械警備 / 新耐震基準 |
アストゥルビルは、渋谷区恵比寿西1丁目の駒沢通りに面した戦略的な立地にあるオフィスビルです。このビルは、1992年の竣工以来、多くの企業にとって優れたビジネスの拠点となり続けています。地下鉄恵比寿駅の入口が目の前にあり、アクセスの利便性は抜群です。来客があった際にも説明しやすく、ビジネスの機会を逃しません。 このビルの特徴は、その設備の高さとスペックの良さにあります。新耐震基準に対応しているため、安心してビジネスを行うことができます。また、OAフロア完備で、テクノロジーを駆使した効率的なオフィス環境を提供します。ビルの形状はL字型でありながらも広い幅を持っているため、様々なレイアウトが可能です。これにより、企業の個別のニーズに合わせたオフィス空間を実現できます。 さらに、1フロア1テナント制を採用しており、テナントはプライバシーと独立性を享受することができます。男女別のトイレ設備も完備しており、快適な職場環境を提供します。エレベーターは1機設置されており、スムーズな移動が可能です。 アストゥルビルでは、立地の良さ、最新の設備、そして使い勝手の良さが融合しています。これらの特性は、企業が成長し、ビジネスを発展させるための強力なサポートとなり得ます。あなたのビジネスに最適なオフィス空間を見つけるために、ぜひアストゥルビルを検討してみてください。
募集終了のテナント区画
| 階数 | 坪数 | 賃料 + 共益費 | 敷金/礼金敷金 礼金 | 検討 |
|---|---|---|---|---|
| 1階 | 60.75坪 (200.82m²) | 募集終了 | - | - |
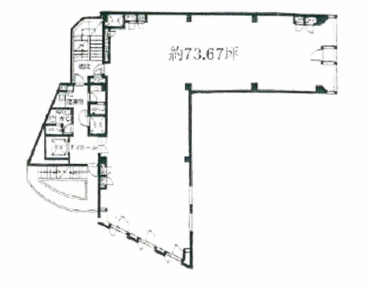
| 2階 | 73.67坪 (243.54m²) | 募集終了 | - | - |
| 3階 | 73.67坪 (243.54m²) | 募集終了 | - | - |
| 4階 | 73.67坪 (243.54m²) | 募集終了 | - | - |
| 5階 | 73.67坪 (243.54m²) | 募集終了 | - | - |
| 6階 | 73.67坪 (243.54m²) | 募集終了 | - | - |
| 7階 | 73.67坪 (243.54m²) | 募集終了 | - | - |
| 8階 | 73.67坪 (243.54m²) | 募集終了 | - | - |
WEB非公開物件がございます
オーナー様ご希望によるWEB非公開の物件もございます。先ずは条件などお知らせ頂けましたら、非公開物件含めピッタリのオフィスをご提案させて頂きます。具体的な物件がお決まりでない場合でも問題ございません。無理なお勧めはしておりませんので、お気軽にお問い合わせください。
ご来店も歓迎です
オフィス移転は社内・社外ともに非公開に行われることが殆どです。そのためアットオフィスでは、基本的に訪問によるコンサルティングを行っておりますが、ご来店の相談も歓迎です。
※お一人おひとりに親身にご対応させて頂きたい為、要予約とさせて頂いております。ご来店の際は先ずは上記よりご予約下さい。
読込中...
近くのエリアで探してみる
恵比寿/代官山/広尾エリアでアストゥルビルに似た条件の物件
読込中...