※このサイトに記載がある賃貸条件は、敷金・保証金などの預かり金を除き、別途消費税がかかります。
お電話でもお気軽にお問い合わせください
物件情報
設備詳細
| 空調 | - |
|---|---|
| トイレ | - |
| 床仕様 | - |
| エレベータ | 1 基 |
| 駐車場設備 | - |
| その他 | 機械警備 / 24時間利用可 / オートロック / 新耐震基準 |
アクセスマップ
【若葉西ビル:光輝く未来への第一歩】 ご紹介する若葉西ビルは、恵比寿西1丁目(渋谷区)に位置する、ビジネスの成功を象徴するオフィスビルです。その最大の魅力は、何といってもその立地の良さにあります。恵比寿駅からわずかな距離にあり、日々の通勤が非常に便利です。また、恵比寿南交差点角地に位置することで、周囲からの視認性が非常に高く、ビジネスの顔としての価値を一層高めています。 ビル設備においても特筆すべき点が多々あります。まず、ビル内には1機のエレベーターが完備されており、スムーズな移動を可能にしています。日々の業務で忙しく動き回るビジネスパーソンにとって、時間を有効に使うことは非常に重要です。若葉西ビルでは、この点においても最適な環境を提供しています。 また、窓面が広く設計されており、自然光がたっぷりと取り込めるため、オフィス内は常に明るく活気に満ちています。良好な採光は、働く人々の心身の健康を保ち、生産性の向上にもつながります。実際に働く空間が快適であることは、長時間の業務においても疲れにくく、結果的にビジネスパフォーマンスの向上にも寄与します。 立地、設備、そして働く環境のすべてにおいて、若葉西ビルはビジネスの成功を後押しする要素を備えています。恵比寿という東京を代表するビジネス地域に位置しながらも、静かで快適なオフィス環境を提供するこのビルは、新たな事業のスタートにも、既存事業の拡大にも最適な場所と言えるでしょう。 ビジネスの未来を見据え、次のステップを踏み出す準備ができている企業さまに、若葉西ビルは最高の選択肢を提供します。この場所で、光輝く未来への第一歩を踏み出しましょう。
募集終了のテナント区画
| 階数 | 坪数 | 賃料 + 共益費 | 敷金/礼金敷金 礼金 | 検討 |
|---|---|---|---|---|
| 2階 | 26.32坪 (87.03m²) | 募集終了 | - | - |
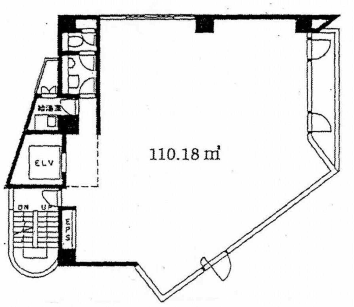
| 3階 | 33.3坪 (110.08m²) | 募集終了 | - | - |
| 5階 | 33.33坪 (110.18m²) | 募集終了 | - | - |
| 6階 | 33.33坪 (110.18m²) | 募集終了 | - | - |
| 7階 | 33.3坪 (110.08m²) | 募集終了 | - | - |
| 8階 | 33.33坪 (110.18m²) | 募集終了 | - | - |
| 9階 | 33.33坪 (110.18m²) | 募集終了 | - | - |
| 10階 | 13.42坪 (44.37m²) | 募集終了 | - | - |
WEB非公開物件がございます
オーナー様ご希望によるWEB非公開の物件もございます。先ずは条件などお知らせ頂けましたら、非公開物件含めピッタリのオフィスをご提案させて頂きます。具体的な物件がお決まりでない場合でも問題ございません。無理なお勧めはしておりませんので、お気軽にお問い合わせください。
ご来店も歓迎です
オフィス移転は社内・社外ともに非公開に行われることが殆どです。そのためアットオフィスでは、基本的に訪問によるコンサルティングを行っておりますが、ご来店の相談も歓迎です。
※お一人おひとりに親身にご対応させて頂きたい為、要予約とさせて頂いております。ご来店の際は先ずは上記よりご予約下さい。
読込中...
近くのエリアで探してみる
恵比寿/代官山/広尾エリアで若葉西ビルに似た条件の物件
読込中...