※このサイトに記載がある賃貸条件は、敷金・保証金などの預かり金を除き、別途消費税がかかります。
お電話でもお気軽にお問い合わせください
物件情報
設備詳細
| 空調 | - |
|---|---|
| トイレ | - |
| 床仕様 | - |
| エレベータ | 1 基 |
| 駐車場設備 | 空有 |
| その他 | 機械警備 / 新耐震基準 |
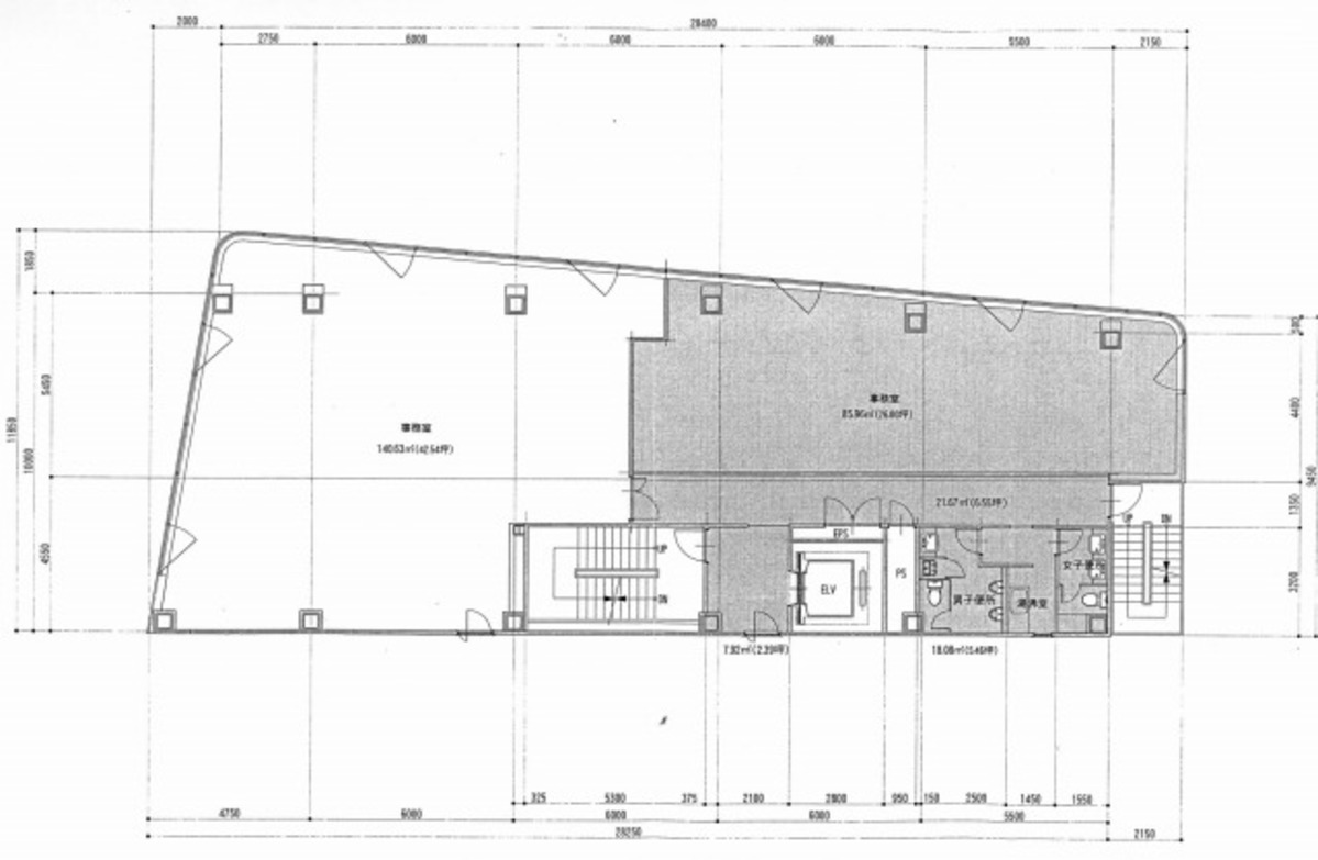
イマス葵ビルは、東京都渋谷区代々木二丁目に位置する賃貸オフィスビルです。1989年に竣工し、新耐震基準に準拠した構造を有しております。このビルは、8階建てで基準階の面積は約82坪となっており、中小企業からスタートアップ企業まで幅広いテナントのニーズに応える設計となっています。また、ビル内には1基のエレベーターが設置されており、テナントとその来訪者の利便性を高めています。 外観は、清潔感のある淡いグリーン色で、周囲の環境と調和しつつも一定の存在感を放っています。セキュリティ面では、機械警備システムが導入されており、テナントの安全とセキュリティを確保しております。また、ビル内に駐車場が設けられているため、車でのアクセスを必要とするテナントにとっても非常に魅力的なポイントです。 立地に関しても、イマス葵ビルは非常に便利な位置にあります。最寄り駅はJR新宿駅で、南口から徒歩約3分という好立地に位置しています。南新宿駅や代々木駅も利用可能であり、複数の路線を利用できるため、アクセスの良さはテナントにとって大きなメリットです。周辺には、コンビニ、飲食店が点在しており、従業員の日々の生活利便性も高いエリアです。 ビルの1階にはローソンが入居しており、来訪者の目印となるだけでなく、テナントの方々にとっても日々の利便性を向上させています。窓面が多く、自然光がたっぷりと入る明るい室内は、快適なオフィス環境を提供しています。 土日もエントランスが開放されており、様々なビジネスシーンに対応可能です。各種スクールや教室、ショールームの運営にも適しており、多様なビジネスニーズに柔軟に対応できる環境が整っています。 イマス葵ビルは、その立地、設備、セキュリティなど、ビジネスを行う上で重要な要素を総合的に兼ね備えた賃貸オフィスビルです。新宿という東京の中心地に近く、便利ながらも落ち着いた環境でビジネスを展開したい企業にとって、最適な選択肢となるでしょう。
募集終了のテナント区画
| 階数 | 坪数 | 賃料 + 共益費 | 敷金/礼金敷金 礼金 | 検討 |
|---|---|---|---|---|
| 1階 | 43.82坪 (144.86m²) | 募集終了 | - | - |
| 3階 | 82.96坪 (274.25m²) | 募集終了 | - | - |
| 4階 | 82.96坪 (274.25m²) | 募集終了 | - | - |
| 5階 | 82.96坪 (274.25m²) | 募集終了 | - | - |
| 6階 | 82.96坪 (274.25m²) | 募集終了 | - | - |
| 7階 | 82.96坪 (274.25m²) | 募集終了 | - | - |
| 8階 | 31.32坪 (103.54m²) | 募集終了 | - | - |
| 8階 | 47.35坪 (156.52m²) | 募集終了 | - | - |
WEB非公開物件がございます
オーナー様ご希望によるWEB非公開の物件もございます。先ずは条件などお知らせ頂けましたら、非公開物件含めピッタリのオフィスをご提案させて頂きます。具体的な物件がお決まりでない場合でも問題ございません。無理なお勧めはしておりませんので、お気軽にお問い合わせください。
ご来店も歓迎です
オフィス移転は社内・社外ともに非公開に行われることが殆どです。そのためアットオフィスでは、基本的に訪問によるコンサルティングを行っておりますが、ご来店の相談も歓迎です。
※お一人おひとりに親身にご対応させて頂きたい為、要予約とさせて頂いております。ご来店の際は先ずは上記よりご予約下さい。
読込中...
近くのエリアで探してみる
代々木/初台/幡ヶ谷エリアでイマス葵ビルに似た条件の物件
読込中...