※このサイトに記載がある賃貸条件は、敷金・保証金などの預かり金を除き、別途消費税がかかります。
お電話でもお気軽にお問い合わせください
物件情報
設備詳細
| 空調 | - |
|---|---|
| トイレ | - |
| 床仕様 | - |
| エレベータ | 1 基 |
| 駐車場設備 | - |
| その他 | 機械警備 / 24時間利用可 / 光ファイバー / オートロック |
アクセスマップ
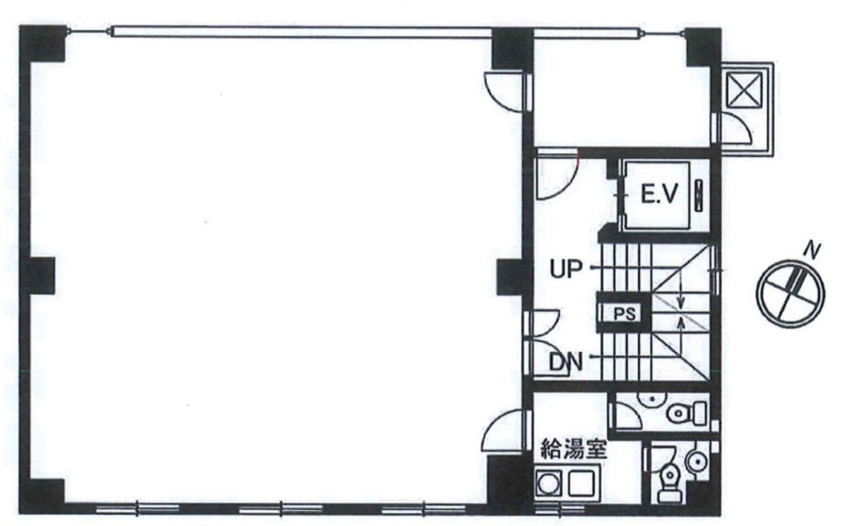
坂上ビルは都心のビジネスエリア、渋谷区渋谷3丁目に位置する賃貸オフィスビルです。この物件は、渋谷駅から徒歩わずか1分という非常に便利な立地にあり、周辺には飲食店やコンビニ、銀行ATMなどが充実しており、ビジネスに必要なあらゆるサービスへのアクセスが容易です。1978年に竣工したこのビルは、鉄骨鉄筋コンクリート造で耐震性に優れ、長期間の利用にも耐える安心の構造を備えています。 坂上ビルは、基準となるオフィスフロアが約38坪で、主に長方形の執務スペースを提供しています。この清潔で使い勝手の良い空間は、無駄な柱がなく効率的なオフィスレイアウトが可能です。また、個別空調システムにより、各テナントは自由に温度管理ができ、快適なオフィス環境を保つことができます。さらに、OAフロアを採用しており、床下にケーブルを配線できるため、オフィス内は常にすっきりとした印象を維持します。高速通信をサポートする光ファイバーも完備されており、ビジネスの効率化に貢献します。 セキュリティ面では、オートロック付きの入口や機械警備システムを装備しており、24時間体制で安心して利用できます。男女別のトイレ設備も完備されており、機能性と利便性を兼ね備えています。 渋谷駅新南口から至近距離に位置するこのビルは、ビジネスの要となる立地でありながら、明治通り近くの落ち着いた環境も魅力の一つです。周辺環境がビジネスに必要なサポートを提供し、ビジネスチャンスを広げます。 坂上ビルは、立地、設備、セキュリティ、そして周辺環境と、ビジネスに最適な条件を全て備えた賃貸オフィス物件です。このビルが提供する快適なオフィス環境と利便性の高い立地は、あなたのビジネスをさらに前進させるでしょう。
募集終了のテナント区画
| 階数 | 坪数 | 賃料 + 共益費 | 敷金/礼金敷金 礼金 | 検討 |
|---|---|---|---|---|
| 3階 | 38坪 (125.66m²) | 募集終了 | - | - |
| 4階 | 38坪 (125.66m²) | 募集終了 | - | - |
| 6階 | 38坪 (125.66m²) | 募集終了 | - | - |
WEB非公開物件がございます
オーナー様ご希望によるWEB非公開の物件もございます。先ずは条件などお知らせ頂けましたら、非公開物件含めピッタリのオフィスをご提案させて頂きます。具体的な物件がお決まりでない場合でも問題ございません。無理なお勧めはしておりませんので、お気軽にお問い合わせください。
ご来店も歓迎です
オフィス移転は社内・社外ともに非公開に行われることが殆どです。そのためアットオフィスでは、基本的に訪問によるコンサルティングを行っておりますが、ご来店の相談も歓迎です。
※お一人おひとりに親身にご対応させて頂きたい為、要予約とさせて頂いております。ご来店の際は先ずは上記よりご予約下さい。
読込中...
渋谷エリアで坂上ビルに似た条件の物件
読込中...