※このサイトに記載がある賃貸条件は、敷金・保証金などの預かり金を除き、別途消費税がかかります。
お電話でもお気軽にお問い合わせください
物件情報
設備詳細
| 空調 | - |
|---|---|
| トイレ | 男女別トイレ |
| 床仕様 | - |
| エレベータ | 2 基 / エレベーター有 |
| 駐車場設備 | 機械式駐車場 |
| その他 | 機械警備 / 光ファイバー / 24時間利用可 / 新耐震基準 |
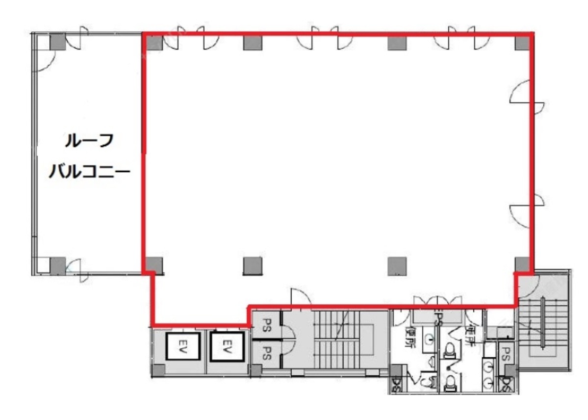
ヒューリック渋谷2丁目ビルは、渋谷区渋谷に位置する賃貸オフィス物件です。このビルは1988年に竣工し、地上7階建ての構造を持ちます。基準階坪数は約70坪で、天井高は2,450mm、床には高さ50mmのOAフロアが設置されております。また、空調は個別空調システムを採用しており、フロア専用の男女別トイレも完備しています。ビル内には2基のエレベーターがあり、また機械式駐車場も併設されています。 立地に関しては、渋谷駅から徒歩10分、表参道駅からは徒歩約12分と、複数の駅からアクセスが可能で、交通の利便性が高いです。青山通りから一本入った位置にあるため、大通りの賑わいから少し離れており、落ち着いた環境で業務に集中できるでしょう。周辺には飲食店が豊富にあり、ランチタイムやビジネスアフターの食事に困ることはありません。また、青山学院大学が至近にあるため、学生の活気も感じられるエリアです。 ビルは全面リニューアル済みで、エントランスやオフィス内部はモダンでクリーンなデザインが施されています。広々としたエントランスは明るく、来客を迎えるにも好印象を与えるでしょう。オフィスフロアは長方形の無柱空間であり、レイアウトの自由度が高く、効率的なオフィス環境を実現できます。 ヒューリック渋谷2丁目ビルは、渋谷と表参道の中間に位置し、どちらのエリアの利便性も享受できる点が魅力です。ビジネスの拠点としての利点に加え、静かで落ち着いた環境で作業に集中できる点、また周辺環境の充実も大きなメリットです。オフィスとしての機能性はもちろんのこと、ビルの立地や周辺環境も含め、ビジネスの成功をサポートする環境がここにはあります。
募集終了のテナント区画
| 階数 | 坪数 | 賃料 + 共益費 | 敷金/礼金敷金 礼金 | 検討 |
|---|---|---|---|---|
| 5階 | 79.2坪 (261.82m²) | 募集終了 | - | - |
| 6階 | 79.2坪 (261.82m²) | 募集終了 | - | - |
| 7階 | 62.19坪 (205.59m²) | 募集終了 | - | - |
WEB非公開物件がございます
オーナー様ご希望によるWEB非公開の物件もございます。先ずは条件などお知らせ頂けましたら、非公開物件含めピッタリのオフィスをご提案させて頂きます。具体的な物件がお決まりでない場合でも問題ございません。無理なお勧めはしておりませんので、お気軽にお問い合わせください。
ご来店も歓迎です
オフィス移転は社内・社外ともに非公開に行われることが殆どです。そのためアットオフィスでは、基本的に訪問によるコンサルティングを行っておりますが、ご来店の相談も歓迎です。
※お一人おひとりに親身にご対応させて頂きたい為、要予約とさせて頂いております。ご来店の際は先ずは上記よりご予約下さい。
読込中...
渋谷エリアでヒューリック渋谷2丁目ビルに似た条件の物件
読込中...