※このサイトに記載がある賃貸条件は、敷金・保証金などの預かり金を除き、別途消費税がかかります。
お電話でもお気軽にお問い合わせください
物件情報
設備詳細
| 空調 | - |
|---|---|
| トイレ | - |
| 床仕様 | - |
| エレベータ | 2 基 |
| 駐車場設備 | - |
| その他 | 新耐震基準 |
アクセスマップ
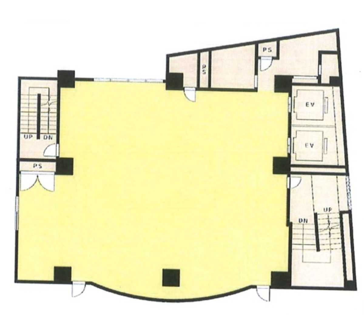
塚田ビルは、東京都渋谷区宇田川町に位置する、1993年竣工のモダンなオフィスビルです。渋谷駅からわずか徒歩5分の距離にあり、東急百貨店の向かいという抜群の立地条件を誇ります。このビルは、3駅以上のアクセス可能性を持っており、ビジネスのしやすさと利便性を兼ね備えています。ここでは、塚田ビルの特徴や設備、立地などについて、専門性の高い視点から解説してまいります。 まず、建築について触れると、塚田ビルは耐震性に優れたオフィスビルであり、安心して業務を行うことができます。ビルの外観は、黄緑と白のタイルで覆われ、スタイリッシュかつ目を引くデザインが特徴です。エレベーターは2機設置されており、スムーズな移動をサポートします。 ビル内部のオフィススペースについては、天井高2,800mmの広々とした空間が確保されており、明るく開放感のある作業環境を提供します。オフィスの間取りは長方形で、レイアウトの自由度が高いことも魅力の一つです。男女別トイレが設置されている点も、働く従業員にとって快適な環境を構築するために重要な要素です。 立地条件に関しては、渋谷駅徒歩5分という利便性の高さが特筆すべき点です。さらに、周辺には多数の飲食店や商業施設が立ち並び、ビジネスの拠点としてだけでなく、従業員の生活利便性も高く評価される立地です。1階には有名なパン屋「VIRON」をはじめとするテナントが入居しており、ランチタイムや仕事帰りの買い物にも便利です。 オフィスビルとしてのセキュリティ面も万全で、入居企業は安心して業務に専念できる環境が整っています。塚田ビルは、そのロケーション、設備、デザイン性を兼ね備えた賃貸オフィスビルとして、多くの企業にとって魅力的な選択肢となるでしょう。ビジネスの拠点として最適な環境を求める企業に、塚田ビルは最良の解決策を提供します。
募集終了のテナント区画
| 階数 | 坪数 | 賃料 + 共益費 | 敷金/礼金敷金 礼金 | 検討 |
|---|---|---|---|---|
| B1階 | 42.88坪 (141.75m²) | 募集終了 | - | - |
| 1階 | 36.47坪 (120.56m²) | 募集終了 | - | - |
| 3階 | 51坪 (168.6m²) | 募集終了 | - | - |
| 3階 | 12.22坪 (40.4m²) | 募集終了 | - | - |
| 4階 | 51.47坪 (170.14m²) | 募集終了 | - | - |
| 5階 | 51.5坪 (170.25m²) | 募集終了 | - | - |
| 6階 | 51.47坪 (170.14m²) | 募集終了 | - | - |
| 7階 | 51.5坪 (170.25m²) | 募集終了 | - | - |
| 8階 | 53.2坪 (175.87m²) | 募集終了 | - | - |
WEB非公開物件がございます
オーナー様ご希望によるWEB非公開の物件もございます。先ずは条件などお知らせ頂けましたら、非公開物件含めピッタリのオフィスをご提案させて頂きます。具体的な物件がお決まりでない場合でも問題ございません。無理なお勧めはしておりませんので、お気軽にお問い合わせください。
ご来店も歓迎です
オフィス移転は社内・社外ともに非公開に行われることが殆どです。そのためアットオフィスでは、基本的に訪問によるコンサルティングを行っておりますが、ご来店の相談も歓迎です。
※お一人おひとりに親身にご対応させて頂きたい為、要予約とさせて頂いております。ご来店の際は先ずは上記よりご予約下さい。
読込中...
渋谷エリアで塚田ビルに似た条件の物件
読込中...