※このサイトに記載がある賃貸条件は、敷金・保証金などの預かり金を除き、別途消費税がかかります。
お電話でもお気軽にお問い合わせください
物件情報
設備詳細
| 空調 | - |
|---|---|
| トイレ | - |
| 床仕様 | - |
| エレベータ | 1 基 |
| 駐車場設備 | - |
| その他 | 新耐震基準 |
アクセスマップ
コクサイA館ビルは、東京都渋谷区宇田川町に位置する、ビジネスの中核を担うオフィスビルです。このビルは、その立地と設備、そして独自の魅力により、企業の皆様にとって最適なビジネス環境を提供しています。 立地に関しては、コクサイA館ビルは渋谷という日本を代表するビジネスとカルチャーの中心地にあります。渋谷駅からのアクセスは非常に良好で、多方面からの交通の便が良いため、従業員だけでなく、クライアントやビジネスパートナーとのアクセスにも優れた利点を持ちます。また、周辺には多様な飲食店があり、ビジネスランチやアフター5の利用にも不便はありません。 設備面では、コクサイA館ビルはエレベーターを1機備えており、スムーズな移動を可能にしています。また、ビルは現代的な設計がなされており、オフィス内は明るく開放的な空間が広がっています。これは、クリエイティブな思考や生産性の向上を促す環境として非常に有効です。さらに、セキュリティ面においても高いレベルを保持しており、入居企業は安心してビジネスを行うことができます。 コクサイA館ビルの独自の魅力としては、渋谷という立地の利点を最大限に活かしたビジネスの展開が可能であることを挙げることができます。渋谷は、革新的な企業やスタートアップ企業が集まる地域としても知られており、新しいビジネスチャンスを求める企業にとって最適な環境です。加えて、コクサイA館ビルはそれらの企業が求める最先端の設備と快適なオフィス環境を提供し、ビジネス成長の基盤を築くことができます。 総じて、コクサイA館ビルは、その立地の優位性、充実した設備、そしてビジネスの可能性を広げる独自の魅力により、多様なビジネスニーズに応えることができるオフィスビルです。新たなビジネスの拠点として、または企業の成長を加速させるための場として、コクサイA館ビルは最適な選択肢の一つと言えるでしょう。
募集終了のテナント区画
| 階数 | 坪数 | 賃料 + 共益費 | 敷金/礼金敷金 礼金 | 検討 |
|---|---|---|---|---|
| B2階 | 65.37坪 (216.09m²) | 募集終了 | - | - |
| B1階 | 70.69坪 (233.69m²) | 募集終了 | - | - |
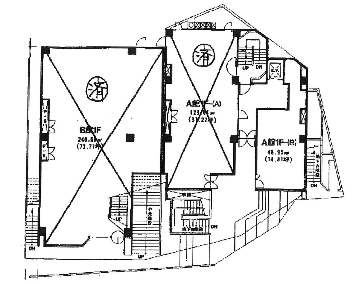
| 1階 | 14.81坪 (48.96m²) | 募集終了 | - | - |
| 1階 | 37.22坪 (123.04m²) | 募集終了 | - | - |
| 2階 | 45.65坪 (150.91m²) | 募集終了 | - | - |
| 3階 | 26.67坪 (88.16m²) | 募集終了 | - | - |
| 4階 | 35.89坪 (118.64m²) | 募集終了 | - | - |
| 5階 | 31.84坪 (105.25m²) | 募集終了 | - | - |
WEB非公開物件がございます
オーナー様ご希望によるWEB非公開の物件もございます。先ずは条件などお知らせ頂けましたら、非公開物件含めピッタリのオフィスをご提案させて頂きます。具体的な物件がお決まりでない場合でも問題ございません。無理なお勧めはしておりませんので、お気軽にお問い合わせください。
ご来店も歓迎です
オフィス移転は社内・社外ともに非公開に行われることが殆どです。そのためアットオフィスでは、基本的に訪問によるコンサルティングを行っておりますが、ご来店の相談も歓迎です。
※お一人おひとりに親身にご対応させて頂きたい為、要予約とさせて頂いております。ご来店の際は先ずは上記よりご予約下さい。
読込中...
渋谷エリアでコクサイA館に似た条件の物件
読込中...