※このサイトに記載がある賃貸条件は、敷金・保証金などの預かり金を除き、別途消費税がかかります。
お電話でもお気軽にお問い合わせください
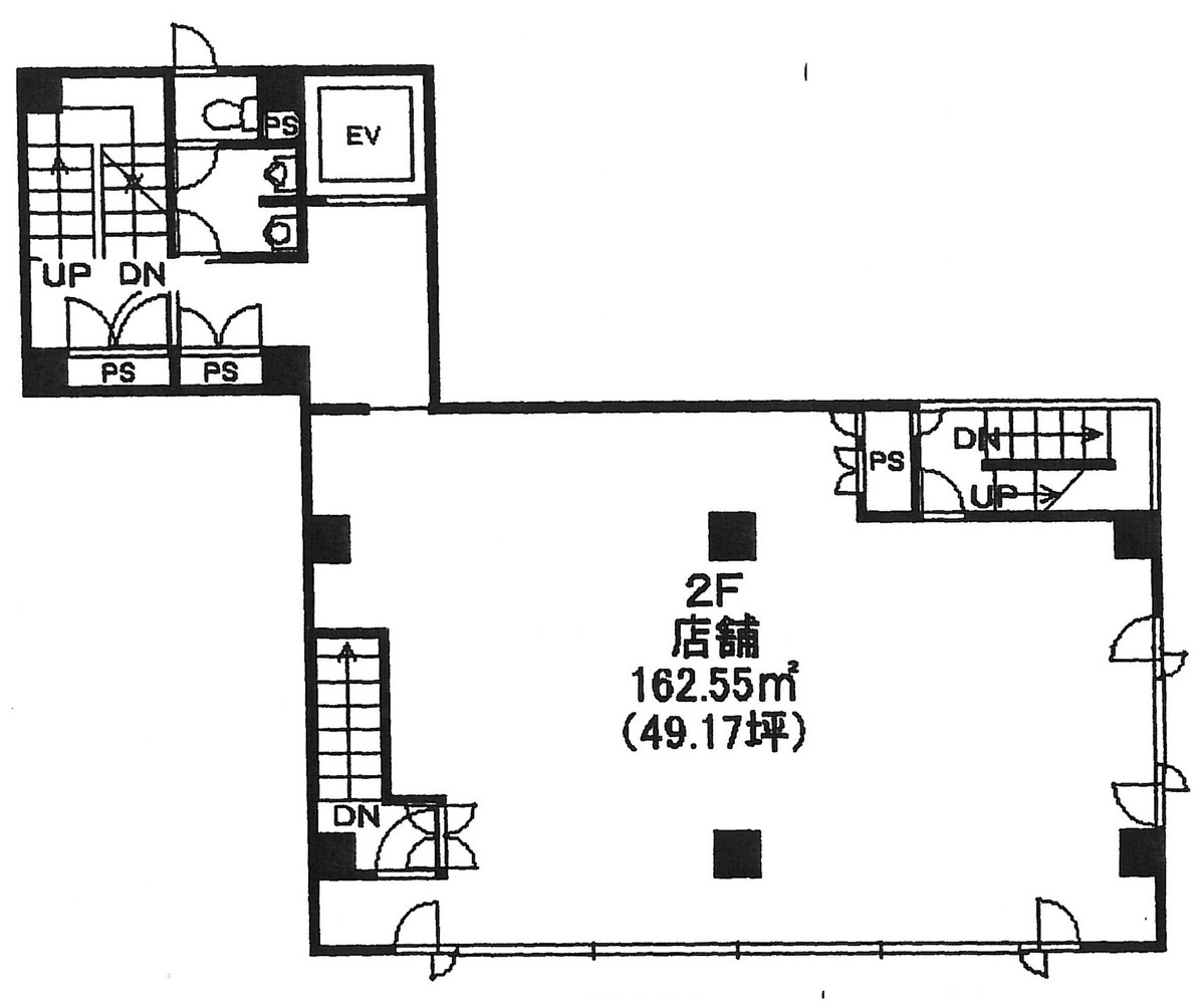
物件情報
設備詳細
| 空調 | - |
|---|---|
| トイレ | - |
| 床仕様 | - |
| エレベータ | 1 基 |
| 駐車場設備 | - |
| その他 | 機械警備 / 新耐震基準 |
アクセスマップ
渋谷道玄坂ビルは、都心のビジネスシーンをリードするモダンなオフィスビルです。1988年に竣工されたこの6階建ての建物は、渋谷区道玄坂に位置し、渋谷駅からわずか徒歩5分という抜群のアクセスを誇ります。今日のビジネス環境では、立地の良さが成功の鍵を握ることが多く、渋谷道玄坂ビルはまさにその条件を満たす物件です。 ビルの設備には特に注目に値します。全てのオフィススペースに個別空調が完備されており、四季を通じて快適な職場環境を提供します。また、床はOAフロアで、配線やケーブル管理が容易になっており、現代のオフィスに必要不可欠な高速インターネット接続にも対応しています。加えて、室外の男女別トイレは清潔感が保たれ、日々のオフィスライフを快適に過ごすための細やかな配慮が感じられます。 渋谷道玄坂ビルのもう一つの強みは、その立地にあります。JR山手線、東京メトロ銀座線、東京メトロ半蔵門線など、複数の路線が利用可能で、ビジネスの中心地へのアクセスが非常に便利です。また、周辺には飲食店や商業施設が豊富にあり、ビジネスランチや仕事終わりのショッピングにも困りません。 ビルのセキュリティも充実しており、機械警備システムにより24時間体制で安全が守られています。これにより、入居企業は安心してビジネスに専念できます。 内装についても、窓面が大きく設計された室内は、自然光が豊富に入り、明るく開放感のあるオフィス空間を提供します。また、長方形に近い間取りは、効率的なオフィスレイアウトを可能にし、柔軟なスペース利用を実現します。 渋谷道玄坂ビルは、最新のオフィス環境を求める企業にとって、理想的な選択肢と言えるでしょう。立地の利便性、先進的な設備、そしてビジネスの成功に貢献する環境が、ここには揃っています。ビジネスの新たな拠点として、ぜひ渋谷道玄坂ビルをご検討ください。
募集終了のテナント区画
| 階数 | 坪数 | 賃料 + 共益費 | 敷金/礼金敷金 礼金 | 検討 |
|---|---|---|---|---|
| 2階 | 49.17坪 (162.55m²) | 募集終了 | - | - |
| 3階 | 51坪 (168.6m²) | 募集終了 | - | - |
| 4階 | 51.24坪 (169.39m²) | 募集終了 | - | - |
| 5階 | 39.98坪 (132.17m²) | 募集終了 | - | - |
| 6階 | 22.5坪 (74.38m²) | 募集終了 | - | - |
| 6階 | 15.96坪 (52.76m²) | 募集終了 | - | - |
WEB非公開物件がございます
オーナー様ご希望によるWEB非公開の物件もございます。先ずは条件などお知らせ頂けましたら、非公開物件含めピッタリのオフィスをご提案させて頂きます。具体的な物件がお決まりでない場合でも問題ございません。無理なお勧めはしておりませんので、お気軽にお問い合わせください。
ご来店も歓迎です
オフィス移転は社内・社外ともに非公開に行われることが殆どです。そのためアットオフィスでは、基本的に訪問によるコンサルティングを行っておりますが、ご来店の相談も歓迎です。
※お一人おひとりに親身にご対応させて頂きたい為、要予約とさせて頂いております。ご来店の際は先ずは上記よりご予約下さい。
読込中...
渋谷エリアで渋谷道玄坂ビルに似た条件の物件
読込中...