※このサイトに記載がある賃貸条件は、敷金・保証金などの預かり金を除き、別途消費税がかかります。
お電話でもお気軽にお問い合わせください
物件情報
設備詳細
| 空調 | - |
|---|---|
| トイレ | - |
| 床仕様 | - |
| エレベータ | 2 基 |
| 駐車場設備 | - |
| その他 | 新耐震基準 / 駅直結 / 24時間利用可 |
渋谷区道玄坂2丁目に位置する「渋東シネタワービル」は、その最先端の設備と卓越した立地条件で、ビジネスの世界において群を抜いています。このビルは、渋谷という東京の中心部に位置しながら、最高の眺望を誇り、日々の業務に新鮮な刺激を与えること間違いありません。今日、私たちはこの優れた賃貸オフィスビルの魅力を皆様にご紹介します。 まず注目すべきは、その立地の利便性です。渋谷区はビジネスのみならず、エンターテインメント、ファッション、文化の中心地としても知られています。渋東シネタワービルは、多くの企業が求める「アクセスの良さ」と「人の流れ」の二つを兼ね備えています。渋谷駅からのアクセスは抜群で、徒歩圏内には多種多様な商業施設が揃っており、ビジネスアフターも充実しています。 次に、このビルの設備の素晴らしさに焦点を当てたいと思います。渋東シネタワービルは、最新のオフィスニーズに応えるために設計されました。全フロアに渡る高速インターネット環境、最先端のセキュリティシステム、そして快適な作業環境を実現するための最新の空調設備など、ビジネスを成功に導くための設備が整っています。また、2基のエレベーターはスムーズな人の流れを確保し、ビジネスの効率化に貢献します。 ビルの外観も、モダンで洗練されたデザインが特徴で、企業イメージの向上にも寄与します。ガラス張りの外壁は、光を最大限に取り入れる設計となっており、オフィス内は自然光が溢れる明るい空間です。このような環境は、従業員のモチベーションの向上にも繋がります。 最後に、このビルの眺望の素晴らしさも見逃せません。渋谷の街を一望できる位置にあるため、オフィスからの景色は単なる仕事場の風景を超え、毎日の業務に活力を与えてくれます。ビジネスの成功には、良い環境が不可欠です。渋東シネタワービルは、そのすべてを提供します。 このように、渋東シネタワービルは、最高の立地、最先端の設備、そして素晴らしい眺望を兼ね備えた、ビジネスのための理想的な空間です。ここにオフィスを構えることは、企業のブランド価値を高め、従業員の満足度を向上させることでしょう。ビジネスの新たな拠点として、ぜひ渋東シネタワービルをご検討ください。
募集終了のテナント区画
| 階数 | 坪数 | 賃料 + 共益費 | 敷金/礼金敷金 礼金 | 検討 |
|---|---|---|---|---|
| B2階 | 25.39坪 (83.93m²) | 募集終了 | - | - |
| 1階 | 79坪 (261.15m²) | 募集終了 | - | - |
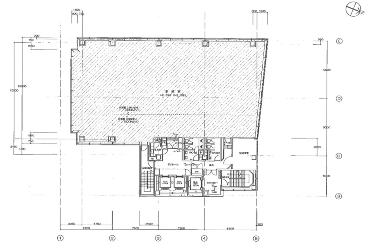
| 10階 | 143.11坪 (473.09m²) | 募集終了 | - | - |
| 11階 | 143.11坪 (473.09m²) | 募集終了 | - | - |
| 12階 | 143.11坪 (473.09m²) | 募集終了 | - | - |
| 12階 | 405.09坪 (1339.14m²) | 募集終了 | - | - |
| 13階 | 143.11坪 (473.09m²) | 募集終了 | - | - |
| 14階 | 39.35坪 (130.08m²) | 募集終了 | - | - |
WEB非公開物件がございます
オーナー様ご希望によるWEB非公開の物件もございます。先ずは条件などお知らせ頂けましたら、非公開物件含めピッタリのオフィスをご提案させて頂きます。具体的な物件がお決まりでない場合でも問題ございません。無理なお勧めはしておりませんので、お気軽にお問い合わせください。
ご来店も歓迎です
オフィス移転は社内・社外ともに非公開に行われることが殆どです。そのためアットオフィスでは、基本的に訪問によるコンサルティングを行っておりますが、ご来店の相談も歓迎です。
※お一人おひとりに親身にご対応させて頂きたい為、要予約とさせて頂いております。ご来店の際は先ずは上記よりご予約下さい。
読込中...
渋谷エリアで渋東シネタワーに似た条件の物件
読込中...