※このサイトに記載がある賃貸条件は、敷金・保証金などの預かり金を除き、別途消費税がかかります。
お電話でもお気軽にお問い合わせください
物件情報
設備詳細
| 空調 | - |
|---|---|
| トイレ | - |
| 床仕様 | - |
| エレベータ | 1 基 |
| 駐車場設備 | - |
| その他 | 機械警備 / 24時間利用可 / 光ファイバー / 新耐震基準 |
アクセスマップ
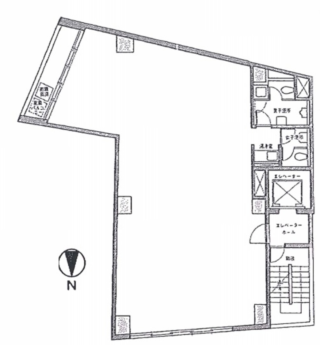
渋谷区道玄坂に位置する「道玄坂225ビル」は、ビジネスの成功を左右する立地と設備の良さで選ばれる賃貸オフィス物件です。1987年に竣工し、新耐震基準に準拠したこのビルは、安全性と快適性を兼ね備えています。渋谷駅からわずか徒歩4分というアクセスの良さに加え、周辺は東急百貨店本店といった商業施設が充実しており、ビジネスだけでなく来客の際の利便性も抜群です。 基準階面積はおよそ38坪と、中小企業からスタートアップ企業まで幅広くご利用いただけるサイズ感。独特の形状をした執務スペースは、創造的なオフィスレイアウトを可能にします。また、給湯設備や男女別トイレが室内に設置されており、個別空調システムにより快適なオフィス環境を実現しています。 さらに、このビルは松濤文化村ストリート沿いに位置し、視認性とアクセシビリティの点で非常に優れています。周辺には多様な店舗や商業ビルが立ち並び、賑わいのある環境の中でビジネスを展開できます。上階はすべてクリニックや美容室、事務所が入居しており、ビル全体としても好印象を与えることでしょう。 道玄坂225ビルは、渋谷という東京の中心地でのビジネスチャンスを最大限に活かしたい企業に最適な物件です。JR、地下鉄、私鉄併せて9路線が利用可能で、都内各地へのアクセスはもちろん、ビジネスの機会を広げるための絶好の拠点となります。清潔感のある共用部、白を基調とした明るい印象の外観、利便性の高い周辺環境と、ビルのあらゆる側面が高いスペックを誇ります。 今日のビジネス環境では、企業のイメージやスタッフの働きやすさが重要な要素となります。道玄坂225ビルは、その両方を充足させるための選択肢として、ぜひご検討ください。渋谷区道玄坂2丁目、渋谷駅徒歩4分の好立地で、ビジネスの可能性を広げましょう。
募集終了のテナント区画
| 階数 | 坪数 | 賃料 + 共益費 | 敷金/礼金敷金 礼金 | 検討 |
|---|---|---|---|---|
| B1階 | 33.33坪 (110.18m²) | 募集終了 | - | - |
| 1-2階 | 65.16坪 (215.42m²) | 募集終了 | - | - |
| 1階 | 29.59坪 (97.85m²) | 募集終了 | - | - |
| 2階 | 34.33坪 (113.51m²) | 募集終了 | - | - |
| 3階 | 38.09坪 (125.92m²) | 募集終了 | - | - |
| 4階 | 38.09坪 (125.93m²) | 募集終了 | - | - |
| 5階 | 38.09坪 (125.92m²) | 募集終了 | - | - |
| 5階 | 38.09坪 (125.91m²) | 募集終了 | - | - |
| 7階 | 38.09坪 (125.93m²) | 募集終了 | - | - |
| 8階 | 27.04坪 (89.38m²) | 募集終了 | - | - |
WEB非公開物件がございます
オーナー様ご希望によるWEB非公開の物件もございます。先ずは条件などお知らせ頂けましたら、非公開物件含めピッタリのオフィスをご提案させて頂きます。具体的な物件がお決まりでない場合でも問題ございません。無理なお勧めはしておりませんので、お気軽にお問い合わせください。
ご来店も歓迎です
オフィス移転は社内・社外ともに非公開に行われることが殆どです。そのためアットオフィスでは、基本的に訪問によるコンサルティングを行っておりますが、ご来店の相談も歓迎です。
※お一人おひとりに親身にご対応させて頂きたい為、要予約とさせて頂いております。ご来店の際は先ずは上記よりご予約下さい。
読込中...
渋谷エリアで道玄坂225ビルに似た条件の物件
読込中...