※このサイトに記載がある賃貸条件は、敷金・保証金などの預かり金を除き、別途消費税がかかります。
お電話でもお気軽にお問い合わせください
物件情報
設備詳細
| 空調 | - |
|---|---|
| トイレ | - |
| 床仕様 | - |
| エレベータ | 1 基 |
| 駐車場設備 | - |
| その他 | - |
アクセスマップ
満留賀ビルは、千代田区内神田3丁目、東京都中心部の経済と文化が交差する地に位置している賃貸オフィスビルです。本ビルは、1975年に竣工し、地上7階建ての構造を持ち、現代ビジネスの多様なニーズに対応するための設備とサービスを提供しています。 ビルの基準階は約25坪の広さを持ち、長方形の間取りはレイアウトの自由度が高く、テナントの事業内容や働き方に応じて効率的にスペースを使用することが可能です。また、全フロアに個別空調システムを完備し、テナントは24時間365日、快適なオフィス環境の中で業務を行うことができます。 満留賀ビルの位置する内神田エリアは、オフィスビルが密集するビジネスの中心地でありながら、飲食店やコンビニエンスストアなどの生活利便施設も豊富に揃っています。最寄り駅である神田駅からは徒歩2分というアクセスの良さも、ビジネスにおいて大きな利点です。さらに、小川町駅や淡路町駅も徒歩圏内にあり、都内各地への移動もスムーズに行えます。 ビル内のセキュリティ面においては、防犯カメラの設置により、テナント並びに来客の安全を確保しています。また、1基のエレベーターが設けられており、スムーズな移動をサポートします。土日祝日も利用可能なため、フレキシブルな働き方をサポートし、ビジネスの効率化に貢献します。 満留賀ビルは、その立地の良さ、効率的な空間利用、充実した設備とサービスにより、テナント企業が成長し、繁栄するための理想的な環境を提供します。このビルは、事業の拠点として、また、新たなビジネスチャンスを求める企業にとって、最適な選択肢の一つであることでしょう。
募集終了のテナント区画
| 階数 | 坪数 | 賃料 + 共益費 | 敷金/礼金敷金 礼金 | 検討 |
|---|---|---|---|---|
| 1階 | 25坪 (82.64m²) | 募集終了 | - | - |
| 2階 | 25坪 (82.64m²) | 募集終了 | - | - |
| 2階 | 19.76坪 (65.32m²) | 募集終了 | - | - |
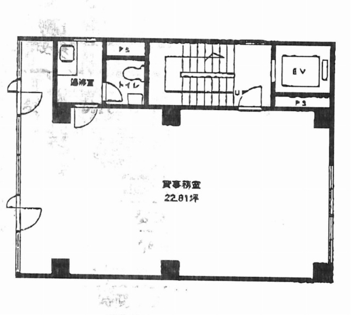
| 3階 | 22.81坪 (75.4m²) | 募集終了 | - | - |
| 4階 | 22.81坪 (75.4m²) | 募集終了 | - | - |
| 5階 | 22.81坪 (75.4m²) | 募集終了 | - | - |
| 6階 | 25坪 (82.64m²) | 募集終了 | - | - |
| 7階 | 25坪 (82.64m²) | 募集終了 | - | - |
WEB非公開物件がございます
オーナー様ご希望によるWEB非公開の物件もございます。先ずは条件などお知らせ頂けましたら、非公開物件含めピッタリのオフィスをご提案させて頂きます。具体的な物件がお決まりでない場合でも問題ございません。無理なお勧めはしておりませんので、お気軽にお問い合わせください。
ご来店も歓迎です
オフィス移転は社内・社外ともに非公開に行われることが殆どです。そのためアットオフィスでは、基本的に訪問によるコンサルティングを行っておりますが、ご来店の相談も歓迎です。
※お一人おひとりに親身にご対応させて頂きたい為、要予約とさせて頂いております。ご来店の際は先ずは上記よりご予約下さい。
読込中...
神田/秋葉原エリアで満留賀ビルに似た条件の物件
読込中...