※このサイトに記載がある賃貸条件は、敷金・保証金などの預かり金を除き、別途消費税がかかります。
お電話でもお気軽にお問い合わせください
物件情報
設備詳細
| 空調 | 個別空調 |
|---|---|
| トイレ | 男女別トイレ |
| 床仕様 | - |
| エレベータ | 1 基 / エレベーター有 |
| 駐車場設備 | - |
| その他 | 大型ビル / 光ファイバー / 機械警備 |
アクセスマップ
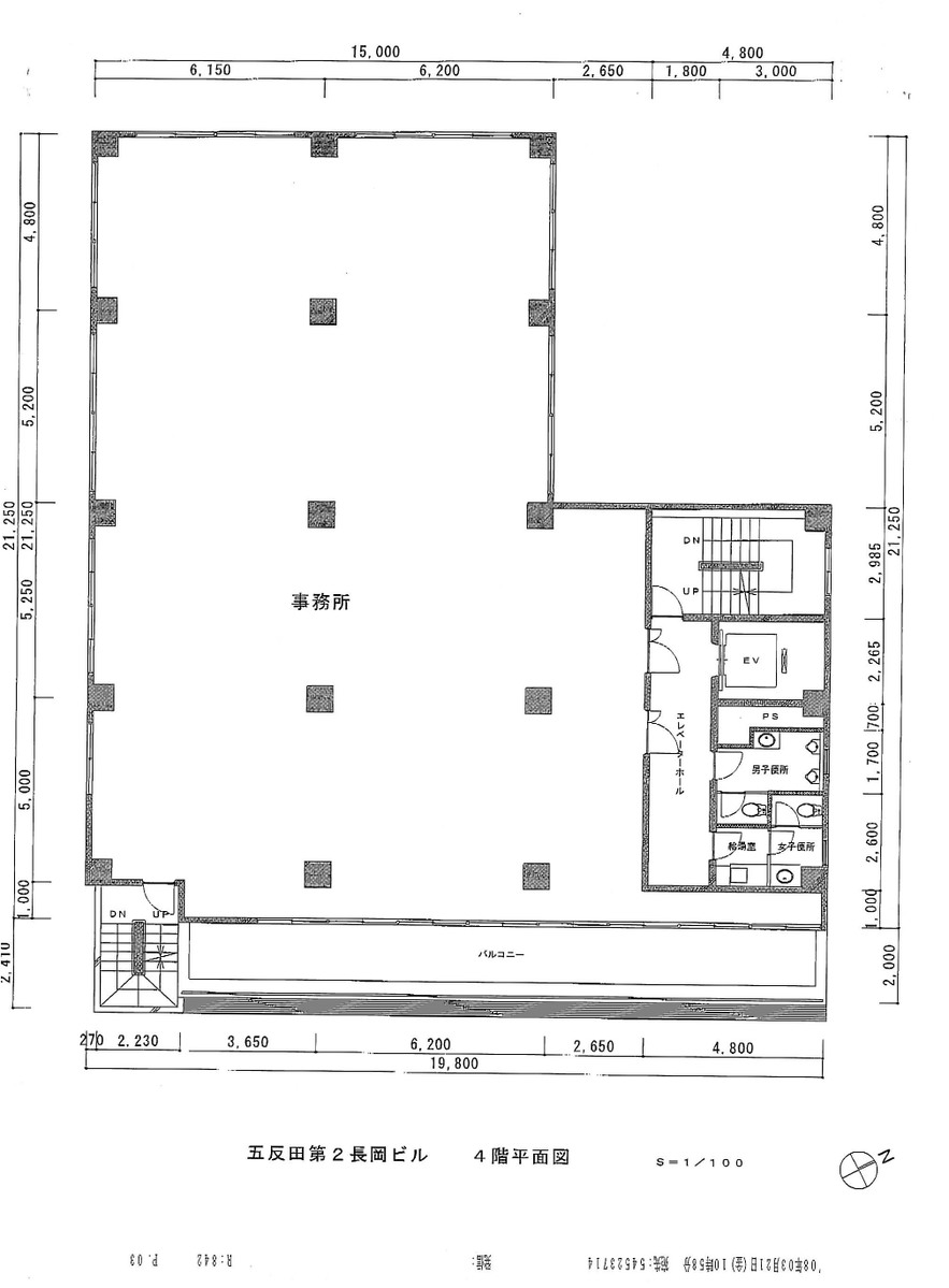
五反田第2noteビル(品川区西五反田)は、ビジネスの可能性を広げる理想的なオフィススペースです。1986年に竣工し、新耐震基準を満たしたこのオフィスビルは、安心して長期間ご利用いただける耐久性と安全性を兼ね備えています。さらに全面リニューアルを経て、現代的でスタイリッシュなオフィス環境を提供しております。 使い勝手の良い長方形の間取りが特徴で、基準階面積は123坪あり、レイアウトの自由度が高いです。柱が多い構造ですが、これはオフィスデザインの際に個性的な空間作りを可能にし、創造性を刺激する素敵なチャレンジとなるでしょう。 立地においても、大崎広小路駅徒歩7分、五反田駅徒歩8分というアクセスの良さは、ビジネスの機動性を高めます。3駅以上利用可能で、都心へのアクセスも抜群です。また、近隣にはTOCビルがあり、日々の買い物や飲食にも便利な環境です。 内装には、エレベーターホール周りに木目調の石壁を採用し、エントランスにはえんじ色を配することで、高級感と落ち着きのある雰囲気を演出。ビジネスパートナーやクライアントを迎える際の信頼感を高めることができます。また、機械警備が完備されているため、セキュリティ面でも安心してお使いいただけます。 OAフロア完備で、インターネット環境も整っており、現代のビジネスニーズにしっかりと応える設備が揃っています。共用部にはトイレや給湯スペースがあり、実効面積を有効に活用できる構造となっております。 五反田第2noteビルでは、落ち着いた外観と先進的な内装が融合し、ビジネスの成長をサポートする理想的な環境を提供しています。ビジネスとしての利点だけでなく、働く人々のクリエイティビティと効率を高める空間がここにあります。立地、設備、安全性を兼ね備えた五反田第2noteビルで、新たなビジネスの舞台を広げましょう。
募集終了のテナント区画
| 階数 | 坪数 | 賃料 + 共益費 | 敷金/礼金敷金 礼金 | 検討 |
|---|---|---|---|---|
| 1階 | 104坪 (343.8m²) | 募集終了 | - | - |
| 2階 | 110.38坪 (364.89m²) | 募集終了 | - | - |
| 3階 | 110.38坪 (364.92m²) | 募集終了 | - | - |
| 4階 | 110.5坪 (365.29m²) | 募集終了 | - | - |
| 5階 | 98.5坪 (325.61m²) | 募集終了 | - | - |
WEB非公開物件がございます
オーナー様ご希望によるWEB非公開の物件もございます。先ずは条件などお知らせ頂けましたら、非公開物件含めピッタリのオフィスをご提案させて頂きます。具体的な物件がお決まりでない場合でも問題ございません。無理なお勧めはしておりませんので、お気軽にお問い合わせください。
ご来店も歓迎です
オフィス移転は社内・社外ともに非公開に行われることが殆どです。そのためアットオフィスでは、基本的に訪問によるコンサルティングを行っておりますが、ご来店の相談も歓迎です。
※お一人おひとりに親身にご対応させて頂きたい為、要予約とさせて頂いております。ご来店の際は先ずは上記よりご予約下さい。
読込中...
五反田エリアで五反田第2noteビルに似た条件の物件
読込中...