※このサイトに記載がある賃貸条件は、敷金・保証金などの預かり金を除き、別途消費税がかかります。
お電話でもお気軽にお問い合わせください
物件情報
設備詳細
| 空調 | - |
|---|---|
| トイレ | - |
| 床仕様 | - |
| エレベータ | 1 基 |
| 駐車場設備 | - |
| その他 | 24時間利用可 / 新耐震基準 |
大森ビルへようこそ!1984年に誕生したこの耐震性に優れたオフィスビルは、ビジネスの中心地、内神田1丁目(千代田区)に位置しています。小川町駅からわずか徒歩5分という駅近の立地は、日々忙しく動くビジネスパーソンにとって大きな利点です。今回は、大森ビルの魅力とビジネスにおける利点を紹介します。 まず、立地についてです。内神田1丁目は、東京のビジネスエリアの中心に位置し、多くの企業が集まる活気あふれる地域です。このエリアにオフィスを構えることで、あなたのビジネスも周囲のエネルギーに触れ、さらに発展することでしょう。また、小川町駅からのアクセスの良さは、従業員だけでなく、クライアントの訪問にも便利であることを意味します。 次に、ビルの特徴に焦点を当ててみましょう。大森ビルは、1984年に竣工された耐震性に優れたオフィスビルです。安全性を重視する企業にとって、この点は非常に重要です。また、ビル内にはエレベーターが1機設置されており、スムーズな移動をサポートします。ビルの設備や環境は、従業員の仕事の効率化はもちろん、快適に働ける空間を提供します。 大森ビルにオフィスを構えることの利点は、立地と設備だけに留まりません。内神田1丁目の地域性を活かし、多様なビジネスチャンスとの出会いが期待できます。また、駅近でアクセスが良いことで、従業員の通勤の利便性を高め、仕事とプライベートのバランスを保ちやすくします。 大森ビルは、これからも多くの企業にとって魅力的な選択肢であり続けるでしょう。安全性、利便性、そして立地の良さを兼ね備えたこのビルで、あなたのビジネスを次のレベルへと押し上げてみませんか?大森ビルで新たなビジネスの歴史を刻む準備はできています。
募集終了のテナント区画
| 階数 | 坪数 | 賃料 + 共益費 | 敷金/礼金敷金 礼金 | 検討 |
|---|---|---|---|---|
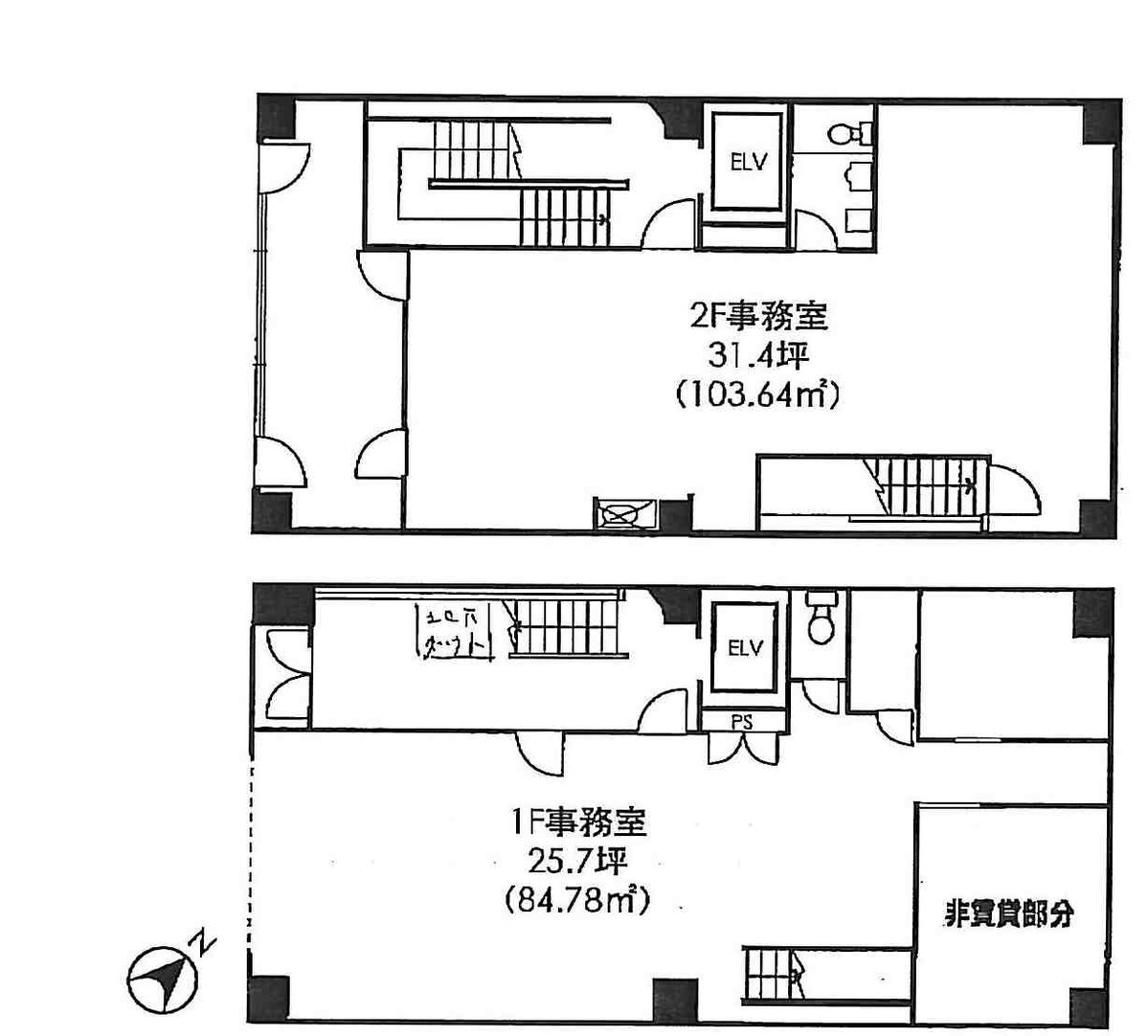
| 1階 | 29.78坪 (98.44m²) | 募集終了 | - | - |
| 2階 | 40.86坪 (135.1m²) | 募集終了 | - | - |
WEB非公開物件がございます
オーナー様ご希望によるWEB非公開の物件もございます。先ずは条件などお知らせ頂けましたら、非公開物件含めピッタリのオフィスをご提案させて頂きます。具体的な物件がお決まりでない場合でも問題ございません。無理なお勧めはしておりませんので、お気軽にお問い合わせください。
ご来店も歓迎です
オフィス移転は社内・社外ともに非公開に行われることが殆どです。そのためアットオフィスでは、基本的に訪問によるコンサルティングを行っておりますが、ご来店の相談も歓迎です。
※お一人おひとりに親身にご対応させて頂きたい為、要予約とさせて頂いております。ご来店の際は先ずは上記よりご予約下さい。
読込中...
神田/秋葉原エリアで大森内神田ビルに似た条件の物件
読込中...