※このサイトに記載がある賃貸条件は、敷金・保証金などの預かり金を除き、別途消費税がかかります。
お電話でもお気軽にお問い合わせください
物件情報
設備詳細
| 空調 | - |
|---|---|
| トイレ | - |
| 床仕様 | - |
| エレベータ | - |
| 駐車場設備 | - |
| その他 | SOHO/マンション |
アクセスマップ
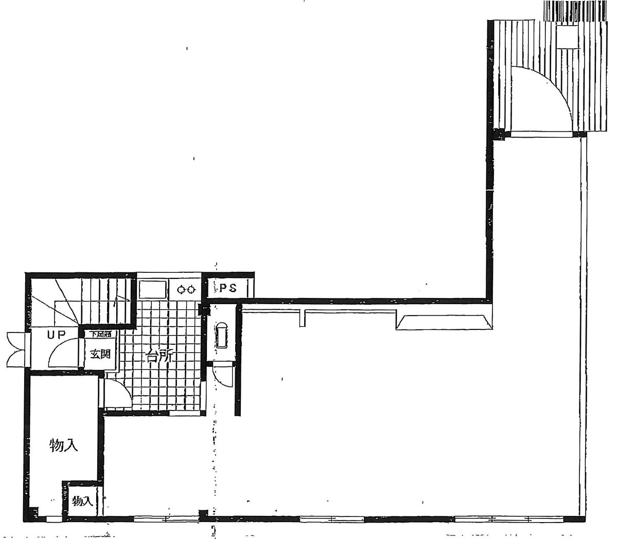
メゾンドマキは、新宿区馬場下町に位置する魅力的な賃貸オフィス物件です。この物件は、1973年に竣工された4階建ての建物で、基準階は約28坪の広さを誇ります。早稲田駅から徒歩圏内という駅前立地のため、交通アクセスが非常に便利です。執務形状はL字型となっており、レイアウトに柔軟性を持たせたい方には最適です。 物件内の移動は階段となりますが、その分エレベーターに依存しないスムーズな動線が確保されています。区画によって大きさや設備が異なるため、具体的なニーズに応じたスペース選びが可能です。詳細な仕様については、お気軽にお問い合わせください。 メゾンドマキは閑静な住宅街に位置しており、落ち着いた環境で作業に集中することができます。一方で、少し足を伸ばせば早稲田通りに出ることができ、周辺には多くの飲食店や店舗が立ち並んでいます。ランチタイムや仕事終わりの食事場所に困ることはないでしょう。 このように、メゾンドマキは静かな環境と便利な立地の両方を兼ね備えており、さまざまな業務形態に対応できるスペースとなっています。新宿区内で利便性と静けさを求める方にとって、非常に魅力的な選択肢となることでしょう。
募集終了のテナント区画
| 階数 | 坪数 | 賃料 + 共益費 | 敷金/礼金敷金 礼金 | 検討 |
|---|---|---|---|---|
| 1階 | 27.22坪 (90m²) | 募集終了 | - | - |
WEB非公開物件がございます
オーナー様ご希望によるWEB非公開の物件もございます。先ずは条件などお知らせ頂けましたら、非公開物件含めピッタリのオフィスをご提案させて頂きます。具体的な物件がお決まりでない場合でも問題ございません。無理なお勧めはしておりませんので、お気軽にお問い合わせください。
ご来店も歓迎です
オフィス移転は社内・社外ともに非公開に行われることが殆どです。そのためアットオフィスでは、基本的に訪問によるコンサルティングを行っておりますが、ご来店の相談も歓迎です。
※お一人おひとりに親身にご対応させて頂きたい為、要予約とさせて頂いております。ご来店の際は先ずは上記よりご予約下さい。
読込中...
近くのエリアで探してみる
市ヶ谷/神楽坂/飯田橋エリアでメゾンドマキに似た条件の物件
読込中...