※このサイトに記載がある賃貸条件は、敷金・保証金などの預かり金を除き、別途消費税がかかります。
お電話でもお気軽にお問い合わせください
物件情報
設備詳細
| 空調 | - |
|---|---|
| トイレ | - |
| 床仕様 | - |
| エレベータ | 1 基 |
| 駐車場設備 | - |
| その他 | 光ファイバー / 24時間利用可 / 機械警備 / 新耐震基準 |
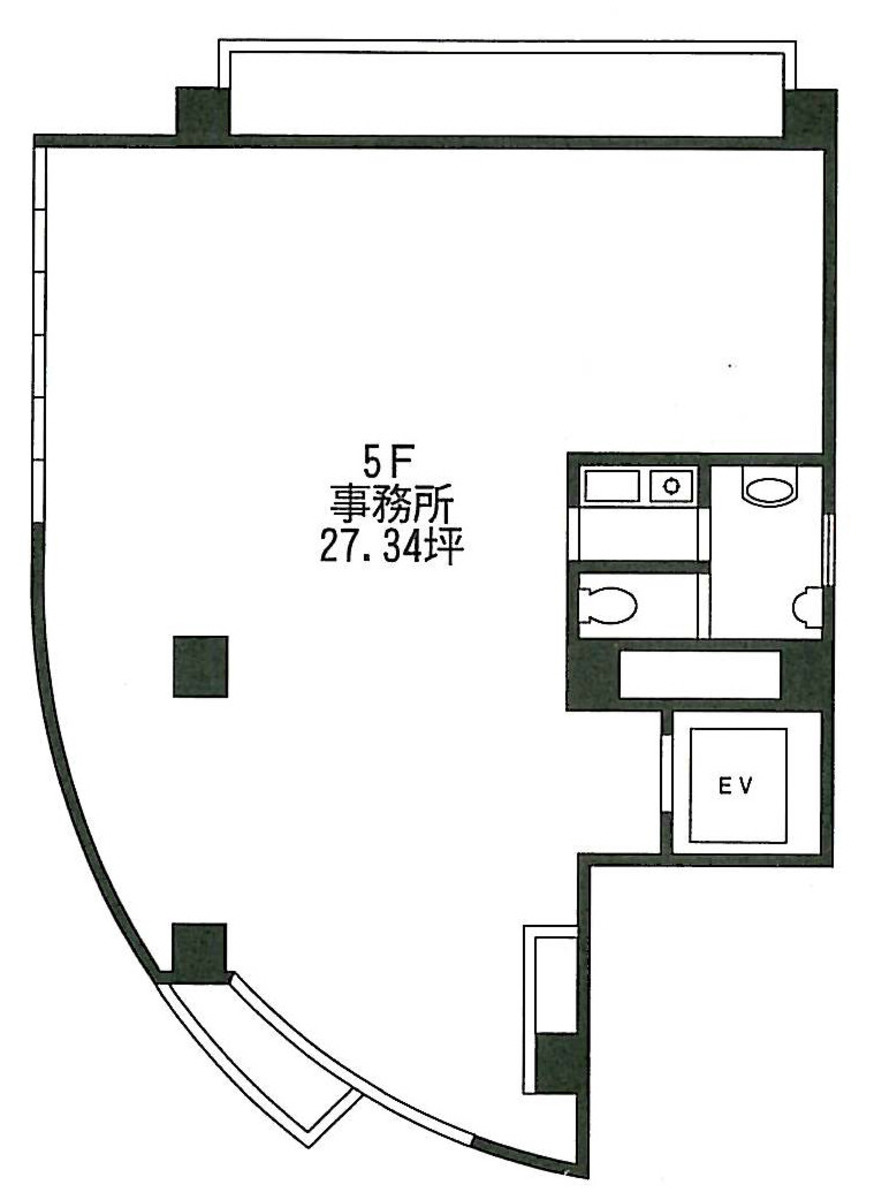
ルート南大井マスタービル第2は、1992年に竣工された、品川区南大井5-26-11に位置する賃貸オフィスビルです。本物件は、耐震性能を備えた安心の構造に加え、男女別のトイレ設備、24時間利用可能なセキュリティシステム、月極駐車場、さらには機械警備完備といった充実した設備を備えております。これらの特徴は、テナント企業の安全性と快適性を高水準で保証します。 ビルの外観は円柱形状と特徴的な窓の配置により、周囲の建物と一線を画すデザイン性を誇ります。エントランスやフロアは常に清潔に保たれ、ビジネスの場としての品格を際立たせます。また、建物は6階建てで、各階は約33坪の広さを持ち、1フロア1テナントの利用が可能です。これにより、プライバシーが保護され、企業のブランドイメージにも寄与します。 立地においては、首都高速道路に近く、千葉県や神奈川県へのアクセスの良さも特徴の一つです。また、最寄り駅である大森駅からのアクセスも良好で、徒歩圏内には立会川駅もございます。この立地は、ビジネスの機会を広げる上で非常に有利であり、従業員やクライアントの通勤、来訪にも便利です。 周辺環境は、住居とオフィスが混在する落ち着いた雰囲気で、徒歩圏内にはセブンイレブン、まいばすけっと、すき家といった生活に必要な店舗が揃っています。これにより、従業員の日常生活の利便性が向上し、働く環境としての魅力を一層高めています。 ルート南大井マスタービル第2は、その設備の充実性、デザインの美しさ、優れた立地、そして周辺環境の良さが融合した、ビジネスに最適な賃貸オフィスビルです。企業が成長し、従業員が働きやすい環境を求めるならば、是非とも本物件をご検討いただきたいと思います。
募集終了のテナント区画
| 階数 | 坪数 | 賃料 + 共益費 | 敷金/礼金敷金 礼金 | 検討 |
|---|---|---|---|---|
| 5階 | 27.37坪 (90.47m²) | 募集終了 | - | - |
WEB非公開物件がございます
オーナー様ご希望によるWEB非公開の物件もございます。先ずは条件などお知らせ頂けましたら、非公開物件含めピッタリのオフィスをご提案させて頂きます。具体的な物件がお決まりでない場合でも問題ございません。無理なお勧めはしておりませんので、お気軽にお問い合わせください。
ご来店も歓迎です
オフィス移転は社内・社外ともに非公開に行われることが殆どです。そのためアットオフィスでは、基本的に訪問によるコンサルティングを行っておりますが、ご来店の相談も歓迎です。
※お一人おひとりに親身にご対応させて頂きたい為、要予約とさせて頂いております。ご来店の際は先ずは上記よりご予約下さい。
読込中...
品川/大崎/大井エリアでルート南大井マスター第2ビルに似た条件の物件
読込中...