※このサイトに記載がある賃貸条件は、敷金・保証金などの預かり金を除き、別途消費税がかかります。
お電話でもお気軽にお問い合わせください
物件情報
設備詳細
| 空調 | - |
|---|---|
| トイレ | - |
| 床仕様 | - |
| エレベータ | - |
| 駐車場設備 | - |
| その他 | - |
とよみビルは、東京都中央区豊海町に位置する、企業のニーズに応じた機能性と利便性を兼ね備えたオフィス賃貸物件です。このビルが位置する中央区は、東京の中心部に位置し、金融、商業、文化の中心地として知られています。そのため、とよみビルは、ビジネスの拠点として理想的な立地にあります。 とよみビルの特徴は、そのアクセスの良さにあります。主要な交通網へのアクセスが容易で、都内各地への移動がスムーズに行えます。また、周辺には飲食店やコンビニエンスストア、銀行などが充実しており、ビジネスマンの日々のニーズに応える環境が整っています。 ビル内の設備についても、テナントのビジネスをサポートするための様々な施設が整っています。高速インターネット接続、セキュリティシステム、快適なワーキングスペースなど、最新のオフィス環境を提供しております。また、ビルの管理体制も整い、清潔で快適なオフィス環境を維持しています。 とよみビルの独自の魅力は、その立地と設備だけではなく、柔軟な賃貸条件にもあります。さまざまな規模の企業に対応できるよう、フロアごとの賃貸スペースのカスタマイズが可能です。これにより、スタートアップ企業から大手企業まで、幅広いビジネスのニーズに対応することができます。 ビジネスの成功には、立地、環境、アクセスの良さが不可欠です。とよみビルは、これら全てを兼ね備えた、企業が成長し続けるための理想的なオフィス空間を提供しています。ビジネスの新たな拠点として、ぜひとよみビルをお選びください。
募集終了のテナント区画
| 階数 | 坪数 | 賃料 + 共益費 | 敷金/礼金敷金 礼金 | 検討 |
|---|---|---|---|---|
| 2階 | 45.69坪 (151.04m²) | 募集終了 | - | - |
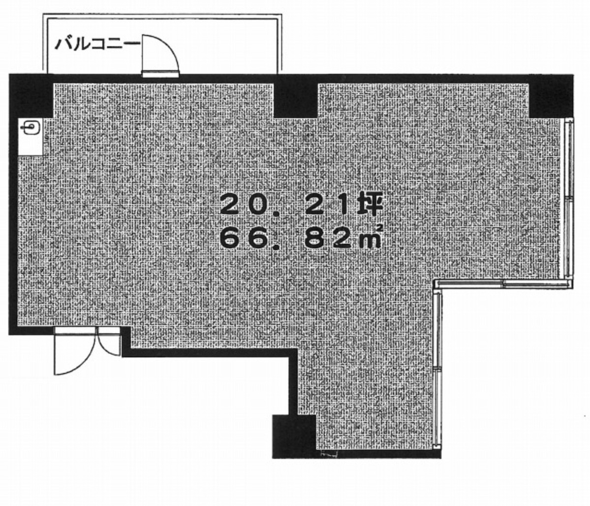
| 3階 | 20.21坪 (66.81m²) | 募集終了 | - | - |
WEB非公開物件がございます
オーナー様ご希望によるWEB非公開の物件もございます。先ずは条件などお知らせ頂けましたら、非公開物件含めピッタリのオフィスをご提案させて頂きます。具体的な物件がお決まりでない場合でも問題ございません。無理なお勧めはしておりませんので、お気軽にお問い合わせください。
ご来店も歓迎です
オフィス移転は社内・社外ともに非公開に行われることが殆どです。そのためアットオフィスでは、基本的に訪問によるコンサルティングを行っておりますが、ご来店の相談も歓迎です。
※お一人おひとりに親身にご対応させて頂きたい為、要予約とさせて頂いております。ご来店の際は先ずは上記よりご予約下さい。
読込中...
勝どき/晴海エリアでとよみビルに似た条件の物件
読込中...