※このサイトに記載がある賃貸条件は、敷金・保証金などの預かり金を除き、別途消費税がかかります。
お電話でもお気軽にお問い合わせください
物件情報
設備詳細
| 空調 | - |
|---|---|
| トイレ | - |
| 床仕様 | - |
| エレベータ | 1 基 |
| 駐車場設備 | - |
| その他 | 機械警備 / 光ファイバー |
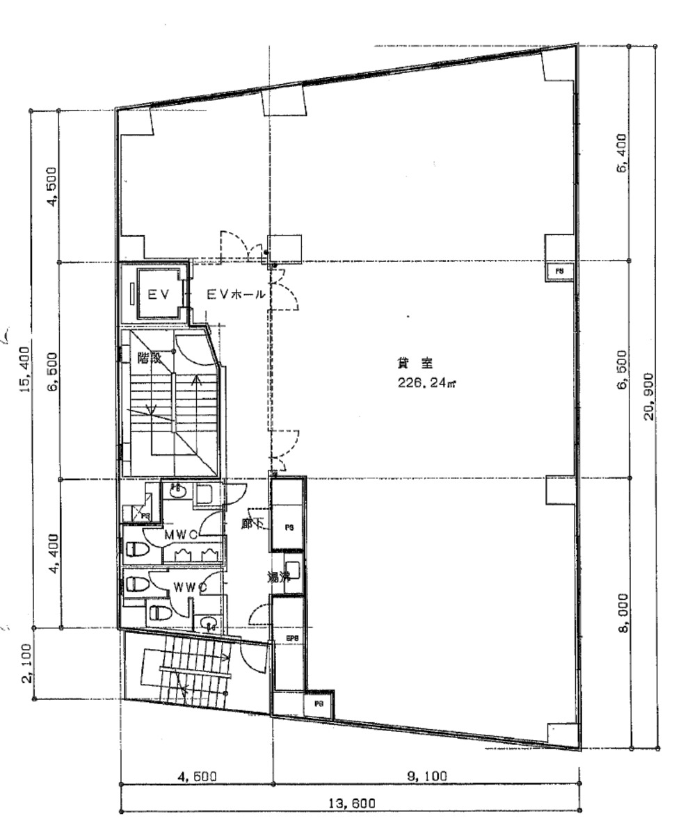
井門堀留ビルは、東京都中央区日本橋堀留町に位置する、ビジネスを展開するための理想的なオフィススペースを提供する賃貸オフィスビルです。このビルは1984年に竣工し、2006年には全面リニューアルを行い、現代のビジネスニーズに合わせた最新の設備と快適な環境を備えています。地上8階建てのこのビルは、基準階約70坪の広々とした貸事務所スペースを提供し、ほぼ長方形のL字型のレイアウトで、非常に効率的なオフィス環境を実現しています。 立地においても、井門堀留ビルは非常に魅力的です。小伝馬町駅からわずか徒歩3分の距離にあり、他にも複数の駅が徒歩5~7分圏内に位置しており、公共交通機関へのアクセスが非常に良好です。この立地は、ビジネスの機会を最大限に活用し、都心部へのスムーズな移動を可能にします。 ビルの設備面では、1階にコンビニが入居しており、便利な日常の買い物にもすぐに対応できます。また、石造りのロビーとエレベーター1基が設置されており、機能性とデザイン性を兼ね備えたエントランスが、訪れる人々に良好な印象を与えます。セキュリティ面では、機械式警備を採用しており、入居企業及び従業員の安全をしっかりと守ります。 また、井門堀留ビル周辺には、カフェや牛丼チェーン店などランチスポットが豊富にあり、ビジネスの合間にリフレッシュするのに最適な環境です。さらに、文房具屋、各都市銀行の支店やATM店舗、郵便局も徒歩数分の範囲に揃っており、ビジネス運営に必要な様々なサービスを手軽に利用できます。 井門堀留ビルは、その立地の良さ、豊富な周辺施設、優れた設備とセキュリティ、そして快適なオフィス環境を提供することで、ビジネス成長のための理想的な場所を提供します。このビルでは、効率的なレイアウトと最新の設備が融合し、あらゆる企業のニーズに応えることができるオフィス空間を実現しています。ビジネスの新たな拠点として、井門堀留ビルをぜひご検討ください。
募集終了のテナント区画
| 階数 | 坪数 | 賃料 + 共益費 | 敷金/礼金敷金 礼金 | 検討 |
|---|---|---|---|---|
| 2階 | 66.58坪 (220.1m²) | 募集終了 | - | - |
| 3階 | 69.06坪 (228.3m²) | 募集終了 | - | - |
| 4階 | 69.06坪 (228.32m²) | 募集終了 | - | - |
| 5階 | 68.43坪 (226.21m²) | 募集終了 | - | - |
| 6階 | 68.43坪 (226.21m²) | 募集終了 | - | - |
| 7階 | 69.06坪 (228.32m²) | 募集終了 | - | - |
| 8階 | 69.07坪 (228.36m²) | 募集終了 | - | - |
WEB非公開物件がございます
オーナー様ご希望によるWEB非公開の物件もございます。先ずは条件などお知らせ頂けましたら、非公開物件含めピッタリのオフィスをご提案させて頂きます。具体的な物件がお決まりでない場合でも問題ございません。無理なお勧めはしておりませんので、お気軽にお問い合わせください。
ご来店も歓迎です
オフィス移転は社内・社外ともに非公開に行われることが殆どです。そのためアットオフィスでは、基本的に訪問によるコンサルティングを行っておりますが、ご来店の相談も歓迎です。
※お一人おひとりに親身にご対応させて頂きたい為、要予約とさせて頂いております。ご来店の際は先ずは上記よりご予約下さい。
読込中...
近くのエリアで探してみる
人形町/馬喰町/浜町エリアで井門堀留ビルに似た条件の物件
読込中...