※このサイトに記載がある賃貸条件は、敷金・保証金などの預かり金を除き、別途消費税がかかります。
物件情報
設備詳細
| 空調 | - |
|---|---|
| トイレ | - |
| 床仕様 | - |
| エレベータ | 4 基 |
| 駐車場設備 | 空有 |
| その他 | 機械警備 / 24時間利用可 / 大型ビル |
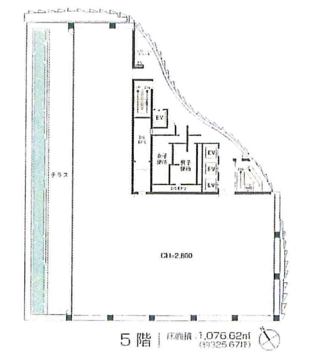
MG白金台ビルは、港区白金台5丁目の外苑西通りに位置する、美しい白い外観と青みがかったガラスウォールが印象的なランドマーク的なオフィスビルです。このビルは、1998年に竣工された耐震仕様のオフィスビルで、その外観と内装のデザイン性の高さから、企業のブランドイメージ向上にも寄与することでしょう。 MG白金台ビルの最大の魅力は、その独自のデザイン性にあります。外観は横浜みなとみらいのクイーンズスクエアや六本木の国立新美術館を思わせるような、美しい曲線とガラスカーテンウォールが特徴で、エントランスには大きなオブジェが設置されています。また、内装もオシャレで、廊下が波打つ外壁に沿ってガラス張りになっていることで、明るく開放的な空間を実現しています。 立地においても、MG白金台ビルは優れています。最寄り駅である白金台駅から徒歩6分というアクセスの良さに加え、周辺は高級住宅地として近年注目を集めるエリアで、落ち着いた雰囲気の中にもオシャレなカフェやレストラン、ブティック、雑貨店が並んでいます。さらに、近隣には国立科学博物館附属自然教育園や東京都庭園美術館といった緑豊かな施設があり、働く環境としても生活する場所としても魅力的です。 設備面では、MG白金台ビルは24時間利用可能で、月極めの駐車場をビル内に設けています。さらに機械警備が完備されており、セキュリティ面でも安心です。オフィスフロアは無柱の整形タイプで、天井高は2,800㎜とゆとりがあり、大きな窓面からは自然光がたっぷりと入るため、明るく快適なオフィス環境を提供しています。 このように、MG白金台ビルは、そのデザイン性の高さ、優れた立地、充実した設備で、企業のブランドイメージの向上はもちろん、従業員にとっても働きやすい環境を提供する理想的なオフィスビルです。港区での新たなオフィスの検討をされている企業にとって、MG白金台ビルは間違いなく最適な選択肢となるでしょう。
WEB非公開物件がございます
オーナー様ご希望によるWEB非公開の物件もございます。先ずは条件などお知らせ頂けましたら、非公開物件含めピッタリのオフィスをご提案させて頂きます。具体的な物件がお決まりでない場合でも問題ございません。無理なお勧めはしておりませんので、お気軽にお問い合わせください。
ご来店も歓迎です
オフィス移転は社内・社外ともに非公開に行われることが殆どです。そのためアットオフィスでは、基本的に訪問によるコンサルティングを行っておりますが、ご来店の相談も歓迎です。
※お一人おひとりに親身にご対応させて頂きたい為、要予約とさせて頂いております。ご来店の際は先ずは上記よりご予約下さい。
読込中...
近くのエリアで探してみる
港南/高輪/白金台/(品川駅)エリアでMG白金台ビルに似た条件の物件
読込中...