※このサイトに記載がある賃貸条件は、敷金・保証金などの預かり金を除き、別途消費税がかかります。
お電話でもお気軽にお問い合わせください
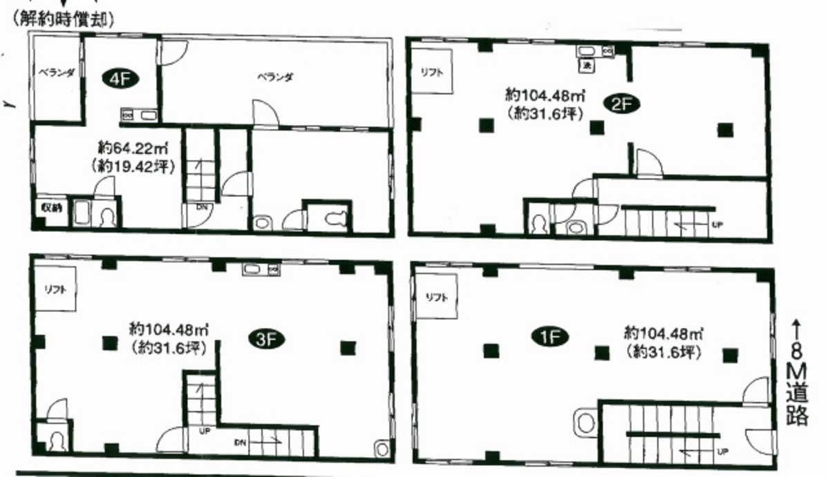
物件情報
設備詳細
| 空調 | - |
|---|---|
| トイレ | - |
| 床仕様 | - |
| エレベータ | 1 基 |
| 駐車場設備 | - |
| その他 | - |
アクセスマップ
トリイビルは、東京都台東区清川1丁目に位置する、ビジネス利用に最適化されたオフィスビルです。本ビルには、企業の成長と発展を支えるための様々な特長があります。ここでは、その立地、設備、そしてビルが提供する独自の魅力とビジネスに対する利点を丁寧に解説していきます。 【立地の特徴】 トリイビルは、台東区という東京の心臓部に位置しています。この地域は、商業施設、芸術文化施設、歴史的建造物が共存する多様性に富んだエリアであり、ビジネスと文化の融合が進んでいます。交通アクセスも良好で、都心へのアクセスはもちろん、郊外への移動も容易です。このような立地は、ビジネスチャンスを拡大し、多岐にわたる顧客層との接触を可能にします。 【設備の特徴】 トリイビルは、ビジネスニーズに応えるための充実した設備を備えています。特筆すべきは、ビル内に1機設置されているエレベーターです。このエレベーターは、ビルの利用効率を高め、快適な移動を実現します。また、ビル内は最新のセキュリティシステムで保護されており、テナント企業の安全とセキュリティを確保します。この他にも、快適なオフィス環境を支えるための高度な設備が導入されています。 【ビルの独自の魅力】 トリイビルの最大の特長は、その柔軟性と効率性にあります。様々なビジネススタイルに対応可能なオフィススペースを提供し、企業の成長段階に合わせた空間利用が可能です。また、ビルのデザインは、働く人々の創造性と生産性を高めることを目的としています。自然光が豊富に取り入れられたオフィス空間は、快適な作業環境を提供します。 【ビジネスにおける利点】 トリイビルは、立地の利便性と設備の充実により、テナント企業に多大なビジネス上の利点を提供します。都心への優れたアクセスは、ビジネスチャンスを広げるだけでなく、求職者にとっても魅力的なポイントです。また、ビルの設備とサービスは、企業がその業務に集中できるようサポートし、生産性の向上に寄与します。 トリイビルは、その立地、設備、そして独自の魅力を活かして、テナント企業のビジネスの成功を強力にバックアップします。企業の拠点としての機能はもちろん、ビジネスの成長と発展を促進する環境がここにはあります。
募集終了のテナント区画
| 階数 | 坪数 | 賃料 + 共益費 | 敷金/礼金敷金 礼金 | 検討 |
|---|---|---|---|---|
| 1階 | 115坪 (380.17m²) | 募集終了 | - | - |
WEB非公開物件がございます
オーナー様ご希望によるWEB非公開の物件もございます。先ずは条件などお知らせ頂けましたら、非公開物件含めピッタリのオフィスをご提案させて頂きます。具体的な物件がお決まりでない場合でも問題ございません。無理なお勧めはしておりませんので、お気軽にお問い合わせください。
ご来店も歓迎です
オフィス移転は社内・社外ともに非公開に行われることが殆どです。そのためアットオフィスでは、基本的に訪問によるコンサルティングを行っておりますが、ご来店の相談も歓迎です。
※お一人おひとりに親身にご対応させて頂きたい為、要予約とさせて頂いております。ご来店の際は先ずは上記よりご予約下さい。
読込中...
浅草橋/蔵前/浅草エリアでトリイビルに似た条件の物件
読込中...