※このサイトに記載がある賃貸条件は、敷金・保証金などの預かり金を除き、別途消費税がかかります。
お電話でもお気軽にお問い合わせください
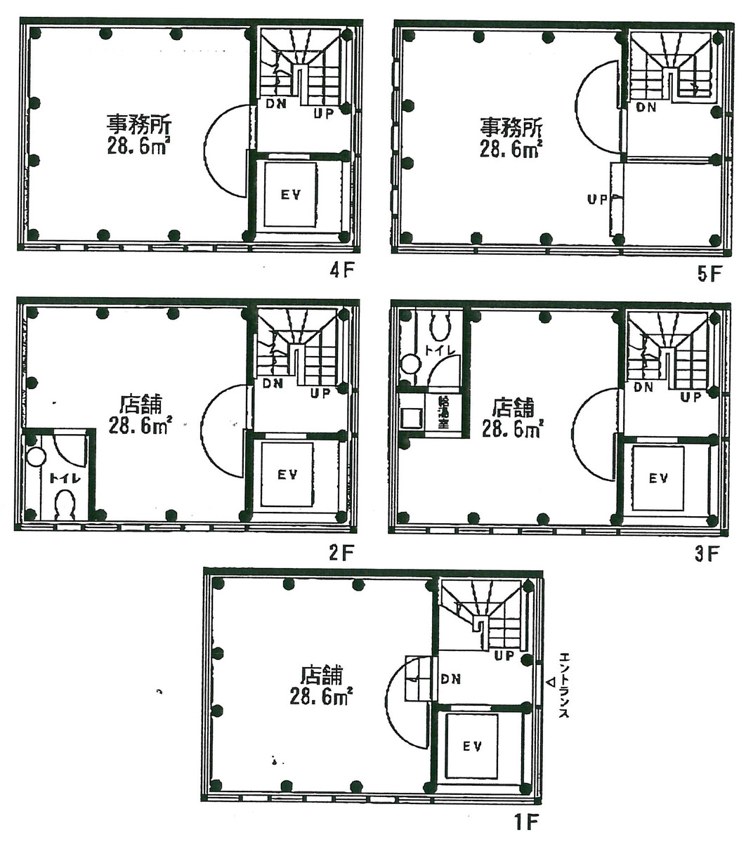
物件情報
設備詳細
| 空調 | - |
|---|---|
| トイレ | - |
| 床仕様 | - |
| エレベータ | - |
| 駐車場設備 | 空有 |
| その他 | 新耐震基準 |
アクセスマップ
AMINAKA銀座ビルは、東京の中心部、銀座5丁目に位置する最先端のオフィス賃貸ビルです。ビジネスの中心地であるこの立地は、銀座駅および東銀座駅から徒歩わずか2分という、アクセスの良さを誇ります。この絶好の立地は、ビジネスチャンスを最大限に引き寄せること間違いなしです。 AMINAKA銀座ビルの外観は、モダンなガラス張りのデザインで、通りを歩く人々の目を引きます。この洗練されたデザインは、そこで働く企業のイメージを高め、訪れるクライアントにも良い印象を与えることでしょう。また、ビルの周辺は静かで落ち着いた環境が保たれており、集中して仕事に取り組むのに最適な環境を提供しています。 設備面においても、AMINAKA銀座ビルは例外ではありません。最新の設備が完備され、各オフィスは高速インターネットアクセス、最新の空調システム、セキュリティシステムなど、ビジネスがスムーズに運営できるすべての要素を備えています。これらの設備は、企業が効率的かつ効果的に運営されるための基盤となります。 加えて、AMINAKA銀座ビル内には、ビジネスニーズに応じたフレキシブルなオフィスレイアウトが可能です。これにより、スタートアップから大企業まで、あらゆる規模のビジネスが自社のアイデンティティに合った空間を作り出すことができます。ビル内の共用スペースは、交流やリラックスのための場としても設計されており、働く人々にとって魅力的な環境を提供します。 AMINAKA銀座ビルは、その立地、設備、デザインにおいて、ビジネスの成功を後押しする理想的な場所です。このビルでのオフィススペースは、企業のブランド価値を高め、従業員にとっても、訪れるクライアントにとっても、快適で生産的な環境を提供します。ビジネスの可能性を最大限に広げたい企業にとって、AMINAKA銀座ビルは、まさに理想的な選択肢です。
募集終了のテナント区画
| 階数 | 坪数 | 賃料 + 共益費 | 敷金/礼金敷金 礼金 | 検討 |
|---|---|---|---|---|
| 1-5階 | 43.25坪 (142.98m²) | 募集終了 | - | - |
| 1階 | 5.93坪 (19.6m²) | 募集終了 | - | - |
WEB非公開物件がございます
オーナー様ご希望によるWEB非公開の物件もございます。先ずは条件などお知らせ頂けましたら、非公開物件含めピッタリのオフィスをご提案させて頂きます。具体的な物件がお決まりでない場合でも問題ございません。無理なお勧めはしておりませんので、お気軽にお問い合わせください。
ご来店も歓迎です
オフィス移転は社内・社外ともに非公開に行われることが殆どです。そのためアットオフィスでは、基本的に訪問によるコンサルティングを行っておりますが、ご来店の相談も歓迎です。
※お一人おひとりに親身にご対応させて頂きたい為、要予約とさせて頂いております。ご来店の際は先ずは上記よりご予約下さい。
読込中...
銀座エリアでAMINAKA銀座ビルに似た条件の物件
読込中...