※このサイトに記載がある賃貸条件は、敷金・保証金などの預かり金を除き、別途消費税がかかります。
お電話でもお気軽にお問い合わせください
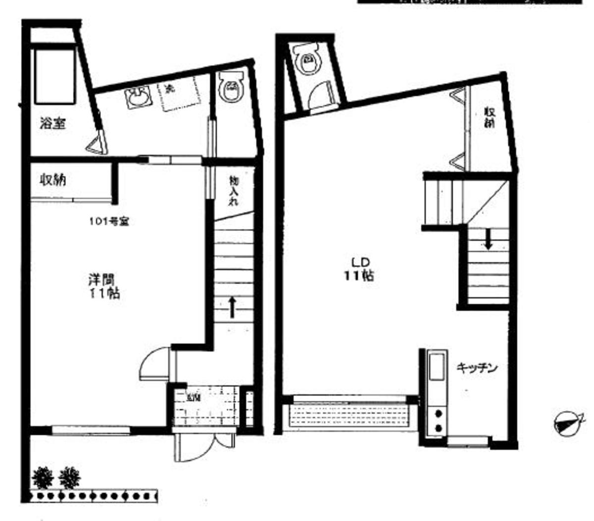
物件情報
設備詳細
| 空調 | - |
|---|---|
| トイレ | - |
| 床仕様 | - |
| エレベータ | - |
| 駐車場設備 | - |
| その他 | 新耐震基準 |
アクセスマップ
コーポユミ代々木ビルについて、不動産の専門家としてその特徴と魅力を紹介いたします。このビルは、東京都渋谷区代々木2丁目に位置し、多様なビジネスニーズに対応できるSOHOや事務所向けのスペースを提供しています。立地、設備、およびビル自体が持つ独自の魅力を詳細に解説してまいります。 まず、立地についてですが、コーポユミ代々木ビルは渋谷区の中心部に位置しており、ビジネスの拠点として極めて魅力的なエリアにあります。近隣には代々木公園や明治神宮などの自然豊かなスポットがあり、オフィスでの緊張を和らげるリラックスした時間を過ごすことができます。また、渋谷駅や新宿駅といった大型駅にも近く、都内各地へのアクセスが非常に便利です。さらに、エリア内には多彩な飲食店やショップが充実しており、ビジネス後の憩いの場としても最適です。 次に、設備に関してですが、コーポユミ代々木ビルは、最新のビジネスニーズに対応した高品質な設備を完備しています。高速インターネット接続、セキュリティシステム、快適な空調設備など、SOHOや事務所利用に必要な機能が整っており、スムーズで効率的なビジネス活動をサポートします。また、清潔感のある内装と機能的なレイアウトは、クリエイティブな仕事環境を求める企業にとって魅力的なポイントです。 ビルの独自の魅力としては、その柔軟な利用が可能な点が挙げられます。大小さまざまなオフィススペースが用意されており、スタートアップ企業から既に確立した企業まで、幅広いビジネスステージのニーズに応えることができます。このような柔軟性は、急速に変化するビジネス環境において、企業が成長し拡大していく過程で非常に重要な要素です。 ビジネスにおける利点としては、このビルが提供する立地の良さ、充実した設備、そして柔軟なスペース利用が挙げられます。これらの要素が融合することで、入居企業は高い業務効率と作業環境の快適性を享受することができ、最終的にはビジネスの成功へとつながるでしょう。 以上、コーポユミ代々木ビルの特徴と魅力について詳細に説明いたしました。このビルが、あなたのビジネスにとって最適な環境を提供し、成功への道を拓く一助となることを心より願っています。
募集終了のテナント区画
| 階数 | 坪数 | 賃料 + 共益費 | 敷金/礼金敷金 礼金 | 検討 |
|---|---|---|---|---|
| 1階 | 22.99坪 (76m²) | 募集終了 | - | - |
WEB非公開物件がございます
オーナー様ご希望によるWEB非公開の物件もございます。先ずは条件などお知らせ頂けましたら、非公開物件含めピッタリのオフィスをご提案させて頂きます。具体的な物件がお決まりでない場合でも問題ございません。無理なお勧めはしておりませんので、お気軽にお問い合わせください。
ご来店も歓迎です
オフィス移転は社内・社外ともに非公開に行われることが殆どです。そのためアットオフィスでは、基本的に訪問によるコンサルティングを行っておりますが、ご来店の相談も歓迎です。
※お一人おひとりに親身にご対応させて頂きたい為、要予約とさせて頂いております。ご来店の際は先ずは上記よりご予約下さい。
読込中...
近くのエリアで探してみる
代々木/初台/幡ヶ谷エリアでコーポユミ代々木に似た条件の物件
読込中...