※このサイトに記載がある賃貸条件は、敷金・保証金などの預かり金を除き、別途消費税がかかります。
お電話でもお気軽にお問い合わせください
物件情報
設備詳細
| 空調 | - |
|---|---|
| トイレ | - |
| 床仕様 | - |
| エレベータ | 1 基 |
| 駐車場設備 | - |
| その他 | 光ファイバー |
アクセスマップ
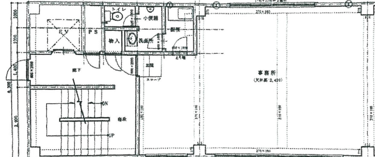
神戸ビルは、その古典的な佇まいと現代のビジネスニーズを満たす機能性が見事に融合した、台東区上野に所在する賃貸オフィスビルです。1973年に竣工されたこの6階建ての物件は、基準階約20坪の広さを誇り、エレベーターは1基設置されています。その長方形の間取りは、効率的なオフィスレイアウトを可能にし、貸室内に設けられたトイレと給湯スペースは、日々の業務をスムーズに行うための快適な環境を提供します。 立地においては、神戸ビルは昭和通り沿いに位置し、仲御徒町駅から徒歩4分、御徒町駅からは徒歩3分という、交通アクセスの良さが魅力の一つです。この立地は、ビジネスの拠点としてはもちろん、クライアントや従業員にとっても非常に便利な場所にあります。さらに、周辺には飲食店が豊富にあり、徒歩2分の場所にはコンビニエンスストアがあるなど、日々の生活に必要な施設が身近に揃っています。 このビルが立地する上野エリアは、オフィス街としての顔と共に、文化的な施設や商業施設も多く、ビジネスだけでなく、ライフスタイルの充実にも寄与します。昭和通り沿いという場所は、ビジネスにおける視認性も高く、企業のブランディングにも効果的な立地と言えるでしょう。 神戸ビルの最大の特徴は、その重厚感ある外観と、歴史を感じさせる造りにあります。しかし内部は、現代のビジネスニーズに合わせた快適なオフィス空間になっており、新旧の融合が見事に表現されています。このバランスが、ビルに独特の魅力を与え、多くの企業にとって理想的なオフィススペースとなっています。 最後に、神戸ビルは、ビジネスの成功に不可欠な立地、設備、雰囲気を兼ね備えた物件です。仕事の効率化を図りながらも、歴史の重みを感じさせる空間で働くことができるこのビルは、企業にとって理想的な環境を提供します。これからも多くの企業が、この場所で新たな歴史を紡いでいくことでしょう。
募集終了のテナント区画
| 階数 | 坪数 | 賃料 + 共益費 | 敷金/礼金敷金 礼金 | 検討 |
|---|---|---|---|---|
| 1階 | 14坪 (46.28m²) | 募集終了 | - | - |
| 4階 | 22坪 (72.72m²) | 募集終了 | - | - |
| 5階 | 22坪 (72.72m²) | 募集終了 | - | - |
| 6階 | 22坪 (72.72m²) | 募集終了 | - | - |
WEB非公開物件がございます
オーナー様ご希望によるWEB非公開の物件もございます。先ずは条件などお知らせ頂けましたら、非公開物件含めピッタリのオフィスをご提案させて頂きます。具体的な物件がお決まりでない場合でも問題ございません。無理なお勧めはしておりませんので、お気軽にお問い合わせください。
ご来店も歓迎です
オフィス移転は社内・社外ともに非公開に行われることが殆どです。そのためアットオフィスでは、基本的に訪問によるコンサルティングを行っておりますが、ご来店の相談も歓迎です。
※お一人おひとりに親身にご対応させて頂きたい為、要予約とさせて頂いております。ご来店の際は先ずは上記よりご予約下さい。
読込中...
上野/台東/東上野エリアで神戸ビルに似た条件の物件
読込中...