※このサイトに記載がある賃貸条件は、敷金・保証金などの預かり金を除き、別途消費税がかかります。
お電話でもお気軽にお問い合わせください
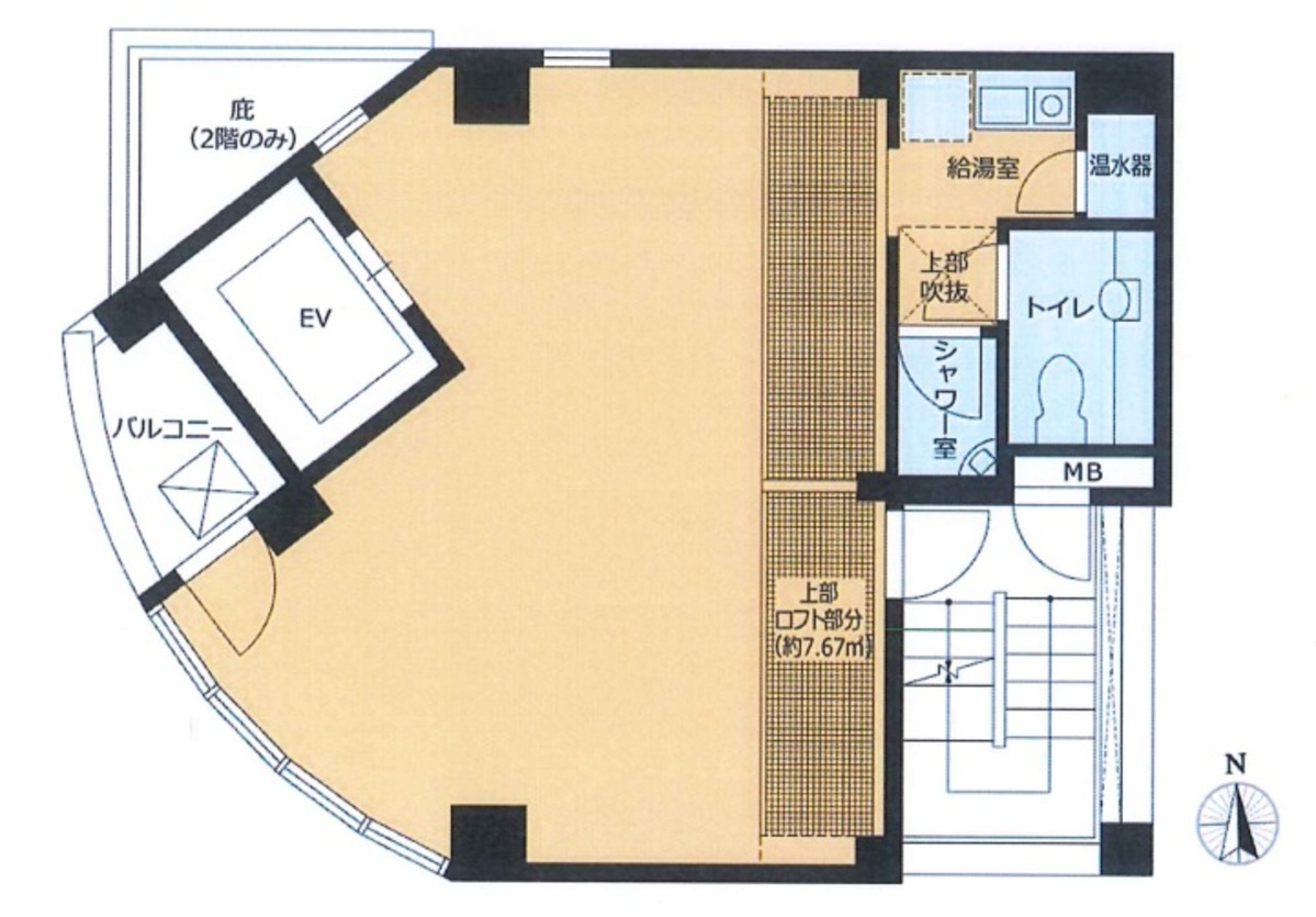
物件情報
設備詳細
| 空調 | - |
|---|---|
| トイレ | - |
| 床仕様 | - |
| エレベータ | 1 基 |
| 駐車場設備 | - |
| その他 | 機械警備 / 新耐震基準 |
アクセスマップ
Svort渋谷神南ビルは、東京都渋谷区宇田川町に位置する、ビジネスに最適なオフィス賃貸物件です。この地域は、渋谷の中心部にありながらも、ビジネスと文化が融合する活気ある環境を提供しています。当ビルは、そのような立地の利点を最大限に活かした設計となっており、様々な業種の企業に適しています。 立地に関して、Svort渋谷神南ビルは渋谷駅から徒歩圏内にあり、多方面へのアクセスが非常に便利です。渋谷駅は、JR線をはじめ、東京メトロ、京王線、東急線など複数の路線が交差する主要駅であり、都内各地への移動が容易です。また、渋谷は国際的なビジネスの中心地としての地位を確立しており、国内外からの訪問者も多いため、ビジネスチャンスが広がります。 設備面では、Svort渋谷神南ビルは、機能性と快適性を兼ね備えたオフィス環境を提供しています。エレベーターは1機設置されており、スムーズな移動をサポートしています。また、最新のセキュリティシステムが導入されており、テナントの安全とセキュリティを確保しています。オフィス空間は、柔軟なレイアウトが可能で、企業の成長や変化に合わせてカスタマイズできるため、様々なビジネスニーズに対応することができます。 Svort渋谷神南ビルの独自の魅力は、その立地の良さと、ビジネスに必要な機能を総合的に提供している点にあります。渋谷という国際的なビジネスエリアの中心に位置しながらも、利便性と機能性を兼ね備えたオフィス空間は、企業のブランドイメージ向上にも寄与します。また、周辺には飲食店や商業施設が豊富にあり、ビジネスアフターも充実しています。 総じて、Svort渋谷神南ビルは、立地、設備、機能性を兼ね備え、多様なビジネスニーズに応えることができる、渋谷区宇田川町における理想的なオフィス賃貸物件です。企業の成長と発展を支える拠点として、また、新たなビジネスチャンスを広げる場として、最適な環境を提供します。
募集終了のテナント区画
| 階数 | 坪数 | 賃料 + 共益費 | 敷金/礼金敷金 礼金 | 検討 |
|---|---|---|---|---|
| 2階 | 12.7坪 (41.98m²) | 募集終了 | - | - |
| 8階 | 12.69坪 (41.95m²) | 募集終了 | - | - |
WEB非公開物件がございます
オーナー様ご希望によるWEB非公開の物件もございます。先ずは条件などお知らせ頂けましたら、非公開物件含めピッタリのオフィスをご提案させて頂きます。具体的な物件がお決まりでない場合でも問題ございません。無理なお勧めはしておりませんので、お気軽にお問い合わせください。
ご来店も歓迎です
オフィス移転は社内・社外ともに非公開に行われることが殆どです。そのためアットオフィスでは、基本的に訪問によるコンサルティングを行っておりますが、ご来店の相談も歓迎です。
※お一人おひとりに親身にご対応させて頂きたい為、要予約とさせて頂いております。ご来店の際は先ずは上記よりご予約下さい。
読込中...
渋谷エリアでSvort渋谷神南ビルに似た条件の物件
読込中...