※このサイトに記載がある賃貸条件は、敷金・保証金などの預かり金を除き、別途消費税がかかります。
お電話でもお気軽にお問い合わせください
物件情報
設備詳細
| 空調 | - |
|---|---|
| トイレ | - |
| 床仕様 | - |
| エレベータ | - |
| 駐車場設備 | - |
| その他 | 新耐震基準 |
ABrimビルは、東京都港区南青山3丁目に位置する、現代のビジネスニーズに合致したオフィス賃貸施設です。この地域は、その洗練された環境と利便性の高さで知られ、多くの企業がオフィスの拠点として選んでいます。以下では、ABrimビルの特徴、立地、設備などの重要なポイントを紹介し、このビルがビジネスの成功にどのように貢献できるかを明らかにします。 ### 特徴 ABrimビルは、都心の利便性と落ち着いた環境が共存する場所にあります。ビルのデザインは、モダンで洗練された雰囲気を提供しつつ、働く人々の生産性とクリエイティビティを高めることを目的としています。このビルは、中小企業から大企業まで、様々なタイプのビジネスに対応可能なフレキシブルなレイアウトを提供しています。 ### 立地 南青山3丁目に位置するABrimビルは、港区というビジネスの中心地にありながら、青山の洗練された文化と自然を感じることができる環境に恵まれています。交通アクセスも優れており、東京メトロ銀座線や千代田線など、複数の路線が利用可能で、都内各地への移動が容易です。また、周辺には商業施設や飲食店、銀行などが充実しており、ビジネスのニーズに応えるだけでなく、従業員の生活にも便利な立地です。 ### 設備 ABrimビルは、最新の設備と快適な作業環境を備えています。全フロアには高速インターネット接続が完備されており、ビジネスの効率化とスムーズなコミュニケーションをサポートします。また、セキュリティシステムが24時間稼働しているため、安心して業務に専忀することができます。さらに、快適なワークスペースを提供するため、最新の空調システムや照明設備が導入されています。 ### 独自の魅力とビジネス利点 ABrimビルの最大の魅力は、その立地と設備の良さにあります。都心の利便性と南青山の静かで洗練された環境のバランスが、ビジネスの成功に不可欠な集中力とクリエイティビティを高めます。また、このビルは、幅広いレイアウトオプションを提供することで、企業の成長に応じたスペースの変更や拡大が容易になっています。これにより、企業は柔軟に事業展開を進めることができ、長期的な成功の基盤を築くことが可能です。 ABrimビルは、その優れた立地、先進的な設備、そしてビジネスのための柔軟性を兼ね備えたオフィススペースを求める企業にとって、理想的な選択肢と言えるでしょう。
募集終了のテナント区画
| 階数 | 坪数 | 賃料 + 共益費 | 敷金/礼金敷金 礼金 | 検討 |
|---|---|---|---|---|
| 1階 | 25.62坪 (84.69m²) | 募集終了 | - | - |
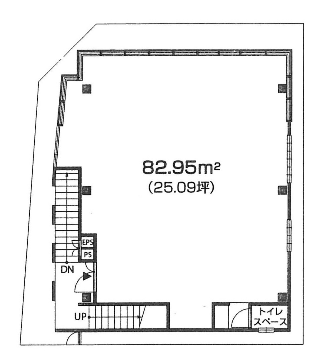
| 2階 | 25.09坪 (82.94m²) | 募集終了 | - | - |
WEB非公開物件がございます
オーナー様ご希望によるWEB非公開の物件もございます。先ずは条件などお知らせ頂けましたら、非公開物件含めピッタリのオフィスをご提案させて頂きます。具体的な物件がお決まりでない場合でも問題ございません。無理なお勧めはしておりませんので、お気軽にお問い合わせください。
ご来店も歓迎です
オフィス移転は社内・社外ともに非公開に行われることが殆どです。そのためアットオフィスでは、基本的に訪問によるコンサルティングを行っておりますが、ご来店の相談も歓迎です。
※お一人おひとりに親身にご対応させて頂きたい為、要予約とさせて頂いております。ご来店の際は先ずは上記よりご予約下さい。
読込中...
青山エリアでABrimビルに似た条件の物件
読込中...