※このサイトに記載がある賃貸条件は、敷金・保証金などの預かり金を除き、別途消費税がかかります。
お電話でもお気軽にお問い合わせください
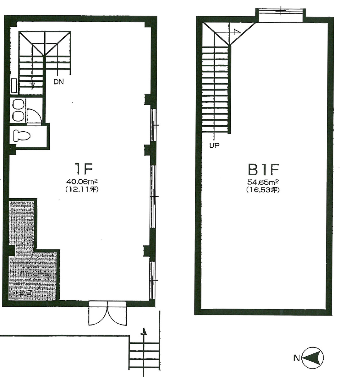
物件情報
設備詳細
| 空調 | - |
|---|---|
| トイレ | - |
| 床仕様 | - |
| エレベータ | - |
| 駐車場設備 | - |
| その他 | - |
代官山K&Kビルは、東京都渋谷区恵比寿西2丁目に位置し、ビジネスの中心地である渋谷と代官山の間にある理想的な立地に誇りを持つオフィス賃貸ビルです。このビルは、最寄り駅である代官山駅から徒歩数分というアクセスの良さを有し、ビジネスマンにとって日々の通勤が格段に便利です。さらに、恵比寿駅も徒歩圏内にあり、JR山手線や東京メトロ日比谷線を利用することができ、東京都内をはじめ、都市部へのアクセスの良さは抜群です。 外観は落ち着いた薄い茶色のタイル造りで、洗練されたデザインが特徴です。このシンプルながらも上品な外観は、ビルを訪れるクライアントに良い印象を与えることは間違いありません。代官山K&Kビルは、静かな環境に位置しており、ビジネスに集中するための理想的な環境を提供します。この静謐な雰囲気は、クリエイティブな仕事を行う企業や、集中的な作業が求められる業種にとって特に魅力的です。 ビル内の設備も充実しており、テナントのニーズに合わせた柔軟なオフィスレイアウトが可能です。高速インターネット接続やセキュリティシステムなど、ビジネスを効率良く運営するための基盤が整っています。また、ビル周辺には多様な飲食店やカフェ、ショップがあり、ビジネス以外の時間も充実させることができます。 代官山K&Kビルは、アクセスの良さ、洗練されたデザイン、静かで集中できる環境、そして充実した設備を兼ね備えた、ビジネスにおける理想的なオフィス空間を提供します。このビルがビジネスの成功に欠かせない要素を備えていることは明らかであり、各企業のポテンシャルを最大限に引き出すことでしょう。
募集終了のテナント区画
| 階数 | 坪数 | 賃料 + 共益費 | 敷金/礼金敷金 礼金 | 検討 |
|---|---|---|---|---|
| B1階 | 28.64坪 (94.68m²) | 募集終了 | - | - |
WEB非公開物件がございます
オーナー様ご希望によるWEB非公開の物件もございます。先ずは条件などお知らせ頂けましたら、非公開物件含めピッタリのオフィスをご提案させて頂きます。具体的な物件がお決まりでない場合でも問題ございません。無理なお勧めはしておりませんので、お気軽にお問い合わせください。
ご来店も歓迎です
オフィス移転は社内・社外ともに非公開に行われることが殆どです。そのためアットオフィスでは、基本的に訪問によるコンサルティングを行っておりますが、ご来店の相談も歓迎です。
※お一人おひとりに親身にご対応させて頂きたい為、要予約とさせて頂いております。ご来店の際は先ずは上記よりご予約下さい。
読込中...
近くのエリアで探してみる
恵比寿/代官山/広尾エリアで代官山K&Kビルに似た条件の物件
読込中...