※このサイトに記載がある賃貸条件は、敷金・保証金などの預かり金を除き、別途消費税がかかります。
お電話でもお気軽にお問い合わせください
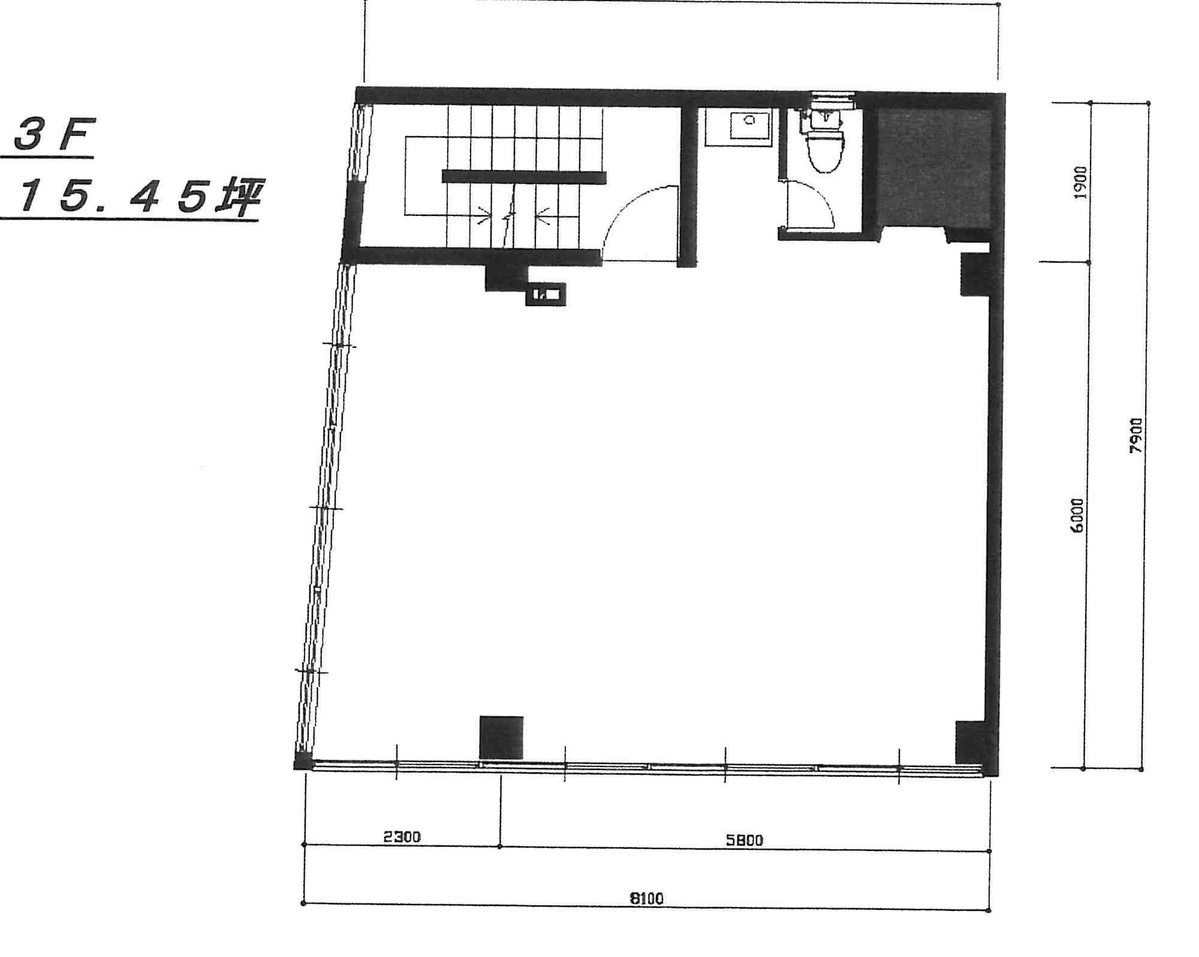
物件情報
設備詳細
| 空調 | - |
|---|---|
| トイレ | - |
| 床仕様 | - |
| エレベータ | - |
| 駐車場設備 | - |
| その他 | - |
アクセスマップ
サンブリヂ新橋ビルは、ビジネスの中心地である港区新橋4丁目に位置しています。この地の利点は、そのアクセスの良さにあり、多方面からのアクセス性はビジネスの機動性を高める重要な要素です。新橋駅はJR線、都営地下鉄、ゆりかもめなど多数の路線が乗り入れており、都内はもちろん、湾岸エリアや羽田空港へのアクセスも容易です。また、近隣にはレストランやカフェ、コンビニエンスストアなどが充実しており、ビジネスマンの日常に必要なサポート環境が整っています。 サンブリヂ新橋ビル自体について、現代ビジネスのニーズに応えるための設備が整っています。オフィススペースは、柔軟なレイアウトが可能であり、様々な業種・企業規模に適応できる設計となっています。また、高速インターネット環境の完備は、今日のビジネスに不可欠であり、サンブリヂ新橋ビルはその点でも要望に応える設備を有しています。 建物は、セキュリティ面でも優れており、24時間体制でのセキュリティサービスにより、入居企業とその従業員の安心と安全を守っています。エレベーターのセキュリティシステムは、不正アクセスを防ぎ、オフィスへの移動もスムーズです。 総じて、サンブリヂ新橋ビルは、優れた立地、柔軟なオフィス環境、そして安心のセキュリティシステムを兼ね備え、ビジネスの成長と発展をサポートする理想的なオフィス賃貸です。新しいビジネスの拠点として、または現在のビジネスをさらに発展させたい企業にとって、サンブリヂ新橋ビルは最適の選択肢となるでしょう。
募集終了のテナント区画
| 階数 | 坪数 | 賃料 + 共益費 | 敷金/礼金敷金 礼金 | 検討 |
|---|---|---|---|---|
| B1階 | 83.24坪 (275.17m²) | 募集終了 | - | - |
WEB非公開物件がございます
オーナー様ご希望によるWEB非公開の物件もございます。先ずは条件などお知らせ頂けましたら、非公開物件含めピッタリのオフィスをご提案させて頂きます。具体的な物件がお決まりでない場合でも問題ございません。無理なお勧めはしておりませんので、お気軽にお問い合わせください。
ご来店も歓迎です
オフィス移転は社内・社外ともに非公開に行われることが殆どです。そのためアットオフィスでは、基本的に訪問によるコンサルティングを行っておりますが、ご来店の相談も歓迎です。
※お一人おひとりに親身にご対応させて頂きたい為、要予約とさせて頂いております。ご来店の際は先ずは上記よりご予約下さい。
読込中...
近くのエリアで探してみる
新橋/虎ノ門/神谷町エリアでサンブリヂ新橋ビルに似た条件の物件
読込中...