※このサイトに記載がある賃貸条件は、敷金・保証金などの預かり金を除き、別途消費税がかかります。
お電話でもお気軽にお問い合わせください
物件情報
設備詳細
| 空調 | - |
|---|---|
| トイレ | - |
| 床仕様 | - |
| エレベータ | - |
| 駐車場設備 | 空有 |
| その他 | 新耐震基準 |
アクセスマップ
### OPUS-ONEビルのご紹介 OPUS-ONEビルは、東京都豊島区南長崎4丁目に位置するオフィス賃貸物件です。2000年に新耐震基準施工後に竣工されたこのビルは、モダンなデザインと充実した設備を誇ります。ビル内には駐車場も完備されており、空き状況についてはお気軽にお問い合わせください。 #### 立地の魅力 南長崎は、かつて漫画家手塚治虫が住居を構えた池袋近郊の閑静な住宅街です。このエリアは飲食店や商業施設が少ないため、静かで落ち着いた環境が魅力です。しかし、徒歩約5分の距離にある東長崎駅周辺には、金融機関、ドラッグストア、飲食店などが一通り揃っており、日常の利便性も確保されています。また、副都心である池袋や新宿へも電車で4~20分ほどでアクセス可能なため、ビジネスの拠点としても最適です。 #### 建物の特徴 OPUS-ONEビルは周辺のレトロな建物とは一線を画し、洗練された雰囲気を持っています。エントランスでは心地よい音楽が流れ、訪れるすべての人に優雅なひと時を提供します。外観はシンメトリーなデザインとグレージュの石調パネルで装飾されており、モダンでありながらも品格を感じさせる佇まいです。 #### 内装と設備 内部には木目調パネルが特徴的なキッチンや、大理石調パネルを使用した浴室があり、全体的にモダンで高級感のあるデザインが施されています。ただし、マンション物件のため床はフローリングとなっており、機器の配線には多少の工夫が必要です。オフィススペースは11.34~13.44坪とコンパクトなサイズとなっており、少人数でビジネスを営む企業には非常に適しています。 #### 駐車場 ビル内には駐車場が完備されており、車を利用される方にも便利な環境が整っています。駐車場の空き状況については、事前にお問い合わせいただければと思います。 #### まとめ OPUS-ONEビルは、閑静でありながらも便利な環境、モダンで洗練されたデザイン、そして充実した設備を兼ね備えたオフィス賃貸物件です。少人数でのビジネス運営に最適なこの物件は、ビジネスの効率を高めるだけでなく、訪れる人々にも好印象を与えることでしょう。ぜひ、OPUS-ONEビルの魅力を実際にご覧いただき、その素晴らしさを感じてください。 お問い合わせやご見学の希望など、詳細についてはお気軽にお尋ねください。皆様のビジネスがより一層発展するための最適な環境をご提供いたします。
募集終了のテナント区画
| 階数 | 坪数 | 賃料 + 共益費 | 敷金/礼金敷金 礼金 | 検討 |
|---|---|---|---|---|
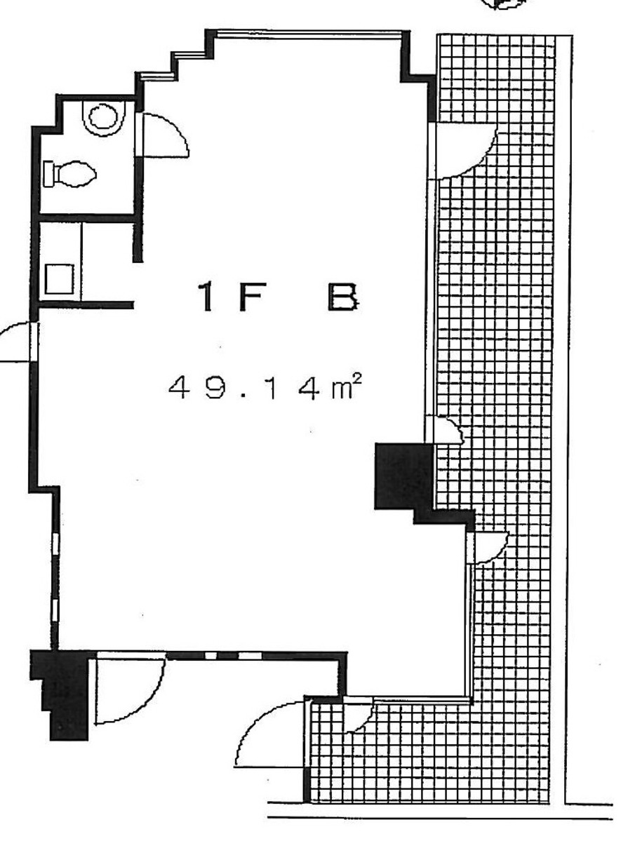
| 1階 | 14.86坪 (49.14m²) | 募集終了 | - | - |
| 1階 | 21.28坪 (70.35m²) | 募集終了 | - | - |
WEB非公開物件がございます
オーナー様ご希望によるWEB非公開の物件もございます。先ずは条件などお知らせ頂けましたら、非公開物件含めピッタリのオフィスをご提案させて頂きます。具体的な物件がお決まりでない場合でも問題ございません。無理なお勧めはしておりませんので、お気軽にお問い合わせください。
ご来店も歓迎です
オフィス移転は社内・社外ともに非公開に行われることが殆どです。そのためアットオフィスでは、基本的に訪問によるコンサルティングを行っておりますが、ご来店の相談も歓迎です。
※お一人おひとりに親身にご対応させて頂きたい為、要予約とさせて頂いております。ご来店の際は先ずは上記よりご予約下さい。
読込中...
要町/千川エリアでSOCIETYOPUS-ONEビルに似た条件の物件
読込中...