※このサイトに記載がある賃貸条件は、敷金・保証金などの預かり金を除き、別途消費税がかかります。
お電話でもお気軽にお問い合わせください
物件情報
設備詳細
| 空調 | - |
|---|---|
| トイレ | - |
| 床仕様 | - |
| エレベータ | 1 基 |
| 駐車場設備 | - |
| その他 | 新耐震基準 |
アクセスマップ
渋谷区神宮前2丁目に位置するAZUMAビルは、アクセスの良さと快適なオフィス環境を提供する賃貸オフィスビルです。このエリアは、ビジネスと文化が融合する東京の中心部にあり、多くの企業が集まり、活気に満ちています。この立地は、企業がビジネスを拡大し、多様な業種のクライアントやパートナーと結びつく絶好の機会を提供します。 AZUMAビルは、モダンなデザインと機能性を兼ね備え、企業がビジネスの効率を最大化するための理想的な環境を提供します。ビル内には1機のエレベーターが設置されており、快適な移動を実現しています。また、オフィススペースは柔軟なレイアウトが可能で、企業の成長や変化に合わせて容易に調整できます。これにより、企業は自社に最適な作業環境を構築することができるのです。 立地に関しては、AZUMAビルは交通の便が非常に良く、都心へのアクセスはもちろん、郊外や他のビジネスエリアへの移動もスムーズです。最寄りの駅からは徒歩圏内で、ビジネスマンにとっては時間の節約にもなります。また、周辺には飲食店やカフェ、銀行など、ビジネスに必要な施設が充実しており、働く人々の日常生活を便利で快適なものにしています。 AZUMAビルのもう一つの大きな魅力は、その設備です。最新のセキュリティシステムが導入されており、入居企業と従業員の安全を確保。また、高速インターネット接続も完備されており、ビジネスのデジタル化が進む今日、この点は非常に重要です。これらの設備により、企業は安心してビジネスを展開し、効率的に業務を進めることができます。 まとめると、AZUMAビルは、その立地、設備、そして柔軟なオフィススペースにより、ビジネスの成功をサポートする理想的な場所です。ここでは、企業が成長し、繁栄するためのすべてが揃っています。ビジネスの新たな拠点として、ぜひAZUMAビルをご検討ください。
募集終了のテナント区画
| 階数 | 坪数 | 賃料 + 共益費 | 敷金/礼金敷金 礼金 | 検討 |
|---|---|---|---|---|
| 1階 | 17.87坪 (59.07m²) | 募集終了 | - | - |
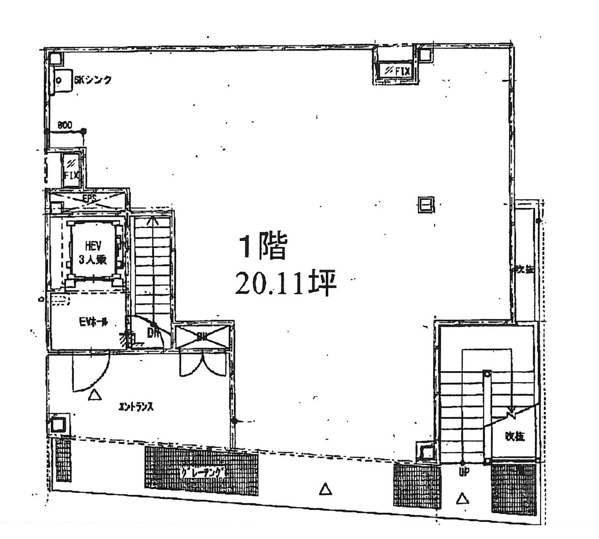
| 1階 | 20.11坪 (66.48m²) | 募集終了 | - | - |
| 1階 | 13.96坪 (46.15m²) | 募集終了 | - | - |
| 2階 | 25.03坪 (82.74m²) | 募集終了 | - | - |
WEB非公開物件がございます
オーナー様ご希望によるWEB非公開の物件もございます。先ずは条件などお知らせ頂けましたら、非公開物件含めピッタリのオフィスをご提案させて頂きます。具体的な物件がお決まりでない場合でも問題ございません。無理なお勧めはしておりませんので、お気軽にお問い合わせください。
ご来店も歓迎です
オフィス移転は社内・社外ともに非公開に行われることが殆どです。そのためアットオフィスでは、基本的に訪問によるコンサルティングを行っておりますが、ご来店の相談も歓迎です。
※お一人おひとりに親身にご対応させて頂きたい為、要予約とさせて頂いております。ご来店の際は先ずは上記よりご予約下さい。
読込中...
表参道/外苑前エリアでAZUMAビルに似た条件の物件
読込中...