※このサイトに記載がある賃貸条件は、敷金・保証金などの預かり金を除き、別途消費税がかかります。
お電話でもお気軽にお問い合わせください
物件情報
設備詳細
| 空調 | - |
|---|---|
| トイレ | - |
| 床仕様 | - |
| エレベータ | - |
| 駐車場設備 | - |
| その他 | 新耐震基準 |
アクセスマップ
田中第1ビルをお探しのビジネスの新たな拠点に最適な物件をご紹介いたします。東京の中心、台東区浅草橋3丁目に位置する当ビルは、1986年に竣工された耐震性に優れたオフィスビルで、あなたのビジネスを支える信頼の設備を備えています。 まず、立地の利便性について。田中第1ビルは、浅草橋駅からわずか徒歩5分という駅近物件でありながら、江戸通り、蔵前橋通りにも近接しております。この好立地により、3駅以上の利用が可能で、ビジネスにおけるアクセシビリティの高さはピカイチです。また、近隣には銀行が多数存在し、金融関連のお仕事にも大変便利な環境です。 ビルの設備においても、田中第1ビルは充実した機能を誇ります。ビル内には月極駐車場を完備しており、お車での通勤やビジネスでの移動もスムーズです。また、耐震性にも優れており、安心してお仕事に集中していただける環境を提供します。 オフィス空間にお求めの方は、この田中第1ビルが、ビジネスの機会を広げるための理想的なステージとなることでしょう。立地の利便性、安全性、そして快適なオフィス環境が、日々の業務を支え、ビジネスの成功へと導く要となります。 ビジネスの新しい拠点として、または拡張のための新たなオフィスとして、田中第1ビルはあなたのビジネスの可能性を広げるために待っています。この上ない立地と設備で、ビジネスの未来を切り開きましょう。田中第1ビルで、新たな一歩を踏み出してください。
募集終了のテナント区画
| 階数 | 坪数 | 賃料 + 共益費 | 敷金/礼金敷金 礼金 | 検討 |
|---|---|---|---|---|
| 1階 | 53.08坪 (175.47m²) | 募集終了 | - | - |
| 1階 | 15.73坪 (52m²) | 募集終了 | - | - |
| 2階 | 15.73坪 (52m²) | 募集終了 | - | - |
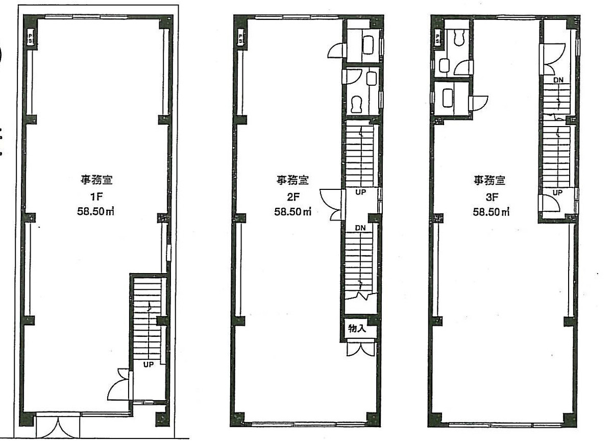
| 3階 | 17.7坪 (58.5m²) | 募集終了 | - | - |
WEB非公開物件がございます
オーナー様ご希望によるWEB非公開の物件もございます。先ずは条件などお知らせ頂けましたら、非公開物件含めピッタリのオフィスをご提案させて頂きます。具体的な物件がお決まりでない場合でも問題ございません。無理なお勧めはしておりませんので、お気軽にお問い合わせください。
ご来店も歓迎です
オフィス移転は社内・社外ともに非公開に行われることが殆どです。そのためアットオフィスでは、基本的に訪問によるコンサルティングを行っておりますが、ご来店の相談も歓迎です。
※お一人おひとりに親身にご対応させて頂きたい為、要予約とさせて頂いております。ご来店の際は先ずは上記よりご予約下さい。
読込中...
浅草橋/蔵前/浅草エリアで田中第1ビルに似た条件の物件
読込中...