※このサイトに記載がある賃貸条件は、敷金・保証金などの預かり金を除き、別途消費税がかかります。
お電話でもお気軽にお問い合わせください
物件情報
設備詳細
| 空調 | - |
|---|---|
| トイレ | - |
| 床仕様 | - |
| エレベータ | 1 基 |
| 駐車場設備 | - |
| その他 | 光ファイバー / 新耐震基準 |
アクセスマップ
千石文化苑ビルは、文京区千石に位置する魅力的なオフィス賃貸物件です。このビルは1992年に竣工され、耐震構造を備えた安全性の高いオフィスビルとして、多くの企業に選ばれています。特に、千石駅からわずか徒歩2分というアクセスの良さが、ビジネスの効率を大きく向上させるポイントです。 ビルの立地について、千石文化苑ビルは閑静な住宅街に囲まれながらも、大手町駅へ一本で行けるという利便性を持っています。JR巣鴨駅や西日暮里駅へのアクセスも良好で、ビジネスの拠点としての潜在的な利点があります。また、周辺には飲食店も徒歩圏内にあり、日常の快適さも保証されます。 ビルの設備に関して、千石文化苑ビルは三面採光という特長を持つ明るく開放的なオフィス空間を提供しています。自然光が豊富に入ることで、働く環境が明るく快適になり、従業員の生産性やクリエイティビティの向上が期待できます。また、エレベーター1機の設置や、男女別トイレがオフィスフロアに近接している点も、日々の業務をスムーズに行う上で重要です。 ビルの雰囲気も非常に重要な要素です。エントランスは清潔感があり、プロフェッショナルな印象を与えます。これは訪れるクライアントやビジネスパートナーに対して、企業の信頼性と品格を象徴する部分です。さらに、1階のテナントの様子からも、ビル内の活動が活発であることが伺えます。 千石文化苑ビルは、特に医療系の企業や、上記のアクセスポイントに縁のある業種にとって理想的なオフィススペースを提供します。ビルのコストパフォーマンスも魅力の一つであり、この地域でのビジネス展開を考えている企業にとって、非常に有益な選択肢となるでしょう。 文京区千石に位置する千石文化苑ビルは、その立地、設備、そして雰囲気が融合した、ビジネスの成功をサポートする環境を提供しています。企業が新たなステージへと進むための理想的な場所であること間違いありません。
募集終了のテナント区画
| 階数 | 坪数 | 賃料 + 共益費 | 敷金/礼金敷金 礼金 | 検討 |
|---|---|---|---|---|
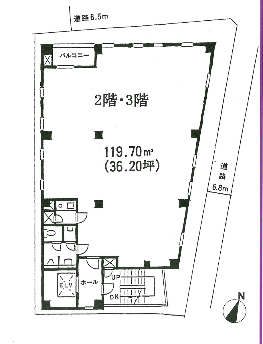
| 2階 | 36.2坪 (119.7m²) | 募集終了 | - | - |
| 3階 | 36.2坪 (119.7m²) | 募集終了 | - | - |
| 3階 | 14.25坪 (47.11m²) | 募集終了 | - | - |
| 4階 | 36.21坪 (119.7m²) | 募集終了 | - | - |
WEB非公開物件がございます
オーナー様ご希望によるWEB非公開の物件もございます。先ずは条件などお知らせ頂けましたら、非公開物件含めピッタリのオフィスをご提案させて頂きます。具体的な物件がお決まりでない場合でも問題ございません。無理なお勧めはしておりませんので、お気軽にお問い合わせください。
ご来店も歓迎です
オフィス移転は社内・社外ともに非公開に行われることが殆どです。そのためアットオフィスでは、基本的に訪問によるコンサルティングを行っておりますが、ご来店の相談も歓迎です。
※お一人おひとりに親身にご対応させて頂きたい為、要予約とさせて頂いております。ご来店の際は先ずは上記よりご予約下さい。
読込中...
白山/千石/根津エリアで千石文化苑ビルに似た条件の物件
読込中...