※このサイトに記載がある賃貸条件は、敷金・保証金などの預かり金を除き、別途消費税がかかります。
お電話でもお気軽にお問い合わせください
物件情報
設備詳細
| 空調 | - |
|---|---|
| トイレ | - |
| 床仕様 | - |
| エレベータ | - |
| 駐車場設備 | 空有 |
| その他 | - |
アクセスマップ
末広第2ビルは、東京都豊島区北大塚1丁目に位置する賃貸オフィス物件で、1976年に竣工されました。その立地の利便性は非常に高く、JR山手線の大塚駅から徒歩わずか2分という駅近の位置にあります。このアクセスの良さは、ビジネスの機動性を求める企業にとって大きな魅力と言えるでしょう。 物件は白い吹き付けの外観で、レトロな雰囲気が特徴です。上層階にはマンションが設けられており、そのバルコニーが外観上のアクセントとなっています。また、1階には便利なコンビニエンスストアが入居しており、日常的な買い物にも困りません。エントランスにはおしゃれな談話スペースがあり、来客を迎える際の印象を良くする設計がなされています。 ビル内には月極駐車場が設置されており、車での通勤や来客にも対応可能です。ただし、空き状況は変動するため、利用を希望される場合は事前の確認が必要です。 周辺環境としては、大塚駅周辺には多くの商業施設があり、飲食店や銀行、公園などが充実しています。特に、ビルから徒歩1分の距離に三井住友銀行のATMがあり、徒歩2分の位置にはモスバーガー大塚北口店があります。これらは日々の業務において大変便利な立地条件を提供します。 総じて、末広第2ビルはその駅近の立地、便利な周辺環境、そして必要なビジネス設備を備えた賃貸オフィス物件として、多くの企業にとって魅力的な選択肢となることでしょう。ビルのレトロな雰囲気と現代的な設備が融合した環境は、クリエイティブな業務を行う企業にも適しています。
募集終了のテナント区画
| 階数 | 坪数 | 賃料 + 共益費 | 敷金/礼金敷金 礼金 | 検討 |
|---|---|---|---|---|
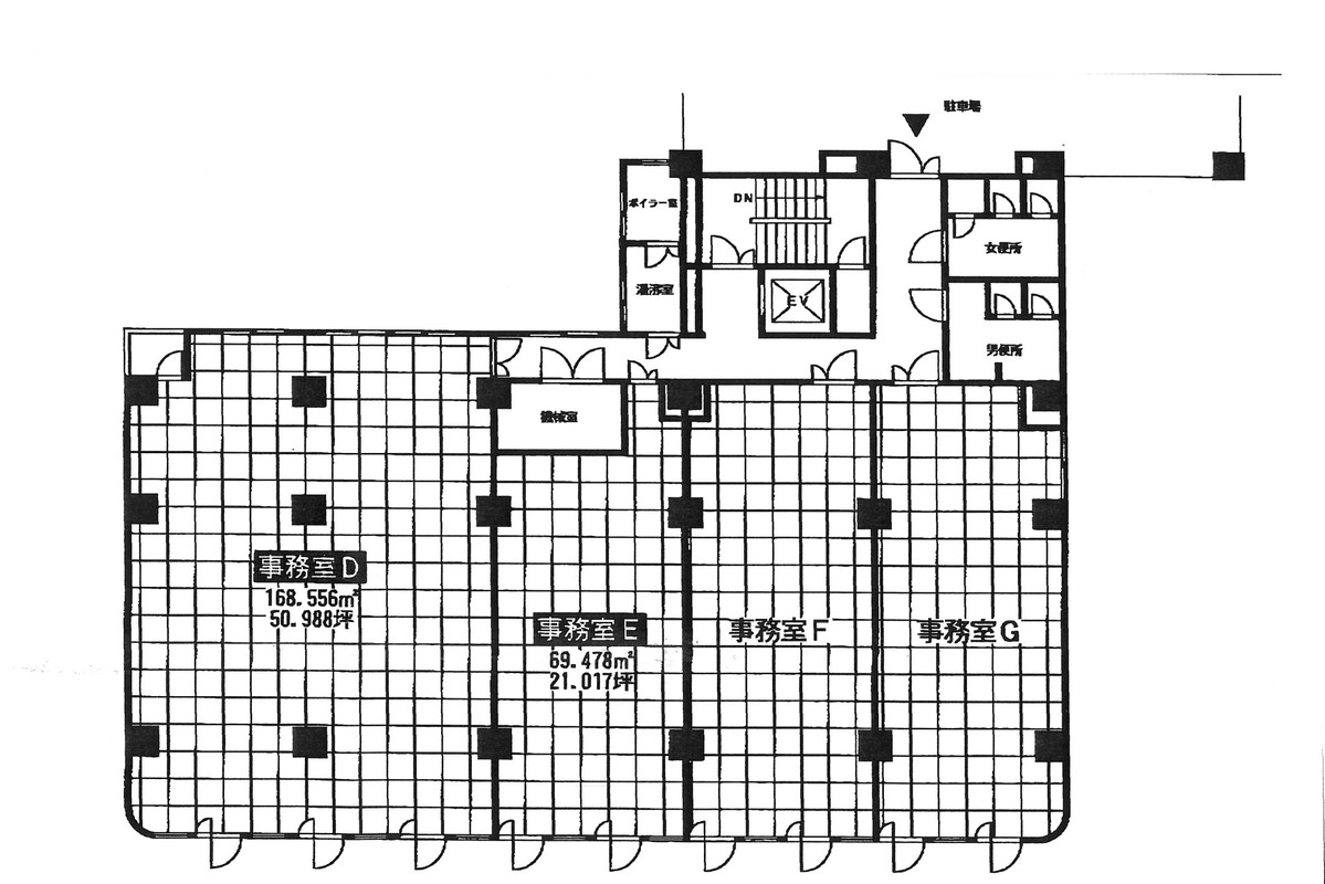
| 2階 | 50.99坪 (168.56m²) | 募集終了 | - | - |
| 2階 | 21.02坪 (69.48m²) | 募集終了 | - | - |
WEB非公開物件がございます
オーナー様ご希望によるWEB非公開の物件もございます。先ずは条件などお知らせ頂けましたら、非公開物件含めピッタリのオフィスをご提案させて頂きます。具体的な物件がお決まりでない場合でも問題ございません。無理なお勧めはしておりませんので、お気軽にお問い合わせください。
ご来店も歓迎です
オフィス移転は社内・社外ともに非公開に行われることが殆どです。そのためアットオフィスでは、基本的に訪問によるコンサルティングを行っておりますが、ご来店の相談も歓迎です。
※お一人おひとりに親身にご対応させて頂きたい為、要予約とさせて頂いております。ご来店の際は先ずは上記よりご予約下さい。
読込中...
駒込/巣鴨/大塚エリアで末広第2ビルに似た条件の物件
読込中...